Ofelia 2







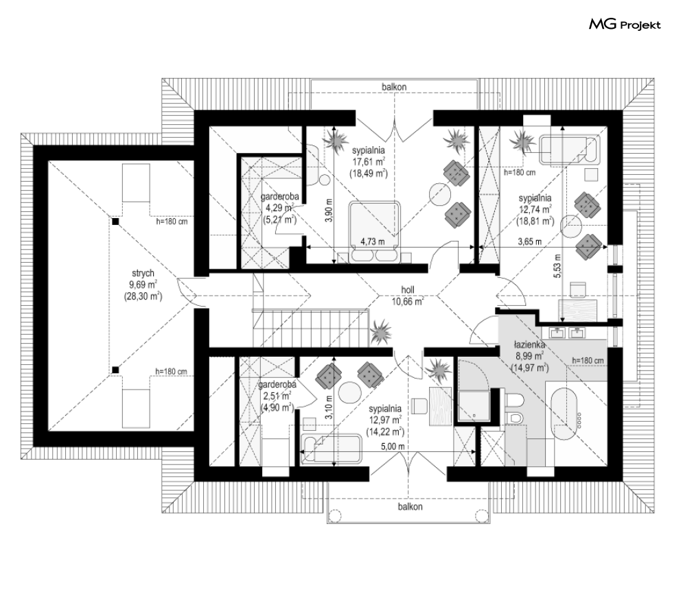
Projekt domu Ofelia 2 jest wersją wariantową popularnego projektu „Ofelia”, czyli wersję z pojedynczym garażem, nieco mniejszą, nadającą się na węższą działkę. Ofelia 2 nawiązuje do ponadczasowego stylu dworku polskiego, czy polskiego dachowca, ale w nowoczesnym ujęciu. Projekt domu Ofelia 2 ma symetryczną bryłę i właściwe proporcje. Parterowa bryła budynku przykryta jest czterospadowym dachem, z dużymi lukarnami z trzech stron, które minimalizują skosy w pokojach na poddaszu. Z czwartej strony znajduje się bryła garażowa z trójspadowym dachem kryjącym strych/poddasze. Wejście do domu podkreślone jest reprezentacyjnym portykiem z kolumnami. Od strony ogrodu mamy narożny podcień - zadaszenie tarasu, oraz piękne wykuszowe okno salonu. Wnętrze domu jest funkcjonalne i kryje w sobie wiele pomieszczeń. Na parterze mamy dużą przestrzeń dzienną połączonego salonu, jadalni, holu i częściowo otwartej kuchni. Z reprezentacyjnego holu mamy dostęp do dwóch dodatkowych pokoi na parterze, co jest rzadkością w domach tej wielkości. Można te pokoje wykorzystać na przykład jako gabinet lub sypialnie gościnną, a drugi ( przy łazience ) jako pokój seniora. Na parterze mieści się jeszcze spiżarnia przy kuchni, spory przedsionek, łazienka, oraz garaż i kotłownia. Poddasze mieści trzy sypialnie i dużą łazienkę. Dwie sypialnie mają własne garderoby i balkony. Nad garażem znajduje się strych, który można zagospodarować na poddasze użytkowe i urządzić tam dodatkowy pokój. Projekt domu Ofelia 2 to doskonała propozycja dla osób lubiących tradycyjny styl domu, nie ulegających chwilowym modom. Tradycyjny w formie, a jednocześnie z nowoczesnym funkcjonalnym wnętrzem, zastosowanymi nowoczesnymi materiałami i technologiami. Dom jest energooszczędny i dość prosty i niedrogi w budowie. Zapraszamy do zapoznania się z pełną ofertą pracowni MG Projekt tej serii: z dwustanowiskowym garażem (projekt domu Ofelia), z jednostanowiskowym garażem (projekt domu Ofelia 2), najmniejsza wersja (projekt domu Ofelia 3). Zapraszam!
