Willa Parkowa 4







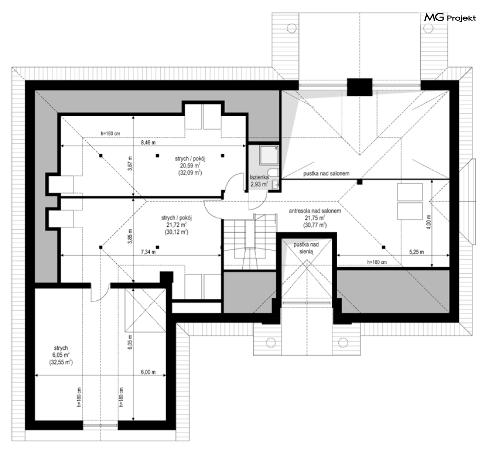
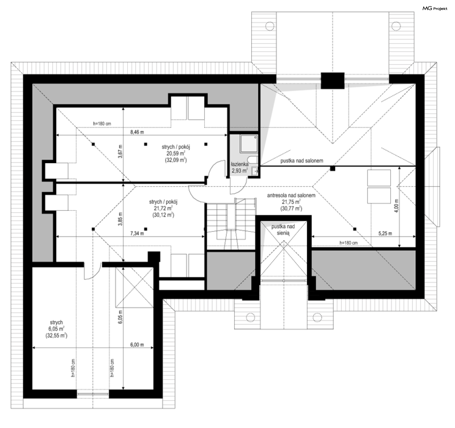
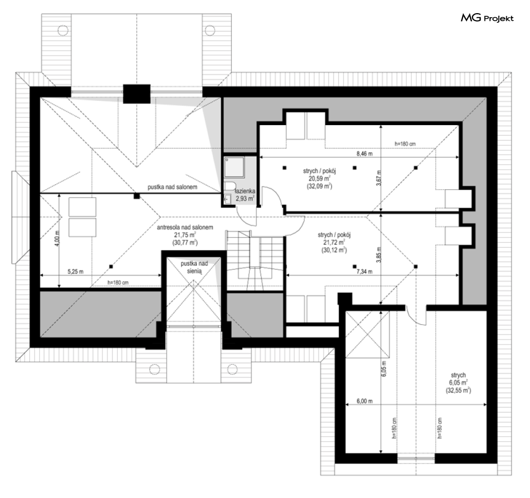
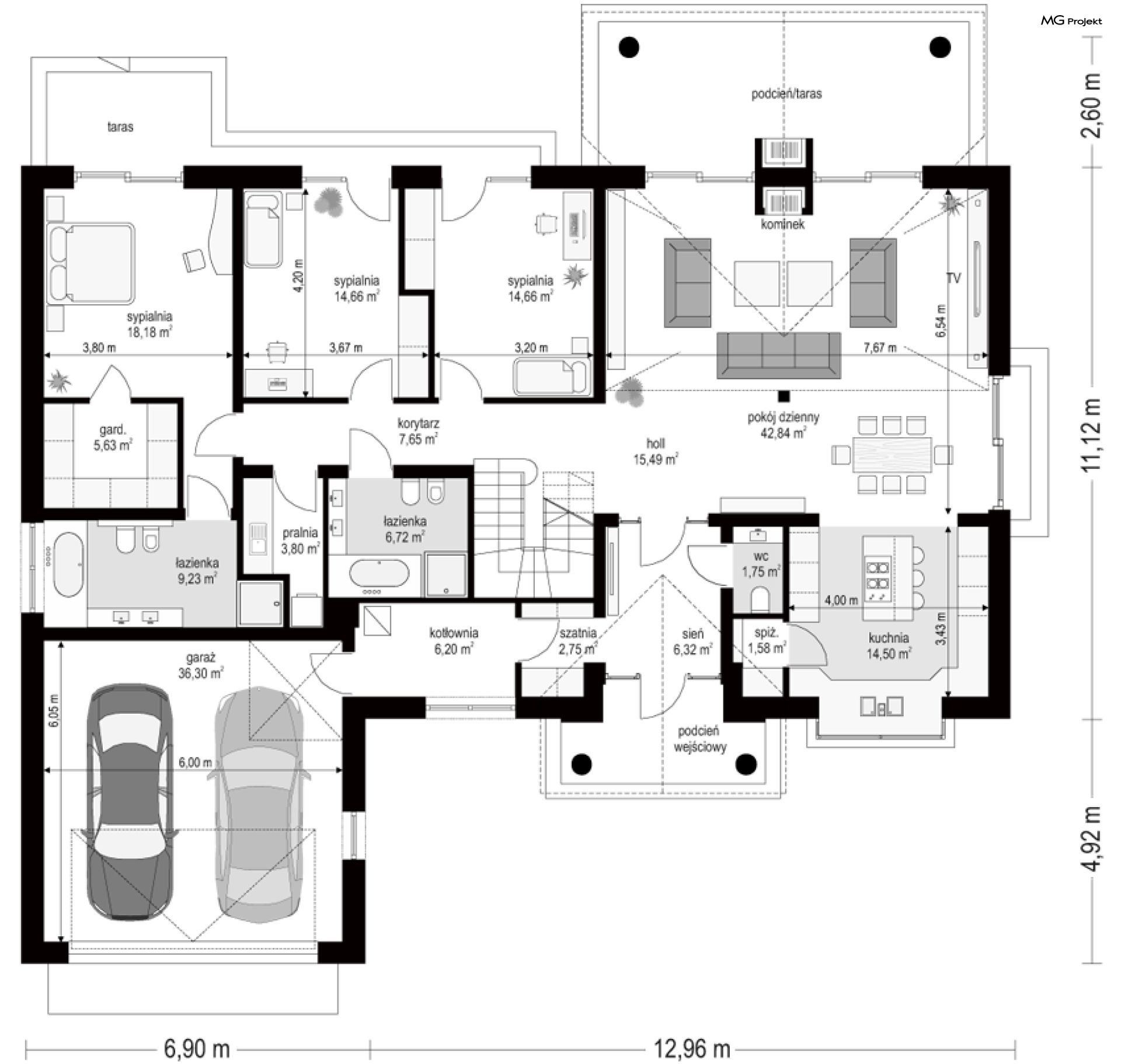
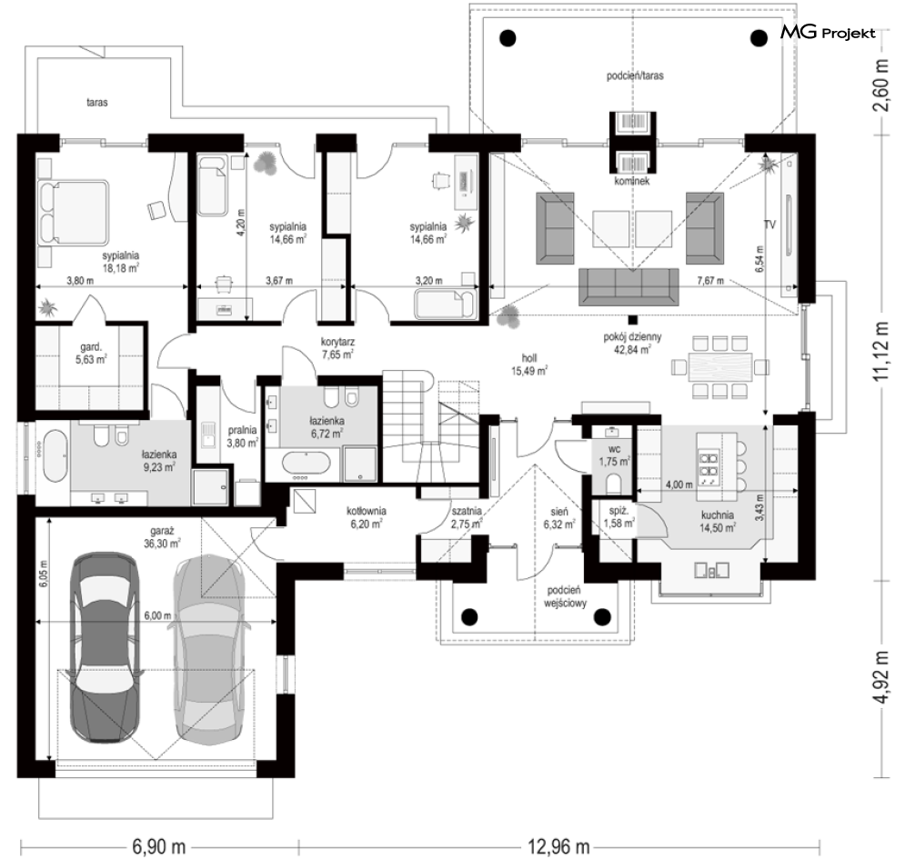
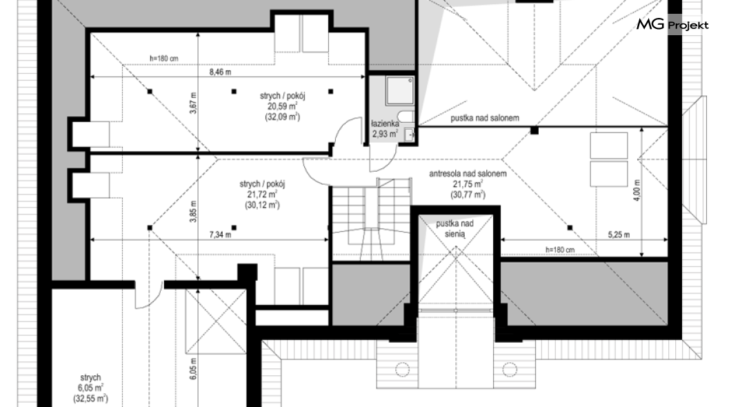
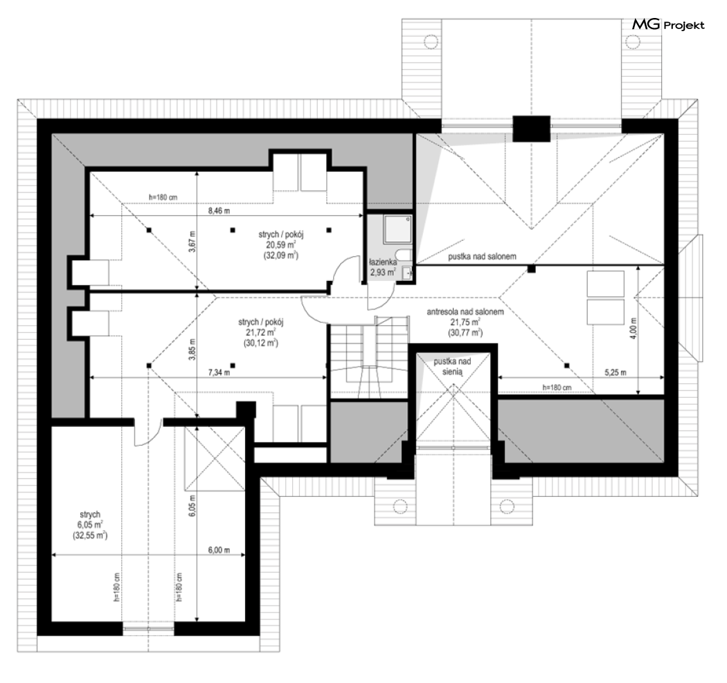
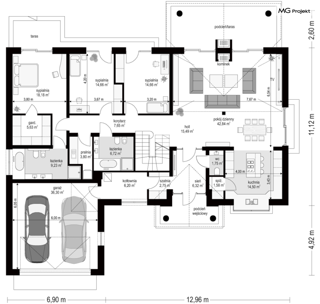
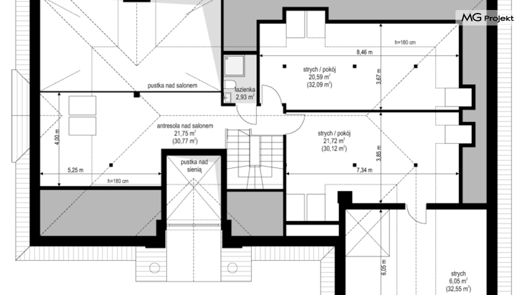
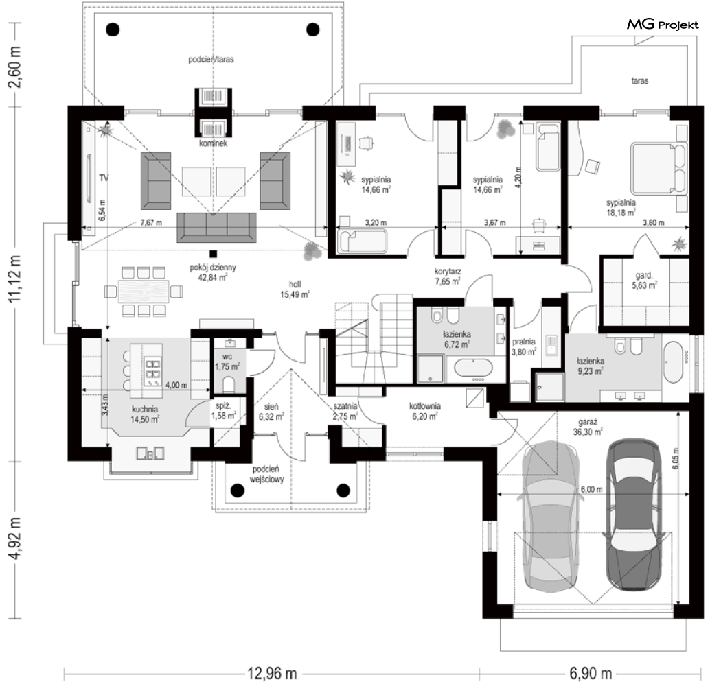
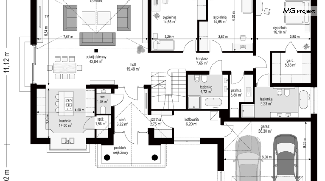
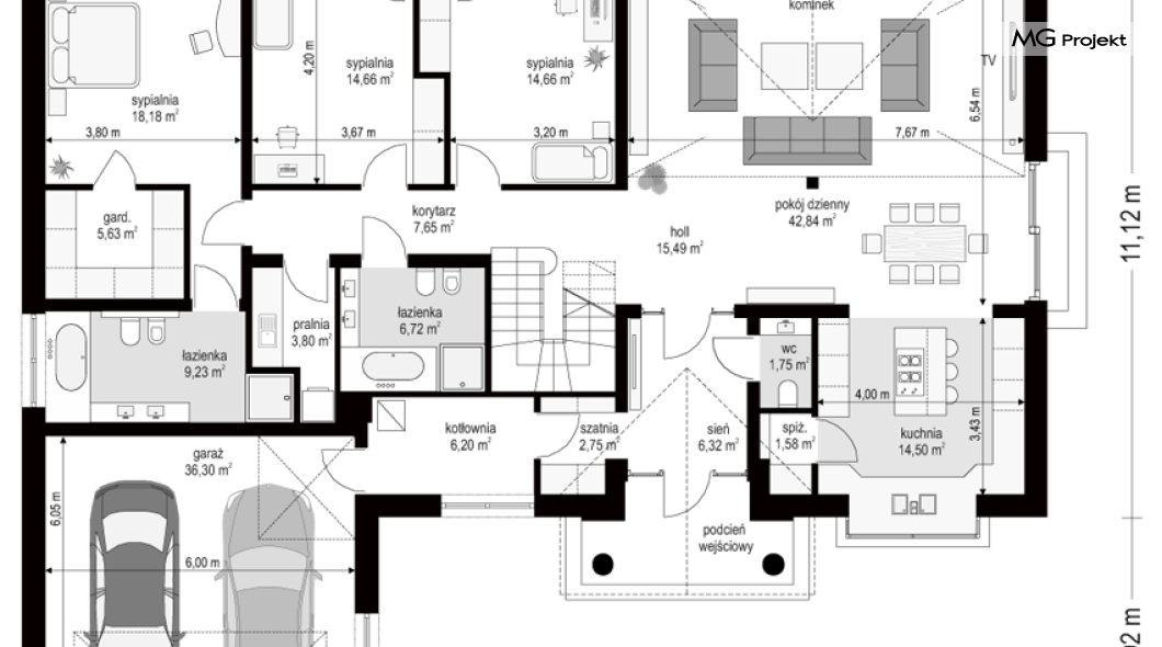
Projekt domu Willa Parkowa 4 jest kolejnym projektem z popularnej serii domów Willa parkowa – Rezydencja parkowa. Dom parterowy, z poddaszem użytkowym, zbudowany na prostokątnej bryle przykrytej czterospadowym dachem, z dobudowaną częścią garażową. Dom zaprojektowany został w nawiązaniu do tradycyjnego rezydencjonalnego stylu, z detalami podkreślającymi reprezentacyjny charakter, dającymi komfort i wrażenie luksusu. Architektura domu jest atrakcyjna, ale też stonowana i dyskretna. Projekt domu Willa Parkowa 4 nawiązuje do tradycji, ale w bardziej nowoczesnym współczesnym ujęciu. Front domu ozdabia piękny półtora kondygnacyjny portyk wejściowy, z bocznymi przeszkleniami drzwi wejściowych i łukowym naświetlem. Reprezentacyjne drzwi wejściowe zapraszają do wnętrza willi. od strony ogrodu atrakcję stanowią duże przeszklenia z poszczególnych pokoi, w tym największe wysokie przeszklenie salonu z pustką, otwierające się na zadaszony taras i ogród. Wnętrze parteru budynku podzielono funkcjonalnie na trzy częsci: cześć dzienną, z salonem z otwarciem przestrzennym na antresolę na poddaszu, kuchnią i holem, następnie na części gospodarczo –garażową, z dostępnymi z przedsionka garażem i kotłownią, oraz część nocną składającą się z trzech sypialni na parterze, oraz dodatkowych dwóch pokoi na poddaszu. Poddasze - strych można dowolnie zagospodarować. Mogą tam się mieścić pokoje, albo też można tam pozostawić nieużytkowy strych nad parterem - dowolnie. Na parterze mamy dwie łazienki i dodatkowe wc, oraz pralnię przy sypialniach. Apartament rodziców ma własną łazienkę i garderobę. Na poddaszu, jeśli strych jest zaadaptowany na poddasze, jest miejsce na dodatkową łazienkę. Dom jest zaprojektowany funkcjonalnie, praktycznie, ma wszystkie potrzebne pomieszczenia dla funkcjonowania pełnej rodziny. Dzięki strychowi jest tutaj zapas dodatkowej przestrzeni do wykorzystania. budynek ma dość prostą konstrukcję, nie powinien być trudny w budowie. Dzięki zastosowaniu energooszczędnych materiałów i instalacji, Dom Willa Parkowa 4 będzie tani w późniejszej eksploatacji. Zapraszamy do obejrzenia wszystkich projektów domów z serii Willa Parkowa: https://www.mgprojekt.com.pl/willa-parkowa, https://www.mgprojekt.com.pl/willa-parkowa-2, https://www.mgprojekt.com.pl/willa-parkowa-3, https://www.mgprojekt.com.pl/willa-parkowa-4, https://www.mgprojekt.com.pl/willa-parkowa-5, https://www.mgprojekt.com.pl/willa-parkowa-6, https://www.mgprojekt.com.pl/willa-parkowa-6-d, https://www.mgprojekt.com.pl/willa-parkowa-7, https://www.mgprojekt.com.pl/willa-parkowa-8-a, https://www.mgprojekt.com.pl/willa-parkowa-8-b, https://www.mgprojekt.com.pl/willa-parkowa-9, https://www.mgprojekt.com.pl/willa-parkowa-10, https://www.mgprojekt.com.pl/willa-parkowa-b, https://www.mgprojekt.com.pl/willa-parkowa-c, https://www.mgprojekt.com.pl/willa-parkowa-d.
-
Projekt szamba szczelnego0 zł399 zł
-
Charakterystyka energetyczna0 zł200 zł
-
Pakiet energooszczędny0 zł150 zł
-
Dziennik budowy0 zł60 zł
-
Tablica budowy0 zł120 zł
-
Wersja elektroniczna projektu550 zł
-
Pakiet kosztorys inwestorski550 zł
-
Pakiet ogrzewanie podłogowe470 zł
-
Powietrzna pompa ciepła470 zł
-
Pakiet wentylacja mechaniczna i kominek DGP470 zł
-
Dodatkowy egzemplarz projektu500 zł
-
Pakiet kotłownia na paliwo stałe470 zł
-
Pakiet instalacja fotowoltaiczna470 zł
-
Pakiet klimatyzacja w domu470 zł
-
Pakiet gruntowa pompa ciepła470 zł
-
Pakiet odkurzacz centralny470 zł
-
Pakiet płaszcz wodny470 zł
-
Pakiet kominek DGP399 zł
-
Projekty altan i grillów ogrodowych650 zł
-
Pakiet instalacja solarna470 zł

opieką konsultacyjną w trakcie budowy domu
