Uroczy







Projekt domu Uroczy to parterowy dom jednorodzinny o wdzięcznej nazwie dla 3-5 cioosobowej rodziny. Dom Uroczy został zaprojektowany na planie litery „T”. Jego rozłożysty plan parteru, na którym zmieszczono wszystkie funkcje domu przykryto wielospadowym dachem kryjącym przestronny strych. Projekt domu Uroczy został zaplanowany w taki sposób, aby nadawał się do zastosowania zarówno na działkę z wjazdem od północy, jak i od południa, od nasłonecznionej strony. Dzięki dobremu doświetleniu salonu z trzech stron i przesunięciu tarasów na boczną elewację, nawet na mniej korzystnie usytuowanej względem słońca działce, zarówno wnętrza, jak i tarasy będą bardzo dobrze doświetlone.
Projekt domu Uroczy architektura i wnetrze
Architektura domku Uroczy utrzymana jest w stylu komfortowej podmiejskiej willi - nowoczesnej, ale osadzonej w tradycyjnej bryle.
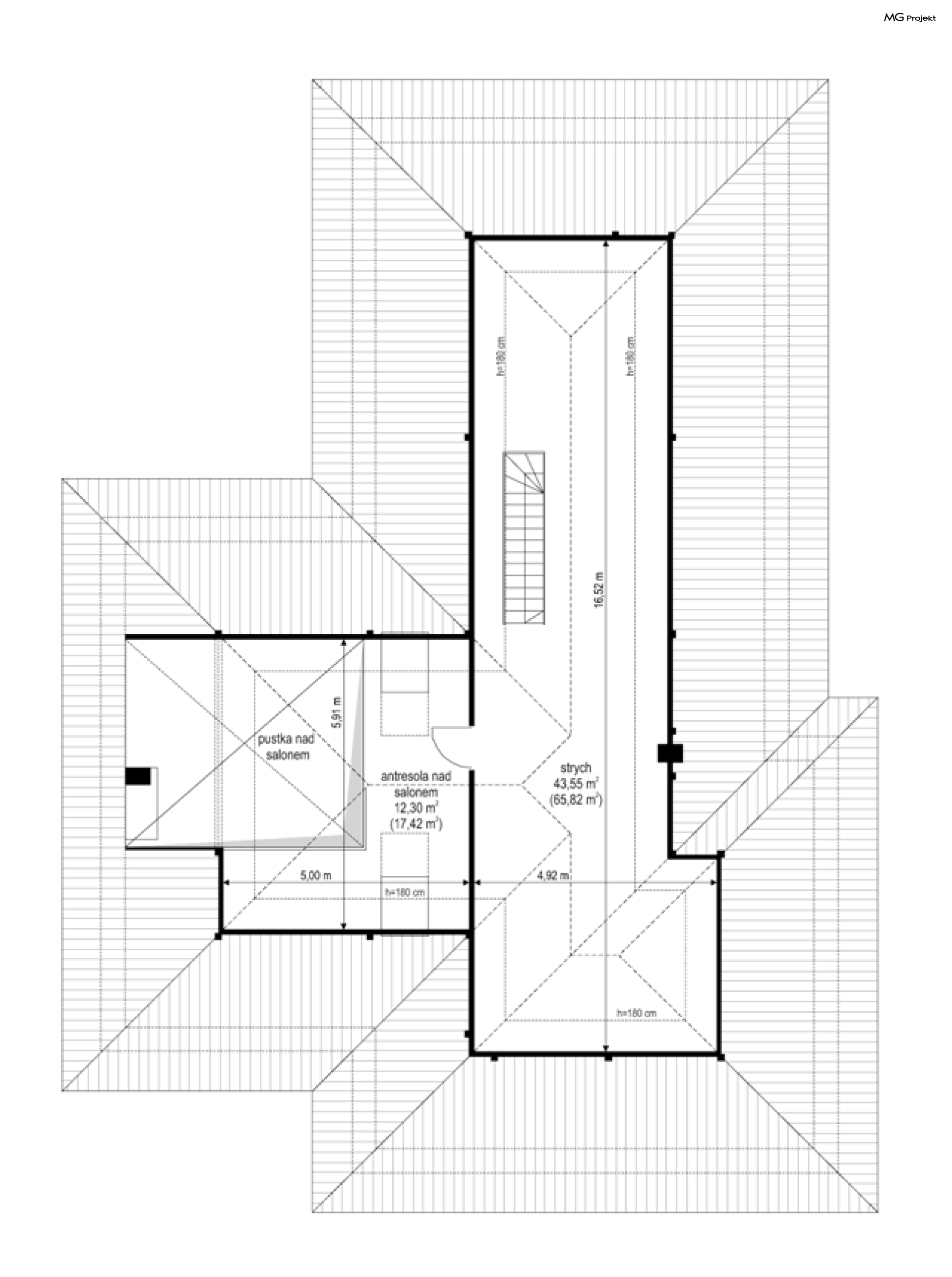
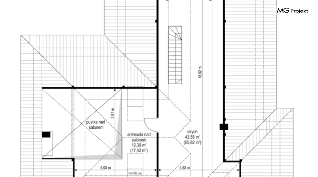
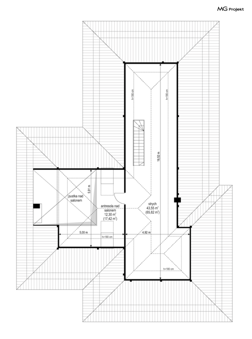
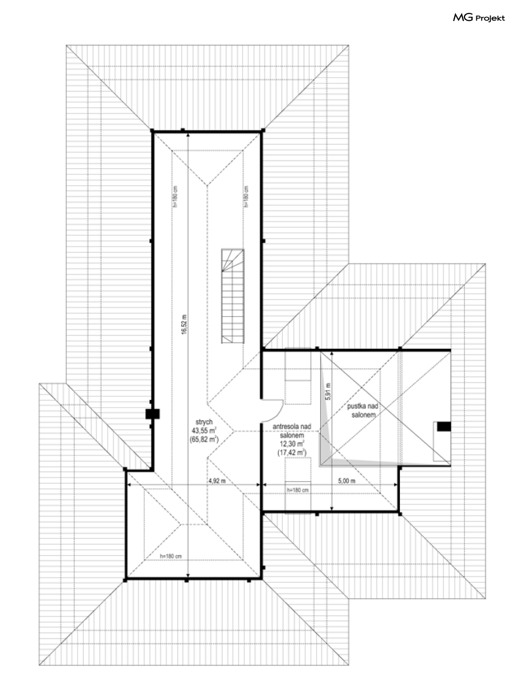
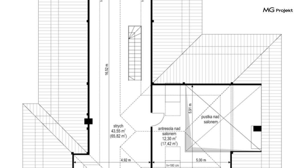
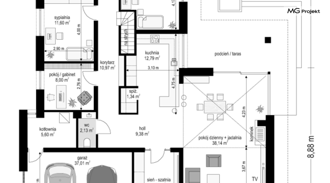
Duże przeszklenia otwierają wnętrze budynku na otaczający ogród. Wnętrze budynku Uroczy podzielono na część dzienną i osobną część nocną z pokojami mieszkańców. Do projektu Uroczy wchodzimy pięknymi szerokimi drzwiami z naświetlami do bardzo obszernego i tym samym wygodnego przedsionka, a stamtąd dalej do holu i części dziennej domu. W projekcie domku Uroczy połączony salon, z jadalnią, hol i kuchnia stanowią wspólne wnętrze dzienne. Przeszklony narożnik jadalni projektu Uroczy otwiera wnętrze domu na kameralny taras z dużym podcieniem. Z okna kuchennego między szafkami można obserwować przyjęcia na tarasie. Obszerna kuchnia ze spiżarką otwiera się na salon półwyspem z hokerami. Nad częścią dzienną projektu Uroczy otwiera się pustka nad salonem z widocznym dachem i antresolą na strychu. Z sieni projektu domu Uroczy przechodzimy też do dwustanowiskowego garażu i kotłowni. Część nocna domu to apartament rodziców z własną łazienką, garderobą i tarasem, dwie sypialnie dziecięce z łazienką, oraz dodatkowy pokój - np. gabinet. Pokoje można podzielić w łatwy sposób inaczej. W projekcie domku Uroczy nad parterem mamy obszerny strych, oraz antresolę nad salonem. Strych można dowolnie zagospodarować - pozostawić go jako domowy magazyn, lub zaadaptować go na poddasze użytkowe zwiększając w ten sposób powierzchnię użytkową budynku. Projekt domu Uroczy został zaprojektowany jako energooszczędny, nieskomplikowany w budowie i maksymalnie funkcjonalny. Projekt dobrze nadaje się na dość wąską działkę, a szczególnie na parcelę z niekorzystnym wjazdem od południa lub zachodu. Do wymarzona propozycja dla ambitnych i ceniących estetykę Inwestorów. Pracownia MGProjekt dysponuje też odbiciel lustrzanym projektu domku Uroczy z garażem po lewej stronie.
