22 257 84 76 pon-pt: 9-17
Menu

Willa Parkowa 6 D

Dodaj do porównania Usuń z porównania
Dodaj do ulubionych Usuń z ulubionych
Code icon
Lustrzane odbicie
Pow. użytkowa:
157.58m2
Pow. zabudowy:
259.8m2
Koszt budowy:
836000zł
Liczba pokoi:
5
Liczba łazienek:
3
Garaż:
2
Rzuty Elewacja Specyfikacja techniczna Koszty Opis
Share icon
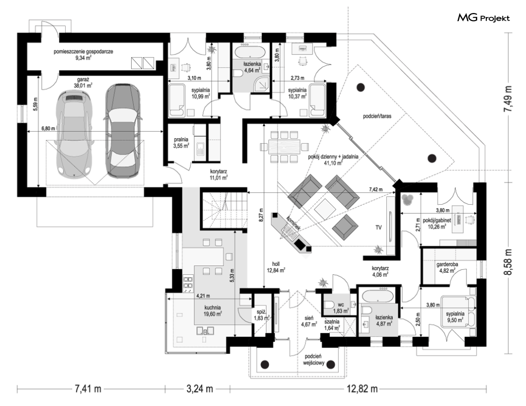
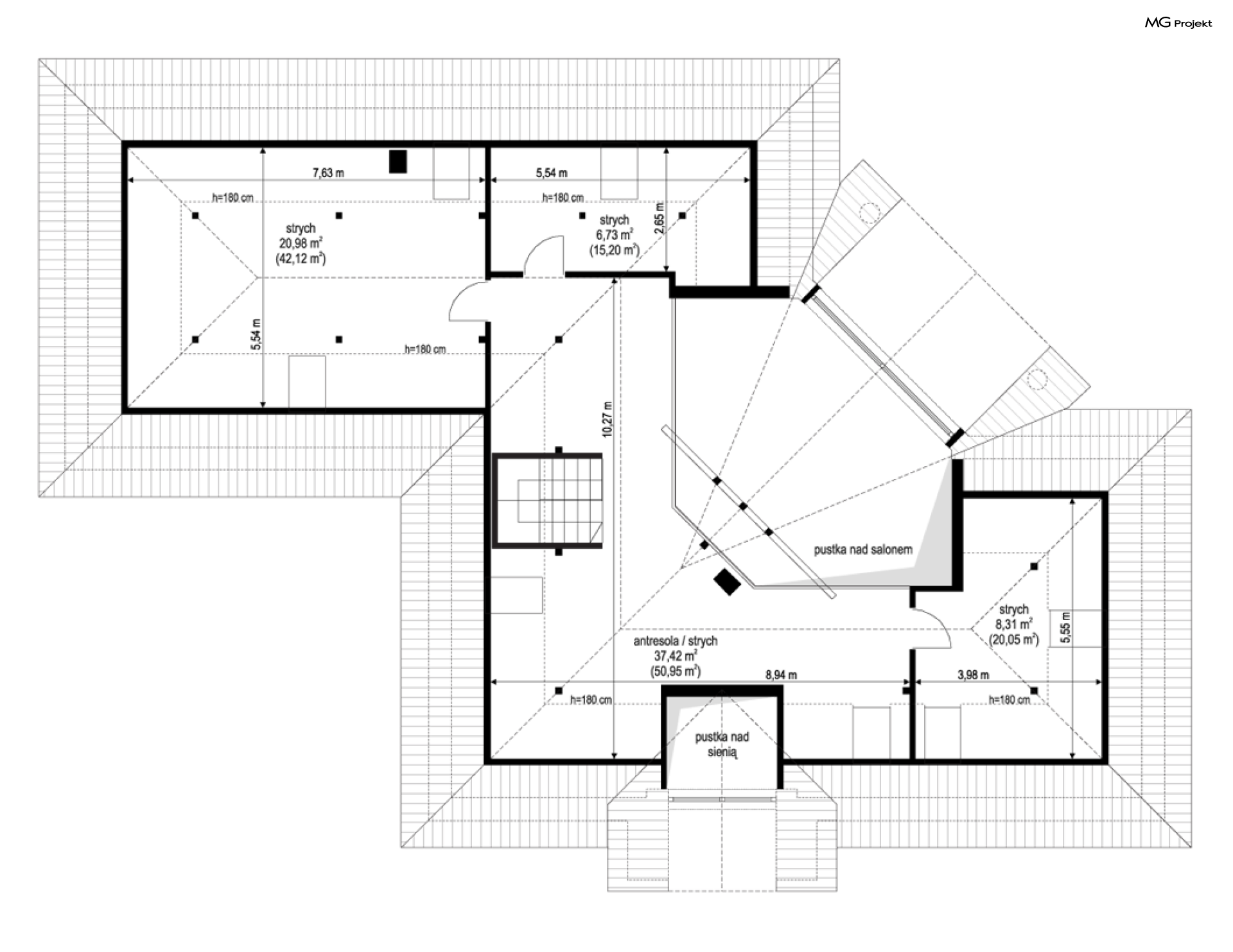
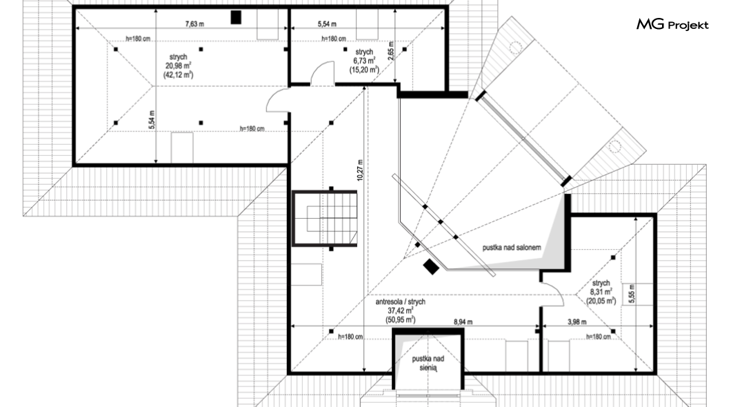
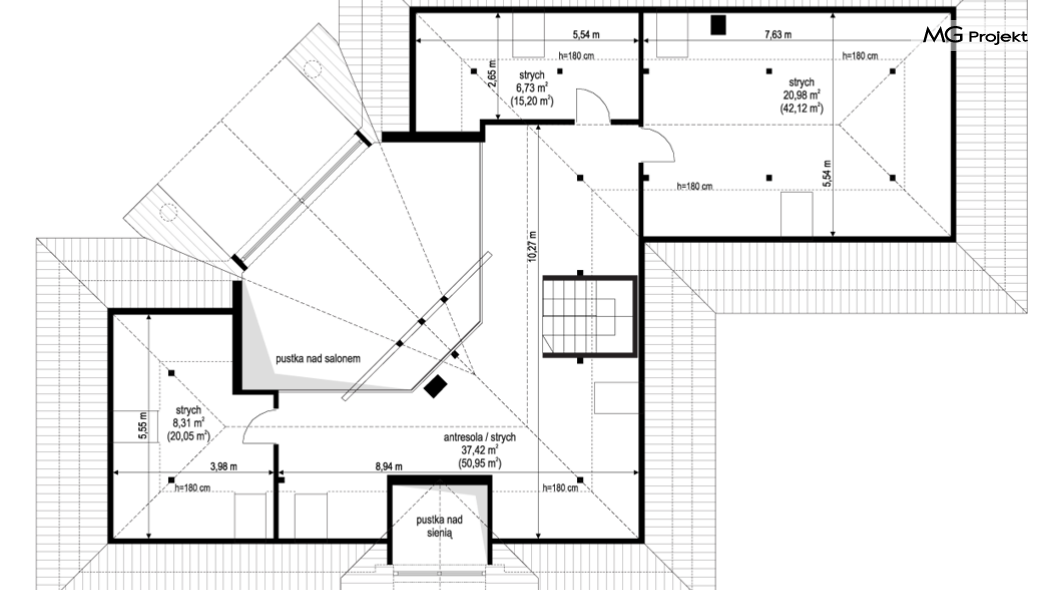
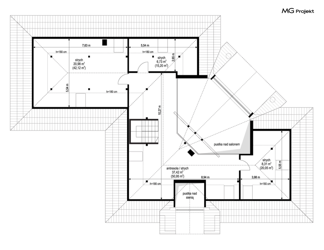
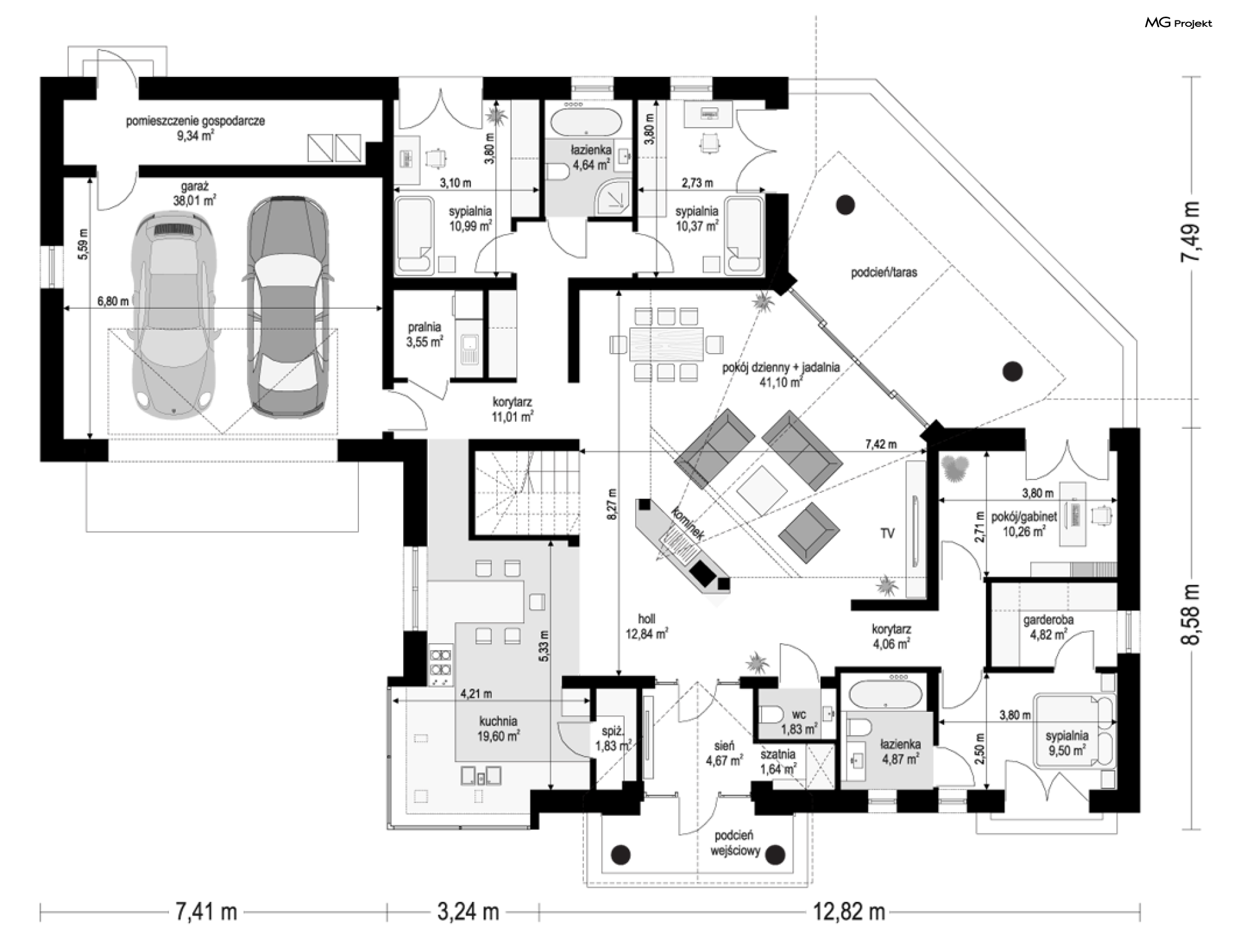
Rzuty
Willa Parkowa 6 D
Lustrzane odbicie
Pobierz rysunki szczegółowe
Zapytaj, co możesz zmienić
Willa Parkowa 6 D
Lustrzane odbicie
Pobierz rysunki szczegółowe
Zapytaj, co możesz zmienić
Zamów rysunki szczegółowe
Zapoznaj się ze szczegółowymi rysunkami rzutów kondygnacji w PDF dla tego projektu.
ZAMAWIAM
Order drawings image
Elewacje
Willa Parkowa 6 D
Frontowa
Willa Parkowa 6 D
Ogrodowa
Willa Parkowa 6 D
Lewa
Willa Parkowa 6 D
Prawa
Specyfikacja techniczna
Główne parametry
Powierzchnia użytkowa
157,58 m2
Łączna powierzchnia tzw. pomieszczeń użytkowych. Przede wszystkim nie zalicza się do niej powierzchni garażu, nieużytkowego strychu, piwnicy, kotłowni.
Liczba pokoi
5
Liczba łazienek
3
Garaż
2
Powierzchnia zabudowy
259,80 m2
Powierzchnia zajmowana przez budynek na działce. W praktyce tzw. powierzchnia rzutu budynku wyznaczana po obrysie ścian zewnętrznych.
Pełna specyfikacja
Maksymalna wysokość budynku
7,02 m
Wysokość wyznaczona od poziomu terenu do najwyżej położonej części dachu (np. kalenicy), zwykle bez uwzględnienia kominów.
Kąt nachylenia dachu
35,00°
Nachylenie połaci dachu podane w stopniach.
Minimalne wymiary działki (szerokość)
31,47 m
Szerokość działki wyznaczona przy założeniu, że minimalna odległość budynku od granic działki wynosi przynajmniej 3 m w przypadku ścian bez otworów okiennych lub drzwiowych, albo 4 m w przypadku ścian budynku z takimi otworami.
Minimalne wymiary działki (długość)
24,07 m
Długość działki wyznaczona przy założeniu, że minimalna odległość budynku od granic działki wynosi przynajmniej 3 m w przypadku ścian bez otworów okiennych lub drzwiowych, albo 4 m w przypadku ścian budynku z takimi otworami.
Technologia budowy
Murowany
Typ dachu
Wielospadowy
Kształt dachu – płaski, jednospadowy (jedna skośna połać), dwuspadowy (dwie połacie), wielospadowy (w praktyce o przynajmniej czterech połaciach).
Energooszczędność
Energooszczędny
Energooszczędny – dom o zapotrzebowaniu na tzw. nieodnawialna energię pierwotną (EP) niższym, niż wymagana przepisami maksymalna wartość.
Typ zabudowy
Jednorodzinny
Koszt: Instalacje
99 786
Łączny koszt wykonania wszystkich niezbędnych instalacji wewnętrznych – grzewczej, wentylacyjnej, wodno-kanalizacyjnej, elektrycznej itd.
Koszt: Wykoczńenie
390 051
Powierzchnia garażu
32,42 m2
Powierzchnia strychu
73,44 m2
Powierzchnia netto budynku
166,92 m2
Łączna powierzchnia wszystkich kondygnacjach obliczana z pominięciem elementów konstrukcyjnych (ściany nośne, słupy itp.) ale wraz z powierzchnią zajmowaną przez ścianki działowe lub inne elementy, które można potencjalnie zdemontować.
Powierzchnia całkowita budynku
259,80 m2
Łączna powierzchnia wszystkich kondygnacjach obliczana po obrysie ścian zewnętrznych, wraz z powierzchnią zajmowaną przez ściany wewnętrzne.
Kubatura budynku
1 019,00 m3
Objętość budynku, zwykle wraz z elementami konstrukcyjnymi (ścianami, stropami itd.).
Szerokość budynku
23,47 m
Maksymalna szerokość budynku wraz z grubością izolacji cieplnej oraz okładzin ściennych.
Długość budynku
16,07 m
Maksymalna długość budynku wraz z grubością izolacji cieplnej oraz okładzin ściennych.
Liczba kondygnacji
Z poddaszem do adaptacji
Za kondygnacje uznawane są również poddasza użytkowe oraz piwnice. Kondygnacją nie jest natomiast poddasze nieużytkowe ani antresola.
Koszty
Koszty budowy
836 000 zł
Koszt: Stan pod klucz
Obejmuje koszt wszystkich robót stanu surowego, wykonania instalacji wewnętrznych oraz robót wykończeniowych.
548 000 zł
Koszt: Stan surowy zamknięty
Koszt wzniesienia budynku wraz z pokryciem dachu i stolarką zewnętrzną (okna i drzwi). Bez instalacji, ocieplenia i robót wykończeniowych.
Koszty utrzymania
EP = 61,90 kWh/m2 rok
Oznacza ilość energii nieodnawialnej, jaką budynek może pozyskiwać z nieodnawialnych surowców energetycznych, czyli energii zawartej w paliwach i nośnikach takich jak węgiel, gaz czy ropa naftowa.
Opis

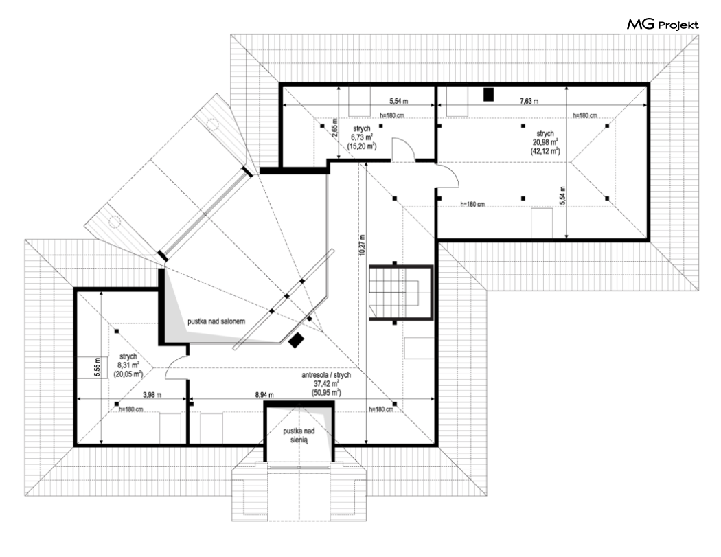
Projekt domu Willa Parkowa 6 D jest wersją popularnego projektu Willa Parkowa 6, tym razem jest to wariant D - dom o zmniejszonej o około 50 m2 powierzchni, o mniejszej powierzchni zabudowy i wymiarach zewnętrznych. Willa mimo zmniejszonych wymiarów zachowuje wszystkie rozwiązania funkcjonalne i estetyczne pierwotnego budynku. Willa Parkowa 6 D to komfortowa podmiejska mini-rezydencja, o stylowej architekturze, łącząca w sobie klasyczną estetykę, z nowocześnie zaprojektowanym wnętrzem. Budynek zaprojektowany jest w kształcie litery „L”, z dodatkowo dobudowaną częścią garażową. Bryła budynku tworzy dwa wewnętrzne dziedzińce. Frontowy od strony garażu - dzięki czemu brama garażowa jest wepchnięta wgłąb działki i oddzielona od reprezentacyjnego wejścia. Drugi wewnętrzny dziedziniec od strony ogrodowej, gdzie boczne ściany tworzą wewnętrzne patio z tarasem i ciekawym narożnym wyjściem z salonu do ogrodu. Front domu zdobi elegancki portyk wejściowy, z wysokimi drzwiami zakończonymi łukowym naświetlem. Dodatkowym elementem zdobiącym elewację frontową jest szerokie piękne narożne okno kuchenne z wykuszem. Od strony ogrodowej pierwsze skrzypce gra duże okno z salonu na taras, z łukowym naświetlem łączącym dwukondygnacyjny salon z pięknie zadaszonym podcieniem. Wnętrze domu zaprojektowano wokół centralnie ustawionego salonu, do którego wchodzimy z przedsionka i holu. Salon dzieli się na dwie części - wypoczynkową z kanapami ustawionymi naprzeciwko pięknie wyeksponowanej ściany kominkowo – telewizyjnej, oraz część jadalnianą z wygodnym stołem. Po przeciwnej stronie domu za ścianą kominkową znajduje się piękna kuchnia ze stołem do szybkich codziennych posiłków. Kuchnia łączy się funkcjonalnie z częścią techniczno-gospodarczą domu - z pomieszczeniem pralni, garażem i kotłownią. Dzięki temu chodzenie z zakupami z garażu będzie ułatwione. W dwóch skrajnych skrzydłach budynku zaprojektowano sypialnie, rozdzielając je na część z sypialniami dziecięcymi z łazienką, oraz na oddzielną część z sypialnią rodziców – z własną garderobą i łazienką. Obok sypialni master przewidziano dodatkowy pokój – gabinet. Całość funkcji użytkowej mieści się na parterze domu, ale nad parterem mamy jeszcze do dyspozycji bardzo ładną przestrzeń strychową, którą można pozostawić jako strych, lub zaadaptować na dodatkowe poddasze użytkowe. Może tutaj być pozostawiona jedna duża otwarta przestrzeń, lub można wydzielić pokoje - dowolnie, wedle inwencji właścicieli. Nad częścią garażową zaprojektowano wydzielony strych -magazyn. Budynek zaprojektowano z wykorzystaniem nowoczesnych materiałów i technologii. Dom, dzięki dobrym izolacjom i wydajnym instalacjom jest energooszczędny i będzie niedrogi w późniejszym utrzymaniu. Willa Parkowa 6D to doskonała propozycja dla osób szukających nietuzinkowej oryginalnej architektury. Marzących o reprezentacyjnej willi, ale bez niepotrzebnej ekstrawagancji i przesady. Zapraszamy !

Zapraszamy do obejrzenia wszystkich projektów domów z serii Willa Parkowa: https://www.mgprojekt.com.pl/willa-parkowa, https://www.mgprojekt.com.pl/willa-parkowa-2, https://www.mgprojekt.com.pl/willa-parkowa-3, https://www.mgprojekt.com.pl/willa-parkowa-4, https://www.mgprojekt.com.pl/willa-parkowa-5, https://www.mgprojekt.com.pl/willa-parkowa-6, https://www.mgprojekt.com.pl/willa-parkowa-6-d, https://www.mgprojekt.com.pl/willa-parkowa-7, https://www.mgprojekt.com.pl/willa-parkowa-8-a, https://www.mgprojekt.com.pl/willa-parkowa-8-b, https://www.mgprojekt.com.pl/willa-parkowa-9, https://www.mgprojekt.com.pl/willa-parkowa-10, https://www.mgprojekt.com.pl/willa-parkowa-b, https://www.mgprojekt.com.pl/willa-parkowa-c, https://www.mgprojekt.com.pl/willa-parkowa-d.

Projekty są również dostępne w odbiciu lustrzanym.

CZYTAJ WIĘCEJ
Willa Parkowa 6 D
BD43268
Powierzchnia użytkowa
Łączna powierzchnia tzw. pomieszczeń użytkowych. Przede wszystkim nie zalicza się do niej powierzchni garażu, nieużytkowego strychu, piwnicy, kotłowni.
157,58 m2
Liczba pokoi
5
Liczba łazienek
3
Garaż
2
Powierzchnia zabudowy
Powierzchnia zajmowana przez budynek na działce. W praktyce tzw. powierzchnia rzutu budynku wyznaczana po obrysie ścian zewnętrznych.
259,80 m2
Projekt domu Willa Parkowa 6 D
Pobierz rysunki szczegółowe tego domu i sprawdź dokładne wymiary pomieszczeń! Wypełnij wszystkie pola, aby dostać rysunki
Administratorem Twoich danych jest AVT-Korporacja sp. z o.o. z siedzibą ul. Leszczynowa 11, 03-197 Warszawa. Chodzi o dane osobowe, które zbieramy, aby móc wysłać Ci nasze produkty (czasopisma w formie drukowanej lub elektronicznej i inne towary) oraz faktury za ich zakup. ... Chcemy przetwarzać Twoje dane osobowe w celach opisanych w naszej polityce prywatności, a w szczególności: w celu realizacji usług świadczonych w naszym sklepie internetowym oraz w innych prawnie usprawiedliwionych celach, w tym marketingu bezpośredniego naszych produktów i usług (tzw. uzasadniony interes administratora). Bez Twojej zgody nie przekażemy i nie będziemy dokonywać obrotu (nie użyczymy, nie sprzedamy) Twoich danych osobowych innym osobom lub instytucjom. Twoje dane osobowe możemy przekazać jedynie podmiotom uprawnionym do ich uzyskania na podstawie obowiązującego prawa (np. sądy lub organy ścigania) – ale tylko na ich żądanie w oparciu o stosowną podstawę prawną. Będziemy przetwarzać Twoje dane osobowe tak długo, jak będzie to niezbędne do wykonania umowy, a po tym czasie – przez okres odpowiadający okresowi przedawnienia roszczeń, jakie może podnosić administrator danych i jakie mogą być podnoszone wobec administratora danych. Masz prawo do żądania od administratora dostępu do Twoich danych, ich sprostowania, usunięcia, ograniczenia ich przetwarzania, wniesienia sprzeciwu wobec przetwarzania Twoich danych lub ich przenoszenia. W każdej chwili możesz odwołać zgodę na przetwarzanie Twoich danych osobowych oraz możesz zażądać, by Twoje wszystkie dane zostały przez nas usunięte. Podstawy prawne przetwarzania Twoich danych osobowych: art. 5, 6, art. 12, art. 13 Ogólnego rozporządzenia o ochronie danych osobowych (RODO), art. 10 Ustawy o świadczeniu usług drogą elektroniczną, Rozporządzenie Ministra Finansów w sprawie przesyłania faktur w formie elektronicznej, zasad ich przechowywania oraz trybu udostępniania organowi podatkowemu lub organowi kontroli skarbowej z dnia 20 grudnia 2012 r. (Dz.U. z 2012 r. poz. 1528) oraz zasadami wystawiania, przesyłania i przechowywania faktury elektronicznej. Czytaj dalej Zwiń
Close icon
Projekt domu Willa Parkowa 6 D
Pobierz rysunki szczegółowe tego domu i sprawdź dokładne wymiary pomieszczeń! Wypełnij wszystkie pola, aby dostać rysunki
Administrator danych osobowych: AVT-Korporacja sp. z o.o. z siedzibą: ul. Leszczynowa 11, 03-197 Warszawa. Cel przetwarzania danych: realizacja wysyłki newslettera ...
Przez 27 lata
z nami zbudowano 500 000 domów
Nawet, jeśli nie kupisz u nas projektu, skorzystaj z naszej wiedzy.
Przeczytaj porady zebrane w naszych publikacjach. Zamów bezpłatnie:
Prenumeratę (3 numery) magazynu Budujemy Dom
Zamów bezpłatnie
3 tomy Praktyczna Szkoła Budowania
Zamów bezpłatnie
Zapisz się do Klubu Budujących Dom by kontynuować dowolnie długą bezpłatną prenumeratę magazynu Budujemy Dom
Ostatnio oglądane
Projekt domu Willa Parkowa 6 D
Administratorem Twoich danych jest AVT-Korporacja sp. z o.o. z siedzibą ul. Leszczynowa 11, 03-197 Warszawa. Chodzi o dane osobowe, które zbieramy, aby móc wysłać Ci nasze produkty (czasopisma w formie drukowanej lub elektronicznej i inne towary) oraz faktury za ich zakup. ... Chcemy przetwarzać Twoje dane osobowe w celach opisanych w naszej polityce prywatności, a w szczególności: w celu realizacji usług świadczonych w naszym sklepie internetowym oraz w innych prawnie usprawiedliwionych celach, w tym marketingu bezpośredniego naszych produktów i usług (tzw. uzasadniony interes administratora). Bez Twojej zgody nie przekażemy i nie będziemy dokonywać obrotu (nie użyczymy, nie sprzedamy) Twoich danych osobowych innym osobom lub instytucjom. Twoje dane osobowe możemy przekazać jedynie podmiotom uprawnionym do ich uzyskania na podstawie obowiązującego prawa (np. sądy lub organy ścigania) – ale tylko na ich żądanie w oparciu o stosowną podstawę prawną. Będziemy przetwarzać Twoje dane osobowe tak długo, jak będzie to niezbędne do wykonania umowy, a po tym czasie – przez okres odpowiadający okresowi przedawnienia roszczeń, jakie może podnosić administrator danych i jakie mogą być podnoszone wobec administratora danych. Masz prawo do żądania od administratora dostępu do Twoich danych, ich sprostowania, usunięcia, ograniczenia ich przetwarzania, wniesienia sprzeciwu wobec przetwarzania Twoich danych lub ich przenoszenia. W każdej chwili możesz odwołać zgodę na przetwarzanie Twoich danych osobowych oraz możesz zażądać, by Twoje wszystkie dane zostały przez nas usunięte. Podstawy prawne przetwarzania Twoich danych osobowych: art. 5, 6, art. 12, art. 13 Ogólnego rozporządzenia o ochronie danych osobowych (RODO), art. 10 Ustawy o świadczeniu usług drogą elektroniczną, Rozporządzenie Ministra Finansów w sprawie przesyłania faktur w formie elektronicznej, zasad ich przechowywania oraz trybu udostępniania organowi podatkowemu lub organowi kontroli skarbowej z dnia 20 grudnia 2012 r. (Dz.U. z 2012 r. poz. 1528) oraz zasadami wystawiania, przesyłania i przechowywania faktury elektronicznej. Czytaj dalej Zwiń