Hiacynt 2







Projekt domu Hiacynt 2 to projekt parterowego domu jednorodzinnego przekrytego wielospadowym dachem, przeznaczonego dla 4-5 osobowej rodziny. Dom Hiacynt 2 ma nowoczesną stylistykę - projekt łączy w sobie tradycyjną bryłę ze spadzistym dachem z atrakcyjnymi detalami architektonicznymi. Powierzchnia użytkowa projektu Hiacynt 2 to 157,32 m2.
Projekt domu Hiacynt 2 bryła budynku
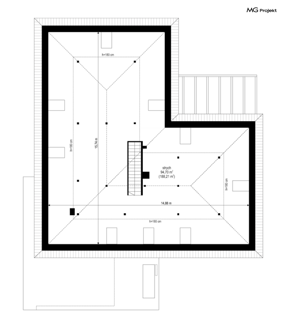
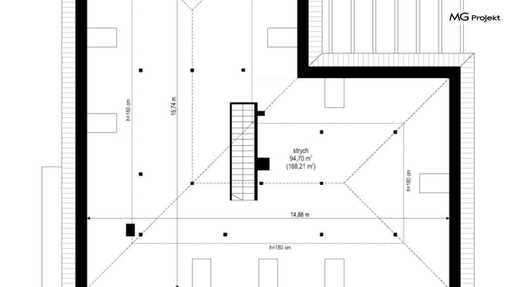
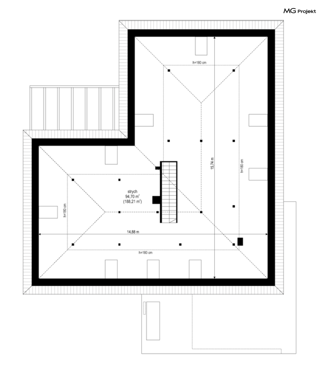
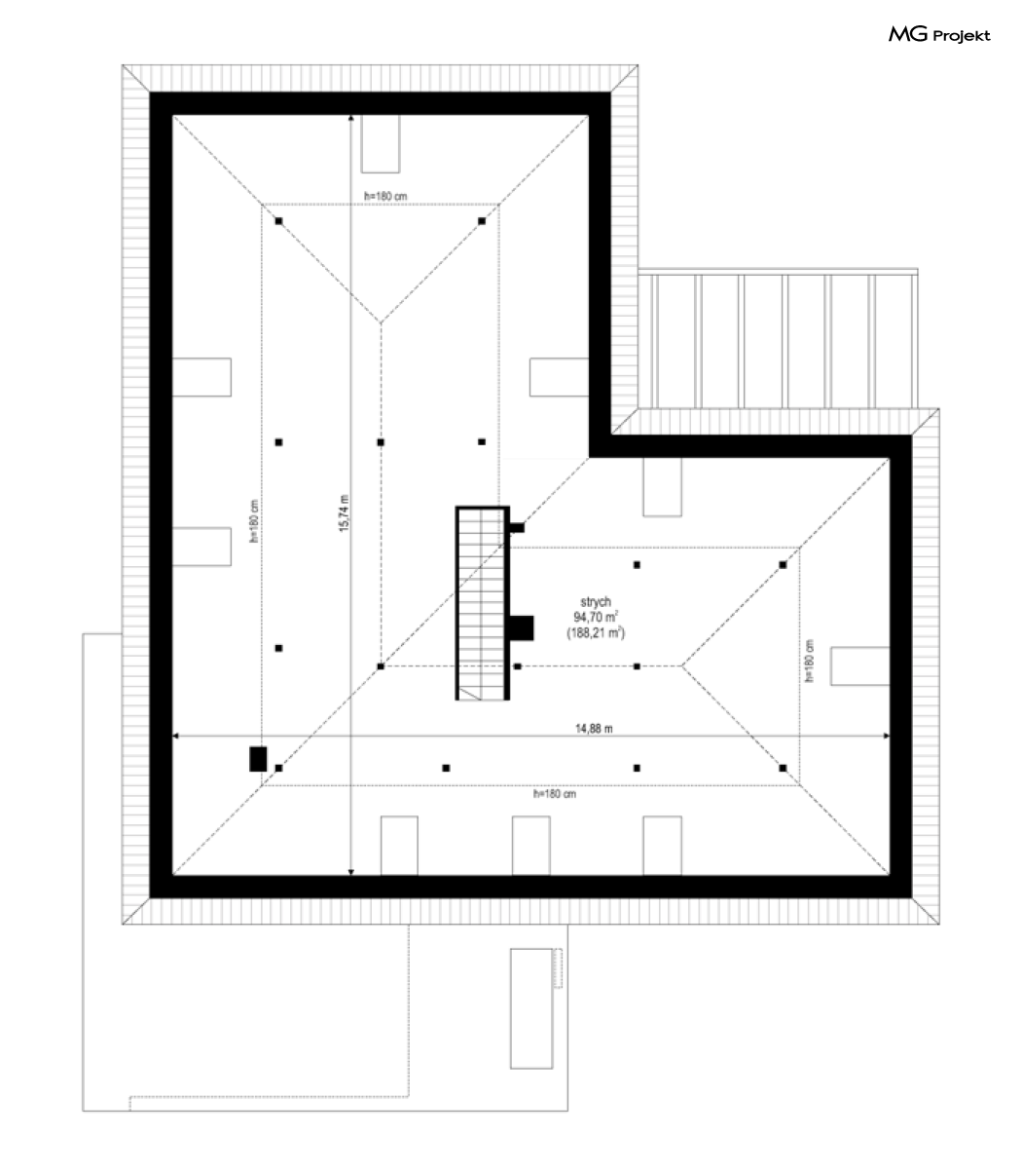
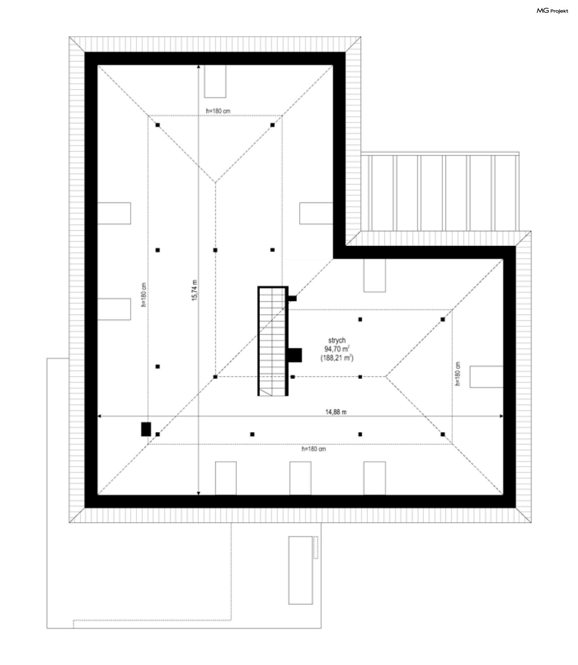
Bryła budynku MG Projekt Hiacynt 2 została zaprojektowana na planie litery "T". W Hiacyncie 2 na parterze domu mieści się cały program funkcjonalny wnętrza. Nad parterem projektu jest jeszcze duża przestrzeń strychowa do dowolnej aranżacji - na strych nieużytkowy lub na poddasze użytkowe. Elewacje domu Hiacynt 2 podzielono poziomymi pasami o zróżnicowanej kolorystyce - od dołu jest to pas przeszkleń, potem nadproży wieńczących kondygnację parteru i u góry pas dachu ze ścianami kolankowymi. Szerokie okna otwierające wnętrze w projekcie na ogród oraz okładziny ścian z betonu architektonicznego i drewna ozdabiają bryłę domu Hiacynt 2.
Projekt domu Hiacynt 2 wnętrze
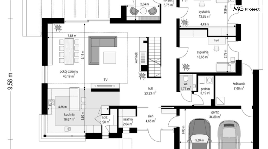
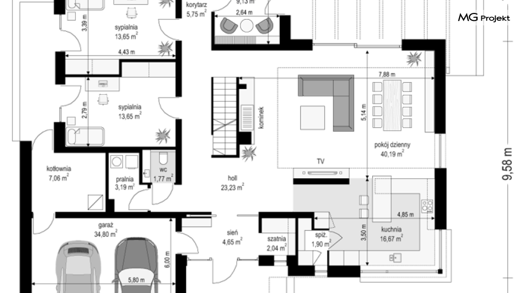
W gotowym projekcie domku Hiacynt 2 wnętrze podzielono na część dzienną z salonem, część gospodarczą - z garażem i pomieszczeniami gospodarczymi, oraz na część z sypialniami mieszkańców. Gotowy projekt domu Hiacynt 2 ma elastyczny program funkcjonalny - dzięki przestrzeni strychowej jego wnętrze użytkowe może rosnąć wraz z potrzebami mieszkańców. Na parterze projektu mamy piękny salon z jadalnią, z centralnie ustawionymi meblami wypoczynkowymi zorientowanymi są na ścianę telewizyjną, oraz na kominek - będący ozdobą wnętrza. Z salonu wychodzimy na częściowo osłonięty pergolą taras budynku. Od frontu domu przechodzimy do kuchni ze spiżarnią, otwartej na salon i ulicę. Na lewo od reprezentacyjnego przedsionka z szatnią, przechodzimy do dużego garażu, kotłowni i pralni. W części budynku za schodami mamy sypialnię rodziców z wyjściem na taras i garderobą. Znajdują się tu również dwie sypialnie dziecięce z szafami wbudowanymi, łazienkę i dodatkowy pokój - np. gabinet.
Budynek Hiacynt 2 zaprojektowano jako energooszczędny - zastosowane materiały, izolacje i instalacje pozwolą na rozsądne koszty eksploatacji budynku. Projekt domu Hiacynt 2 można zbudować na działce o wymiarach: 24,19 m szer i 29,08 m dł. Projekt domu jednorodzinnego Hiacynt 2 to dom dla Inwestorów ceniących nowoczesną architekturę, wyróżniających ten budynek wśród otoczenia. Hiacynt 2 swoją formą, sylwetką i detalem doskonale odda nowoczesny i ambitny charakter i styl życia przyszłych domowników. Gotowy projekt domu jednorodzinnego Hiacynt 2 występuje w dwóch wersjach wariantowych: jako dom z dachem z tradycyjną więźbą i stropem żelbetowym, oraz w wersji bardziej ekonomicznej - jako budynek z prefabrykowaną więźbą dachową i stropem z wiązarów kratownicowych, których wykonanie z montażem pracownia MG Projekt oferuje w zakładzie prefabrykacji MG Domy. Zapraszamy do zapoznania się z innymi projektami: projekt domu Hiacynt, projekt domu Hiacynt 3, projekt domu Hiacynt 4, projekt domu Hiacynt 5, projekt domu Hiacynt 6., projekt domu Hiacynt 7, projekt domu Hiacynt 7 B, projekt domu Hiacynt 8. Projekty dostępne są w odbiciu lustrzanym.
