Narcyz 4







Projekt domu Narcyz 4 to projekt z serii domów Narcyz. Ideą jaka przyświecała stworzeniu projektów z tej serii było uzyskanie prawdziwego domu - o takim kształcie i funkcji, które większość z nas automatycznie ma w głowie wyobrażając sobie dom. Takie domy rysują nasze dzieci, takie domy są głęboko w naszej pamięci. Postanowiliśmy połączyć tradycyjną formę budynku z dwuspadowym dachem z nowoczesnymi rozwiązaniami funkcjonalno - materiałowymi, tak aby jego architektura była maksymalnie ponadczasowa, ładnie się starzała, a jednocześnie żeby nawiązywała do obecnie obowiązującej mody.
Projekt Narcyz 4 bryła
Projekt Narcyz 4 to parterowy dom z poddaszem użytkowym, zbudowany na planie prostokąta, przykryty dwuspadowym dachem. Do głównej bryły dobudowana jest część garażowa z poddaszem. Symetryczna proporcjonalna elewacja frontowa w swojej osi ma podcień wejściowy z solidnymi drzwiami z naświetlem i szeroką lukarnę z balkonem. Od strony elewacji ogrodowej urozmaiceniem jest zadaszenie tarasu i szerokie przesuwne drzwi balkonowe salonu.
Narcyz 4 wnętrze
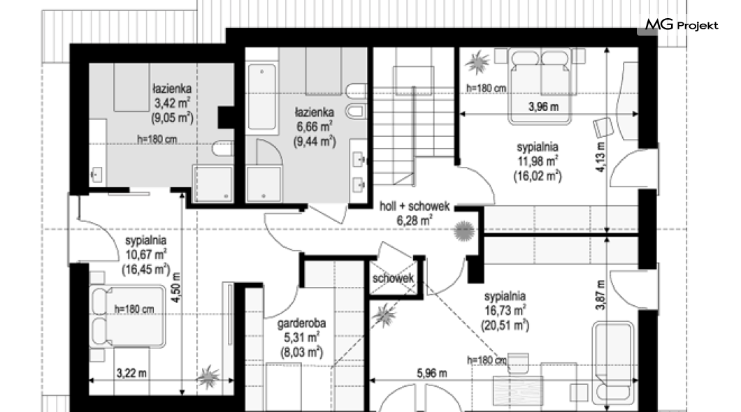
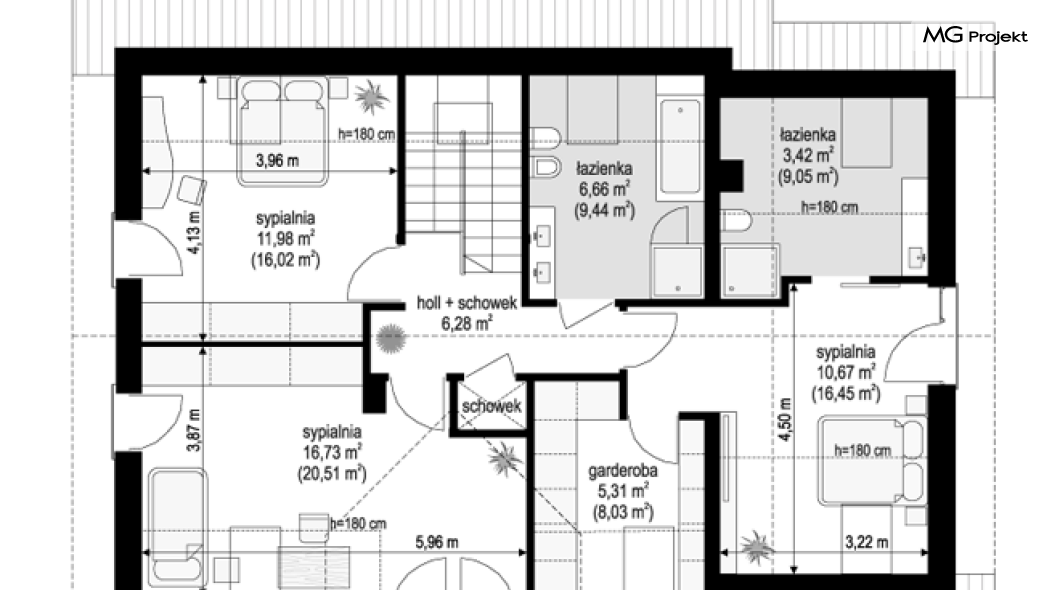
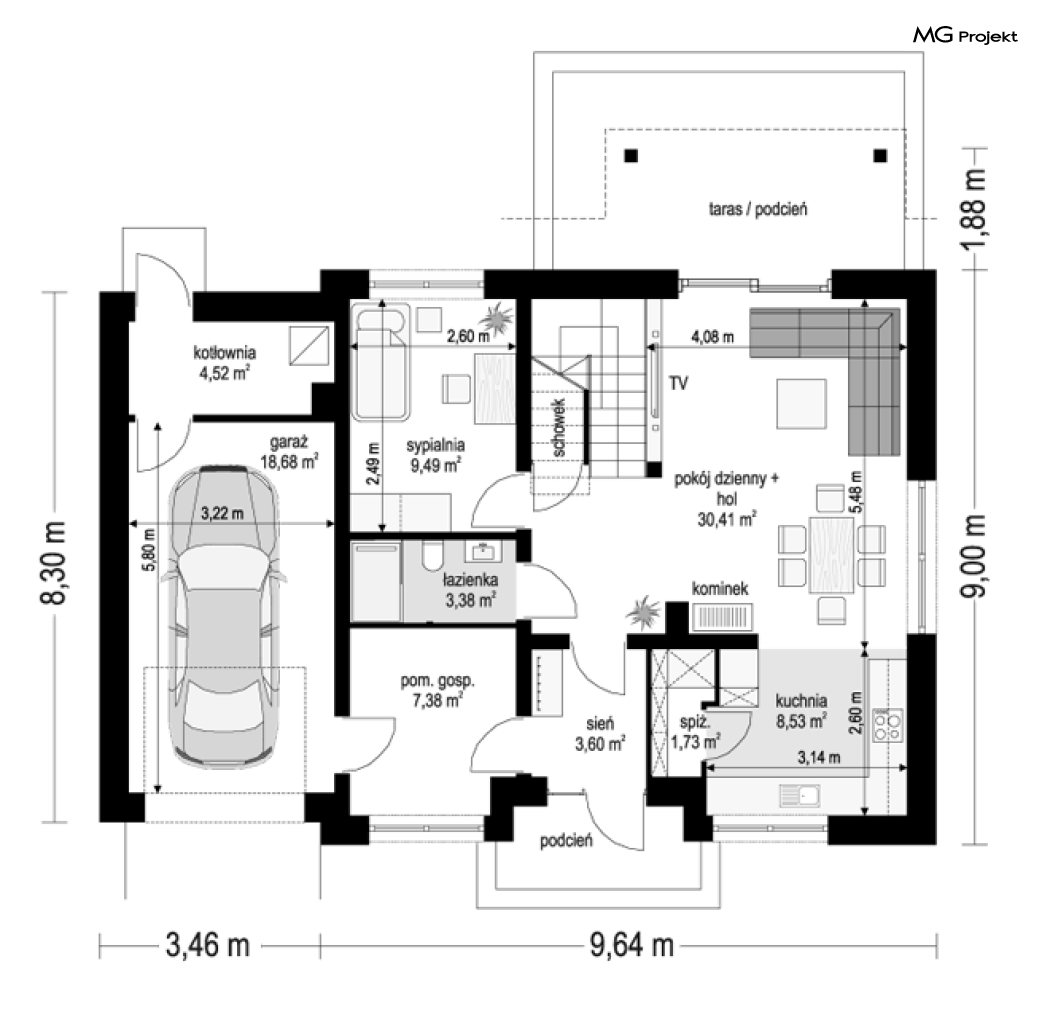
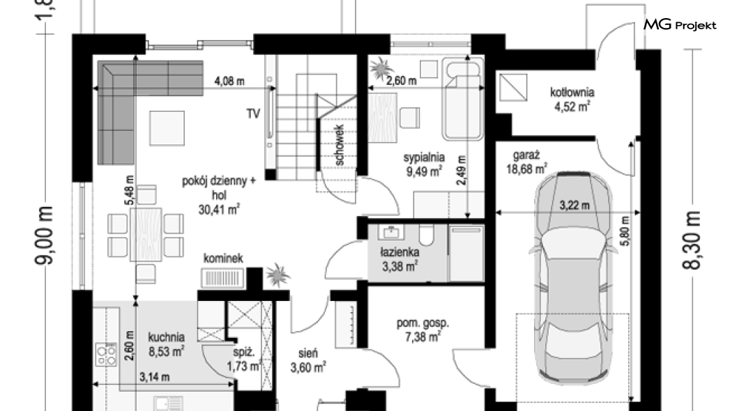
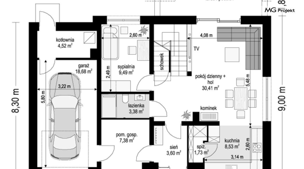
Wnętrze parteru projektu Narcyz 4 to 40-metrowa połączona przestrzeń salonu, holu i kuchni, reprezentacyjne schody na poddasze, dodatkowy pokój (gabinet lub sypialnia), łazienka z natryskiem, pomieszczenia gospodarcze, oraz garaż i kotłownia. Lokalizacja kotłowni w domu Narcyz 4 pozwala na instalację zarówno kotła gazowego lub pompy ciepła, jak i kotła na paliwo stałe. W projekcie dużo miejsca przeznaczono na przestrzeń gospodarczą, oraz na miejsca do przechowywania: przy przedsionku mamy duże pomieszczenie gospodarcze, natomiast przy kuchni projekt domu Narcyz 4 przewidziano spiżarnię. Na poddaszu domu Narcyz 4, mimo skosów, zmieściły się bardzo wygodne trzy pokoje. Sypialnia rodziców w domu Narcyz 4 ma własną sporą garderobę i oddzielną własną łazienkę. Sypialnie dzieci mają duże ściany z szafami wbudowanymi. Poddasze projektu Narcyz 4 można powiększyć podnosząc nieco ściany kolankowe – wedle decyzji Inwestora.
Projekt Narcyz 4 ma zwartą prostą bryłę, budynek nie jest trudny w budowie, a nowoczesne rozwiązania instalacyjne i bardzo dobre izolacje sprawiają, że jest budynkiem energooszczędnym i tanim w utrzymaniu. Koszt budowy domu Narcyz 4 to 189445 zł według naszych kosztorysantów za stan surowy zamknięty.
Gotowy projekt domku jednorodzinnego Narcyz 4 to idealna propozycja dla Inwestorów, którzy nie chcą ryzykować, chcą postawić na sprawdzoną od wielu lat architekturę, bez udziwnień i potencjalnych kłopotów, tak aby mieć kontrolę nad procesem budowy, a przede wszystkim nad kosztami budowy. Przede wszystkim jednak projekt domku Narcyz 4 to po prostu śliczny zgrabny dom jednorodzinny, który doskonale wpasuje się w każde otoczenie.
W ofercie biura projektów MGProjekt dostepny jest także projekt domu w odbiciu lustrzanym oraz wersje wariantowe: projekt domu Narcyz, projekt domu Narcyz 2, projekt domu Narcyz 3.
-
Projekt szamba szczelnego0 zł399 zł
-
Charakterystyka energetyczna0 zł200 zł
-
Pakiet energooszczędny0 zł150 zł
-
Dziennik budowy0 zł60 zł
-
Tablica budowy0 zł120 zł
-
Wersja elektroniczna projektu550 zł
-
Pakiet kosztorys inwestorski550 zł
-
Pakiet ogrzewanie podłogowe470 zł
-
Powietrzna pompa ciepła470 zł
-
Pakiet wentylacja mechaniczna i kominek DGP470 zł
-
Dodatkowy egzemplarz projektu500 zł
-
Pakiet kotłownia na paliwo stałe470 zł
-
Pakiet instalacja fotowoltaiczna470 zł
-
Pakiet klimatyzacja w domu470 zł
-
Pakiet gruntowa pompa ciepła470 zł
-
Pakiet odkurzacz centralny470 zł
-
Pakiet płaszcz wodny470 zł
-
Pakiet kominek DGP399 zł
-
Projekty altan i grillów ogrodowych650 zł
-
Pakiet instalacja solarna470 zł

opieką konsultacyjną w trakcie budowy domu