Dom na Szerokiej 2






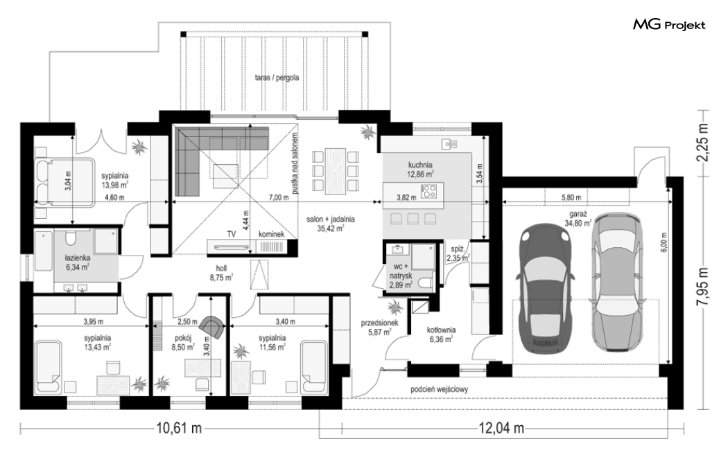
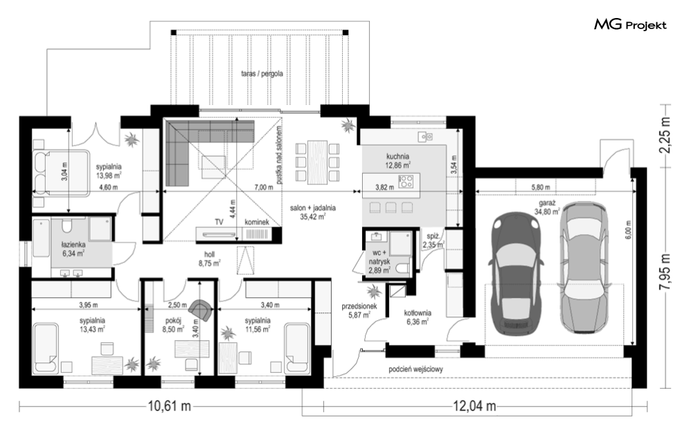
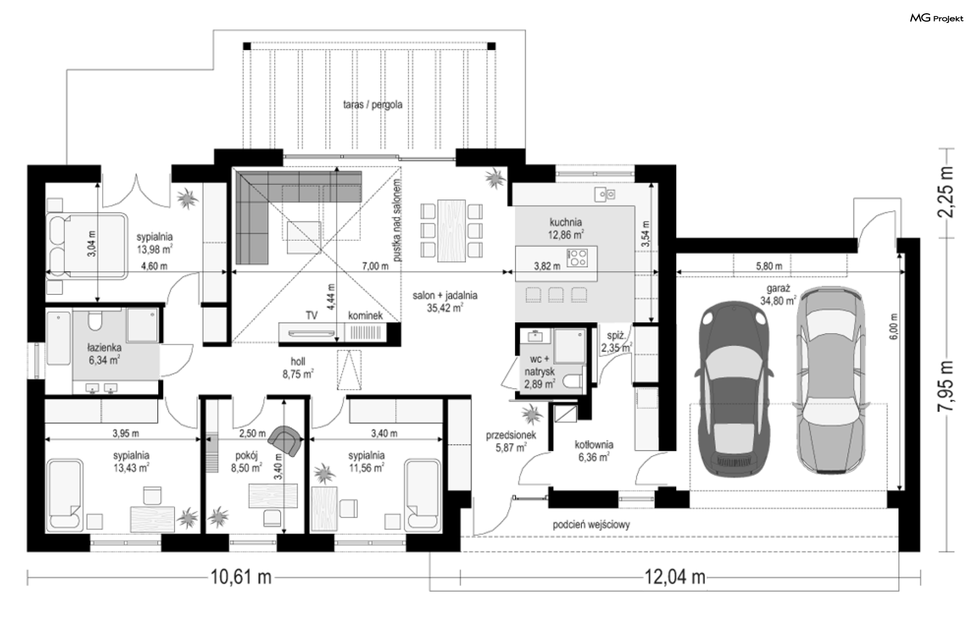
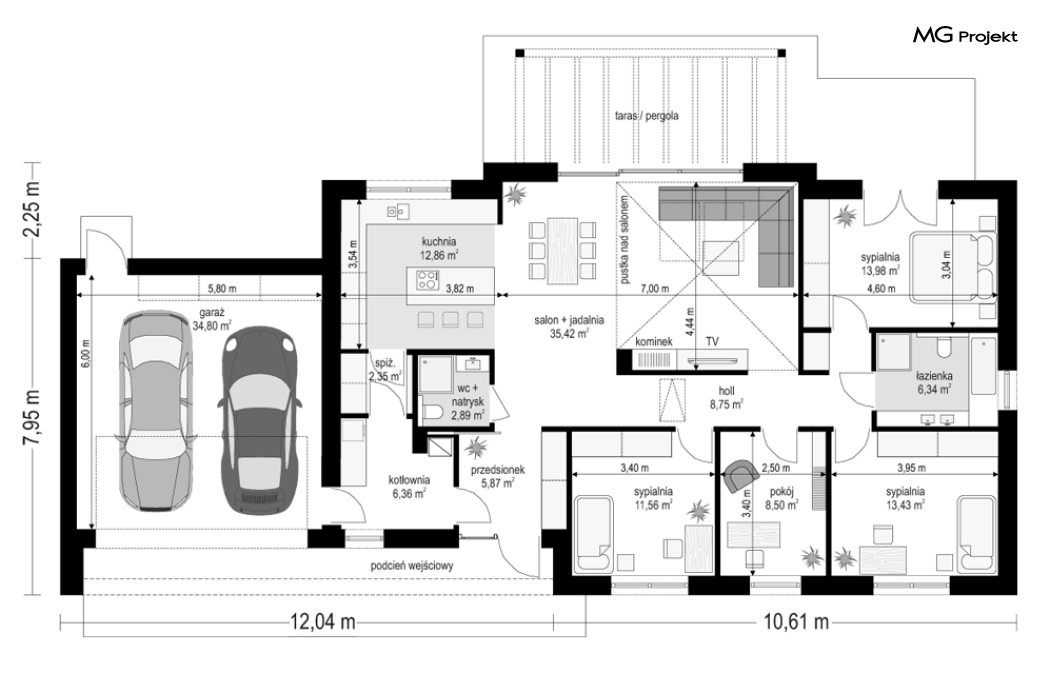
Projekt domu Dom na szerokiej 2 jest to projektu domu jednorodzinnego z serii „Dom na Szerokiej”. Budynek ma parterową bryłę, zbudowaną na planie prostokąta, przykrytą dwuspadowym symetrycznym dachem, o szerokiej – zgodnie z nazwą – elewacji frontowej. Dom przeznaczony jest na płytką działkę, z małą głębokością między drogą a tyłem parceli, lub na działkę z ogrodem z boku domu ( wówczas sytuowany jest bokiem do drogi dojazdowej ). Dom zaprojektowano dla Inwestorów planujących budowę domu parterowego, o maksymalnie szerokim otwarciu części dziennej na taras i ogród, budynku o prostej bryle i rzucie. To typowy parterowy dom w stylu bungalow. Architektura budynku jest powściągliwa i stonowana - łączy w sobie nowoczesne detale i materiały, z tradycyjną sylwetką. Szerokie reprezentacyjne wejście do domu z pięknymi drzwiami wejściowymi z naświetlem, elewacja podzielona ma poziome pasy okien z kontrastującymi wypełnieniami ścian,oraz duży podcień nad wejściem i wjazdem do garażu współtworzą atrakcyjny front domu. Od strony ogrodu zaprojektowano duże przesuwne drzwi z salonu na taras – ogromne przeszklenie powiększające pokój dzienny o ogród, oraz wygodną pergolę nad tarasem, która może być wykończona panelami ze szkła kanalikowego. Detale wykończeniowe domu, materiały i kolory dobrano tak, aby stanowiły harmonijną całość. Wnętrze zaprojektowano dzieląc je na trzy części : część dzienną – z salonem, nocną z sypialniami i gospodarczą – z garażem i kotłownią. Do domu wchodzimy szerokimi drzwiami do obszernego przedsionka z szafami, albo z garażu - do przedsionka lub - przez spiżarnię – bezpośrednio do kuchni. Pokój dzienny połączony z jadalnią, kuchnią i holem stanowią komfortową przestrzeń dla domowników. Otwarcie przestrzenne nad częścią salonu podnoszące wysokość salonu aż do dachu daje dodatkowo wrażenie większej przestrzeni. Cały salon tonie w świetle - dzięki wielkim przesuwnym drzwiom na taras, oraz dodatkowym oknom połaciowymi w suficie. Kuchnia z wyspą, jadalnia i salon zorganizowane są wokół centralnej ściany kominkowo – telewizyjnej oddzielającej salon od korytarza prowadzącego do sypialni. W części nocnej mamy cztery pokoje – trzy sypialnie oraz dodatkowy pokój ( gabinet lub zapasową sypialnię ). Z sypialni rodziców zaprojektowano urokliwe wyjście na taras. Całość domu zamykają bardzo wygodny dwustanowiskowy garaż, oraz strych nad parterem, który można wykorzystać na domowy magazyn - graciarnię, dostępny z parteru za pomocą schodków drabinkowych. Konstrukcja domu jest bardzo prosta : ściany parteru do wysokości wieńca + konstrukcja stropu nad parterem i więźby dachowej w postaci układu prefabrykowanych wiązarów drewnianych. Takie rozwiązanie znacznie przyspiesza budowę, upraszcza ją i obniża koszt realizacji domu. W projekcie zastosowano bardzo dobre izolacje, nowoczesne materiały i instalacje, dzięki czemu budynek będzie tani w późniejszej eksploatacji. Dom na Szerokiej 2 to doskonała propozycja dla Inwestorów chcących budować solidny, komfortowy parterowy dom swoich marzeń. Zapraszamy !
-
Projekt szamba szczelnego0 zł399 zł
-
Charakterystyka energetyczna0 zł200 zł
-
Pakiet energooszczędny0 zł150 zł
-
Dziennik budowy0 zł60 zł
-
Tablica budowy0 zł120 zł
-
Wersja elektroniczna projektu550 zł
-
Pakiet kosztorys inwestorski550 zł
-
Pakiet ogrzewanie podłogowe470 zł
-
Powietrzna pompa ciepła470 zł
-
Pakiet wentylacja mechaniczna i kominek DGP470 zł
-
Dodatkowy egzemplarz projektu500 zł
-
Pakiet kotłownia na paliwo stałe470 zł
-
Pakiet instalacja fotowoltaiczna470 zł
-
Pakiet klimatyzacja w domu470 zł
-
Pakiet gruntowa pompa ciepła470 zł
-
Pakiet odkurzacz centralny470 zł
-
Pakiet płaszcz wodny470 zł
-
Pakiet kominek DGP399 zł
-
Projekty altan i grillów ogrodowych650 zł
-
Pakiet instalacja solarna470 zł

opieką konsultacyjną w trakcie budowy domu