Hiacynt 6







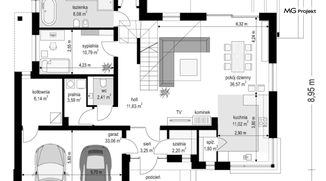
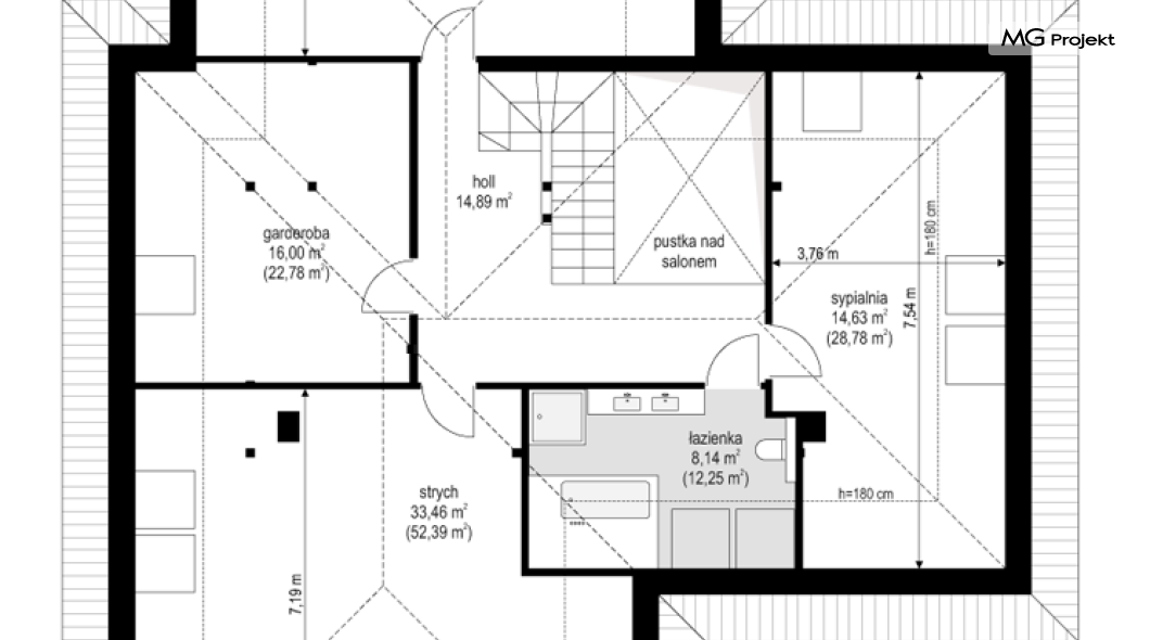
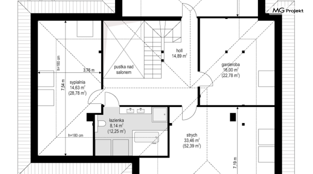
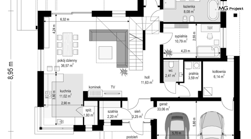
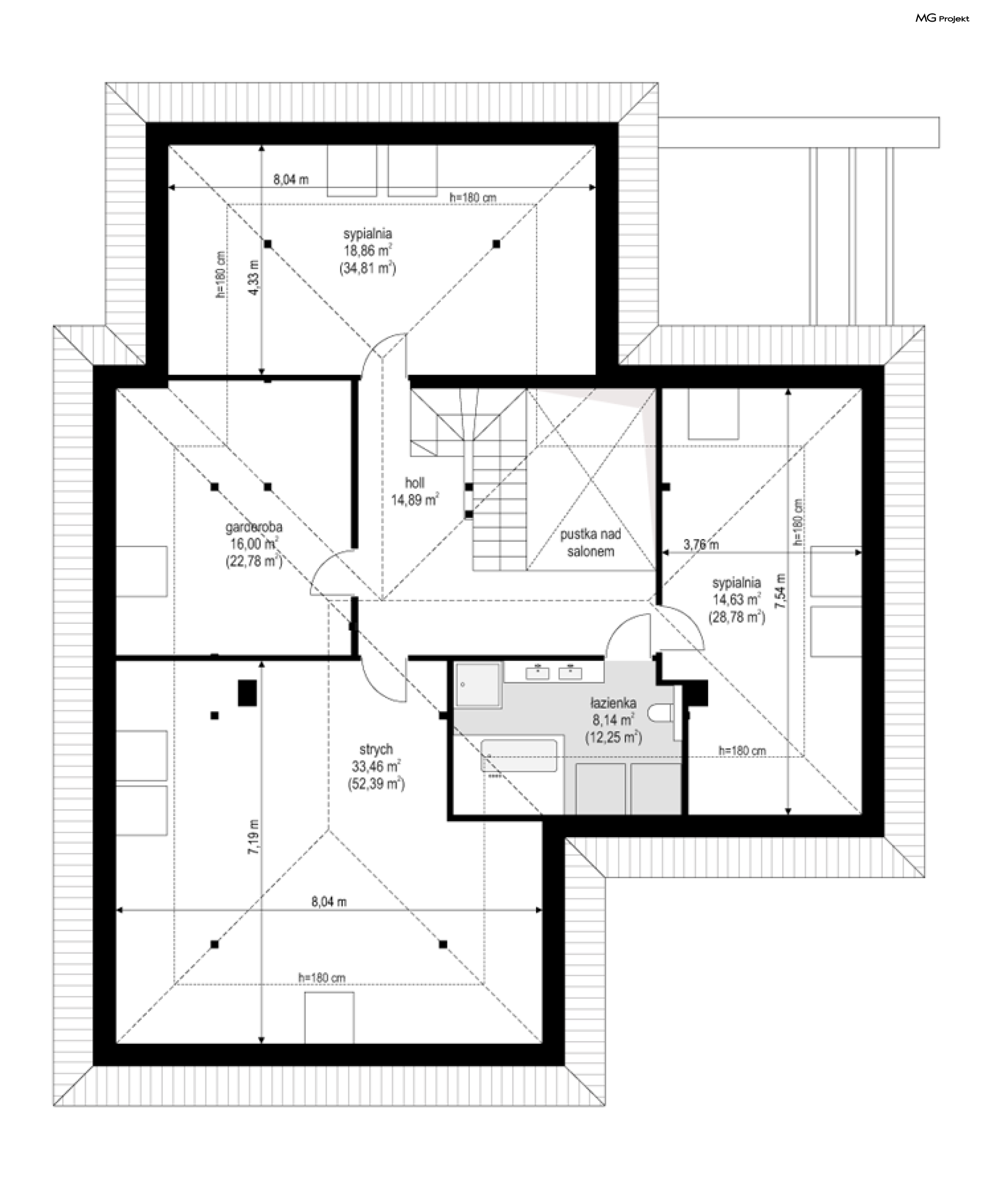
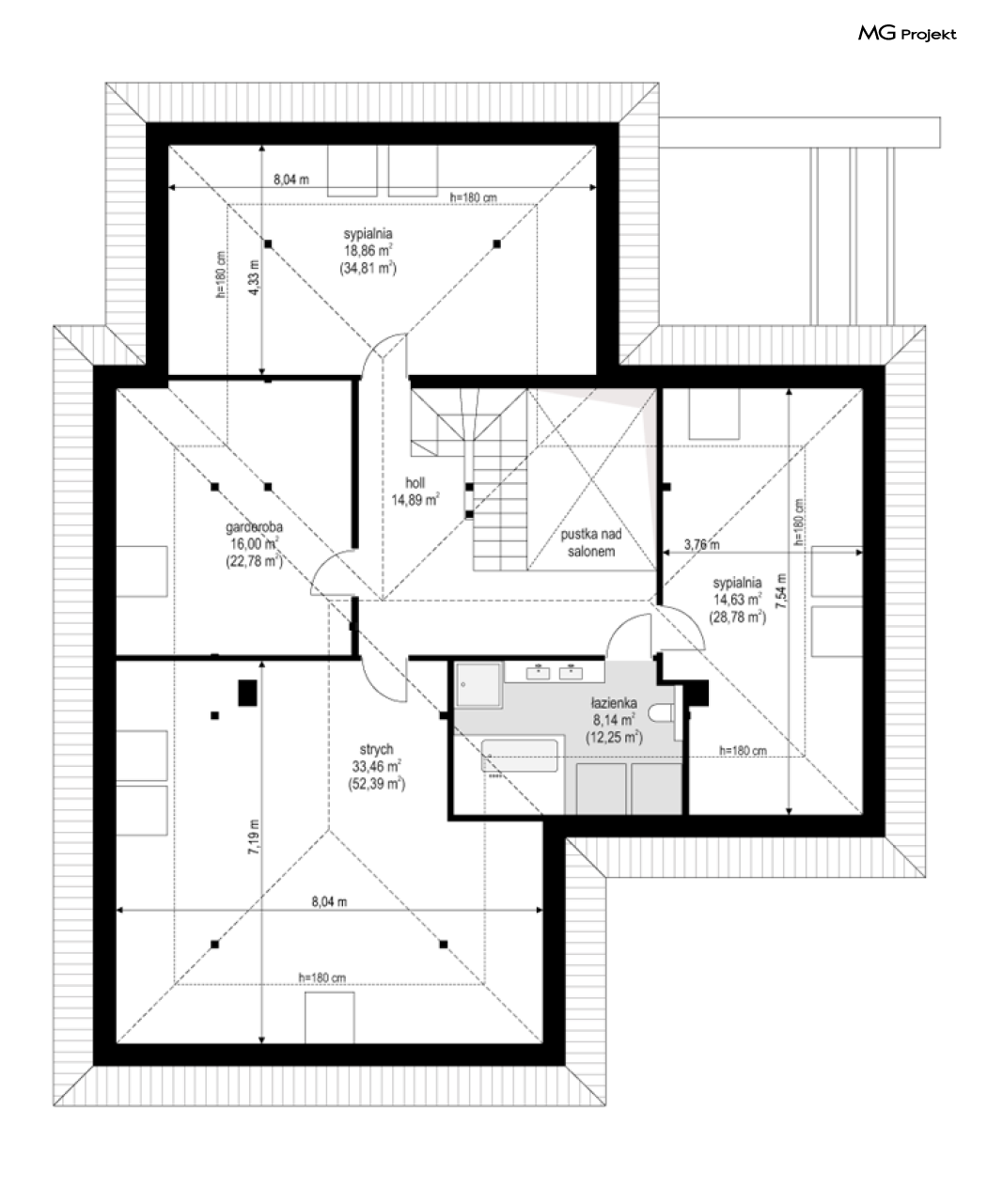
Projekt domu Hiacynt 6 jest wersją wariantową projektu z popularnej serii „Hiacyntów”. Dom został zmodyfikowany w stosunku do wersji bazowej w następujący sposób : zmniejszona została powierzchnia zabudowy i powierzchnia użytkowa, całość rzutu przykryta jest spadzistym dachem - bez płaskiego dachu nad garażem, połacie dachów i ścianki kolankowe zostały uniesione. W rezultacie mamy zupełnie nową odsłonę Hiacynta. Budynek zaprojektowano jako parterowy z użytkowym poddaszem, przykryty wielospadowym symetrycznym dachem. Bryła uformowana jest w kształcie litery „ T”, z wystającym od frontu garażem z podcieniem wejściowym, oraz wychodzącą w stronę ogrodu częścią sypialnianą, formującą z tyłu domu przytulny narożnik tarasu. Architektura domu łączy w sobie nowoczesną bryłę i detale, z tradycyjną kolorystyką czerwonego dachu. To udane połączenie klasyki z nowoczesnością. Elewacje zdobią piękne przeszklenia okien, oraz kontrastujące okładziny ścian z betonu architektonicznego i drewna. Dom mimo swojej niedużej powierzchni, sprawia wrażenie reprezentacyjnej solidnej willi. Wnętrze budynku zaprojektowano dzieląc je na przestrzeń dzienną parteru z salonem, pokoje sypialne na parterze i na poddaszu, oraz część gospodarczo -garażową przy wejściu do domu. Z przedsionka z szatnią przechodzimy do holu połączonego z salonem i kuchnią. Pokój dzienny z zestawem wypoczynkowym naprzeciwko ściany telewizyjno-kominkowej i wygodnym stołem jadalnym tworzy wspólną przestrzeń wraz z kuchnią, holem z i wyjściem szerokimi drzwiami balkonowymi na taras. Nad salonem zaprojektowano pustkę z antresolą na poddaszu. Za ścianą biegu schodowego umieszczono na parterze sypialnię rodziców z garderobami i łazienką, oaz dodatkowy pokój - gabinet lub sypialnię. Na poddaszu udało się zmieścić trzy pokoje sypialne z łazienką, oraz dodatkowo dużą przestrzeń strychową nad garażem,którą również można zaadaptować na dodatkowy pokój. Hiacynt 6 do budynek energooszczędny, z bardzo dobrymi izolacjami i nowoczesnymi instalacjami - dom będzie niedrogi w późniejszej eksploatacji. To doskonały projekt dla Inwestorów szukających udanego projektu nowoczesnego domu z poddaszem użytkowym. Zapraszamy do zapoznania się z innymi projektami: projekt domu Hiacynt, projekt domu Hiacynt 2, projekt domu Hiacynt 3, projekt domu Hiacynt 4, projekt domu Hiacynt 5, projekt domu Hiacynt 7, projekt domu Hiacynt 7 B, projekt domu Hiacynt 8. Projekty dostępne są w odbiciu lustrzanym.
