Dom na Przytulnej 3







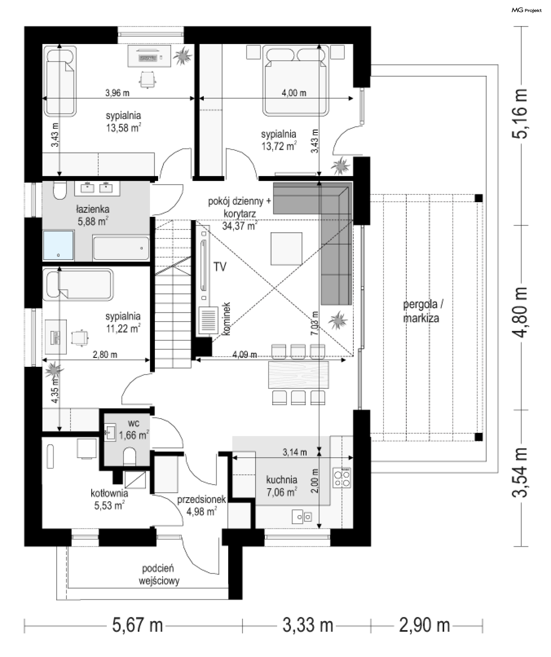
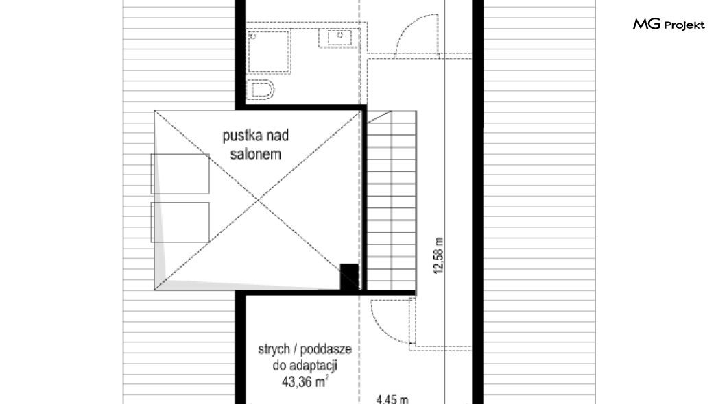
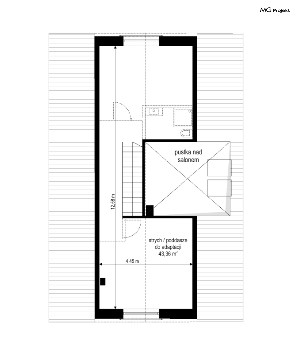
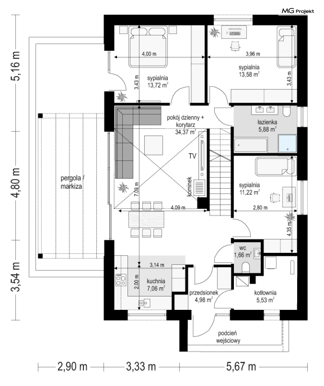
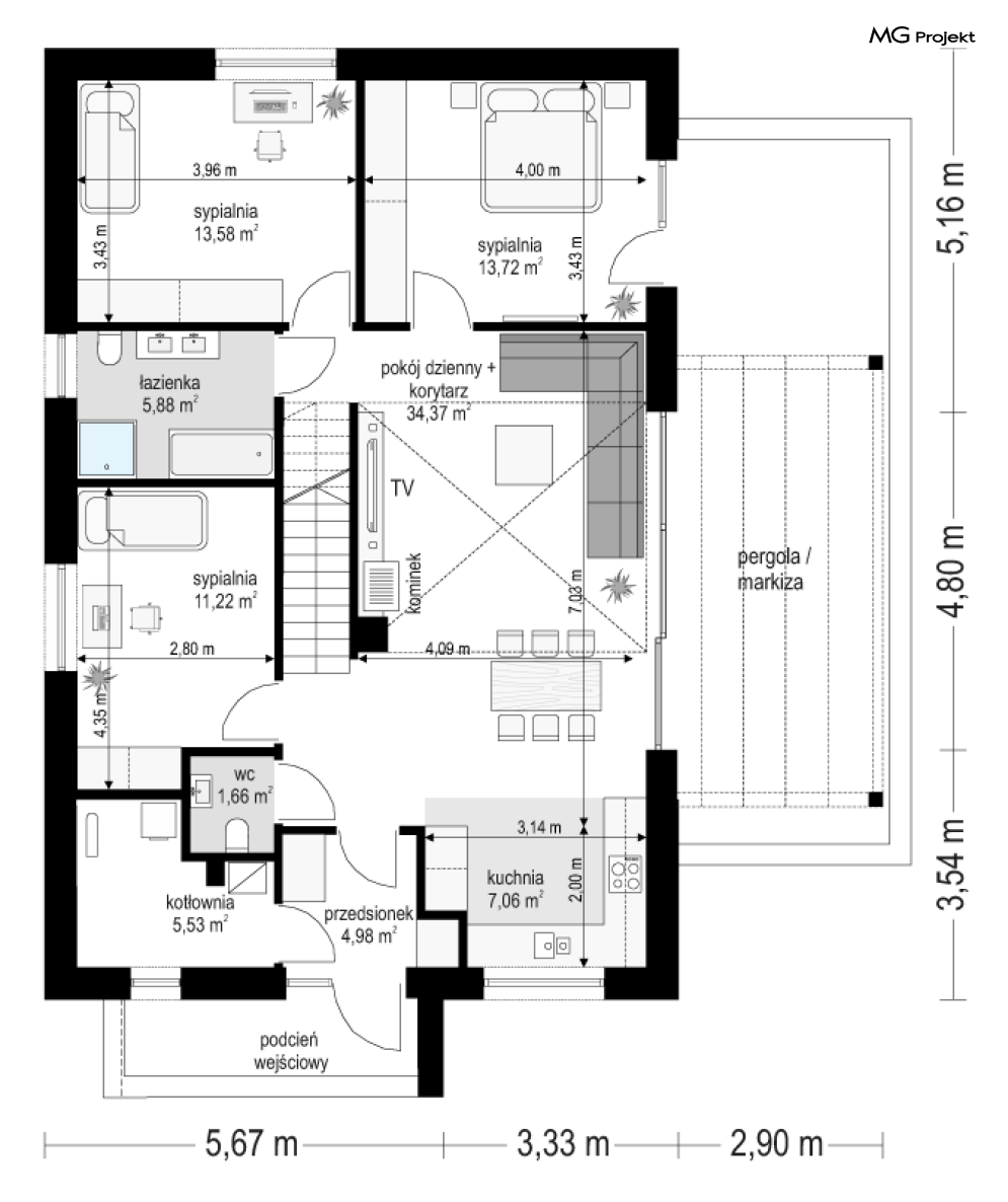
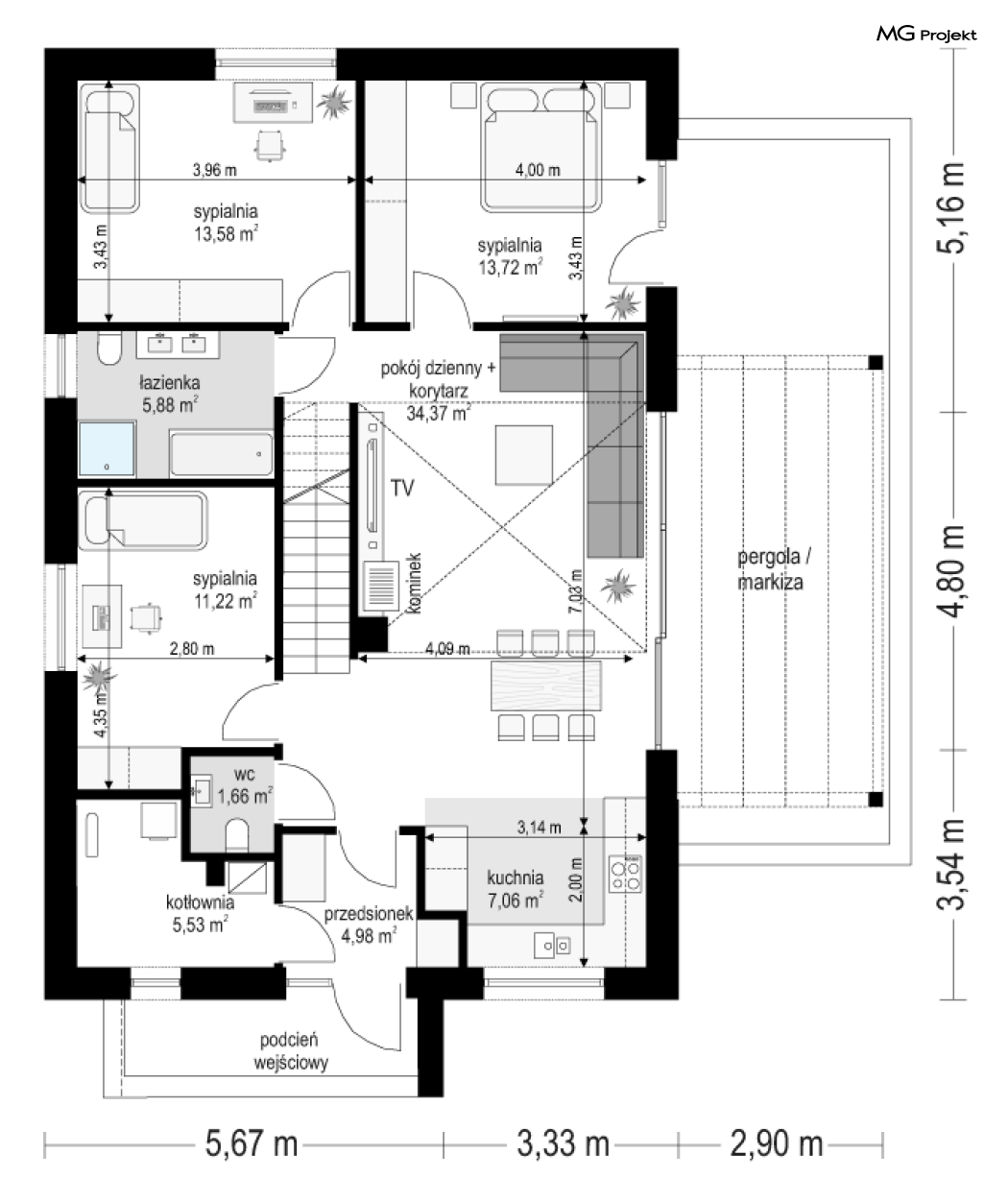
Projekt domu Dom na Przytulnej 3 to nasza następna propozycja niewielkiego projektu z serii „przytulnych” - tym razem jest to budynek z poddaszem użytkowym, zaprojektowany na takim samym rzucie jak inne warianty parterowe z serii, ale z dodatkowym poddaszem użytkowym - dzięki podniesieniu nieco w górę połaci dachu. Dom dla 4-6 osobowej rodziny, na prostokątnym planie, przykryty dwuspadowym dachem krytym blachę na rąbek, w modnej stylistyce domu -stodoły, z uciętymi okapami. Podstawowy program użytkowy mieści się na kondygnacji parteru i zawiera przestrzeń dzienną z salonem, oraz trzy pokoje sypialne. Dodatkowo nad parterem mamy przestrzeń strychową do adaptacji na poddasze użytkowe, w której swobodnie zmieszczą się ekstra dwa pokoje oraz łazienka. Podsumowując, w tym niewielkim domu jednorodzinnym mamy do dyspozycji potencjalnie aż 6 pokoi. Daje to ogromne możliwości aranżowania wnętrza. Może tutaj zamieszkać wieloosobowa rodzina z trójką lub czwórką dzieci. Może to być również dom trzypokoleniowy z sypialnią dla seniorów. Dom można też zaaranżować urządzając miejsce pracy dla gospodarzy – biuro czy gabinet, umieszczając sypialnie dziecięce na poddaszu i wykorzystując 1 lub dwa pokoje na parterze na biznes. Możliwości aranżacji wnętrza jest tutaj mnóstwo. Głównym założeniem projektu jest funkcjonalność budynku i wyciśnięcie maksimum powierzchni i użyteczności z tej niewielkiej bryły. Architektura domu jest nowoczesna, z atrakcyjną kolorystyką i zastosowanymi nowoczesnymi materiałami. Oszczędny detal, brak zbędnych ozdób i udziwnień, daje w efekcie prosty i elegancji wygląd zewnętrzny. Elewacja frontowa to przede wszystkim wejście z zadaszeniem, z drzwiami z bocznym naświetlem i okładziną nawiązującą do podziałów na skrzydle drzwi. Od strony elewacji ogrodowej dominują szerokie drzwi balkonowe łączące salon z tarasem, oraz konstrukcja pergoli z odsuwaną markizą – zadaszeniem ( tarasolą). Wnętrze domu to przede wszystkim otwarty salon, z dodatkową atrakcją - otwartym sufitem aż do dachu nad dużą częścią salonu. Pustka nad salonem powiększa i dodaje atrakcyjności pokojowi dziennemu. W salonie mamy szeroką ścianę telewizyjno – kominkową, zestaw mebli wypoczynkowych i jadalnię z wygodnym stołem, oraz szerokie otwarcie balkonowe na taras i otaczający dom ogród. Na parterze znajdują się też trzy pokoje, łazienka, wc, pomieszczenie gospodarcze dostępne z przedsionka wejściowego, oraz schody na strych/poddasze, z praktycznym schowkiem. Na górnej kondygnacji z powodzeniem zmieszczą się dwa wygodne pokoje oraz łazienka. „Dom na Przytulnej 3” ma bardzo prostą i tanią w budowie konstrukcję. Bryła zamknięta została czterema ścianami zewnętrznymi i dwuspadowym dachem z wiązarów ramowo-kratowych, co stanowi najbardziej ekonomiczne rozwiązanie dla tego typu domków. Budynek jest energooszczędny, bardzo dobrze ocieplony i wyposażony w nowoczesne instalacje, dzięki czemu będzie tani w utrzymaniu. Dom będzie się budować łatwo i szybko, a późniejsza jego eksploatacja i serwisowanie będą bezproblemowe. „Dom na Przytulnej 3 ” to propozycja niedrogiego domu, dla Inwestorów mających ograniczony budżet i niewiele czasu na budowanie. Chcących zamieszkać szybko, komfortowo i swobodnie w swoim upragnionym domku.
