Tytan 6 B







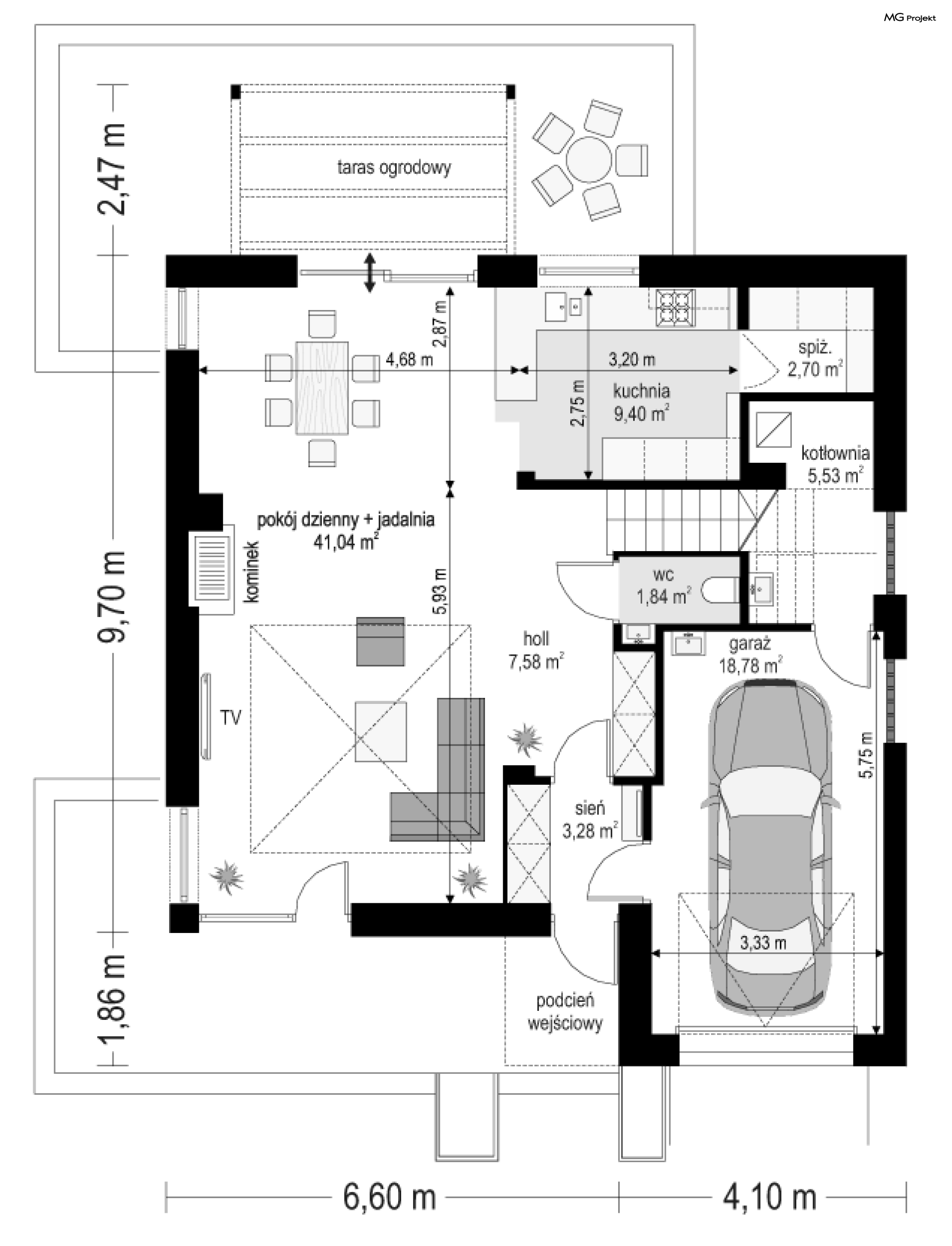
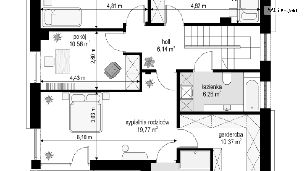
Projekt domu Tytan 6 B jest nową wersją wariantową z popularnej serii domów o tej nazwie. Jest to piętrowy dom dla 4-5 osobowej rodziny, zbudowany na planie kwadratu, przykryty czterospadowym dachem o kącie 25 stopni, z wbudowanym w bryłę jednostanowiskowym garażem. Architektura domu jest nowoczesna i oszczędna w wyrazie. Fragmenty elewacji w kontrastujących kolorach, duże przeszklenia okien, poziome podziały elewacji, kolorystyka utrzymana w bieli, odcieniach szarości szarości i graficie, dają w połączeniu efekt reprezentacyjnej dynamicznej nowoczesnej miejskiej mini-willi.Front domu zdobią duże narożne przeszklenia i drzwi wejściowe w wyciętym narożniku, będącym zadaszeniem podestu wejściowego. Elewację ogrodową zdobi duże przedszkolne otwarcie z salonu na taras i zadaszenie w formie pergoli, która może być zamknięta szklanym daszkiem. Tytan 6B ma zwartą bryłę, o niewielkiej szerokości i niedużej powierzani zabudowy. Zmieści się nawet na małej i wąskiej działce. Salon z jadalnią zaprojektowano z oknami wychodzącymi na trzy strony, dzięki czemu wnętrze jest doskonale doświetlone, a dom bardzo dobrze wpisze się w działkę nawet z wjazdem od południa. Wnętrze domu podzielono na przestrzeń dzienną na dole i pokoje sypialnie na piętrze. Na parterze mamy niemal pięćdziesięciometrową przestrzeń salonu i holu, połączoną z półotwartą kuchnią ze spiżarnią, oraz część techniczną - garażu i kotłowni. Na piętrze mieszczą się cztery pokoje i dwie łazienki, w tym oddzielny apartament rodziców z własną łazienką i dużą wygodną garderobą. Konstrukcja Tytana 6B jest bardzo prosta i łatwa w budowie. W budynku zastosowano nowoczesne energooszczędne materiały i instalacje, które utrzymają koszty użytkowania domu na niskim poziomie. Tytan 6B to bardzo dobra propozycja dla Inwestorów planujących budowę niewielkiego praktycznego piętrowego domu jednorodzinnego, o nowoczesnej stylistyce i rozsądnej skali. W łatwy sposób można go przystosować do standardu NF40. Zapraszamy do zapoznania się z pełną ofertą pracowni MG Projekt: projekt domu Tytan, projekt domu Tytan 2, projekt domu Tytan 2B, projekt domu Tytan 3, projekt domu Tytan 4, projekt domu Tytan 5, projekt domu Tytan 6. Projekty są również dostępne w odbiciu lustrzanym.
