Willa Floryda 6







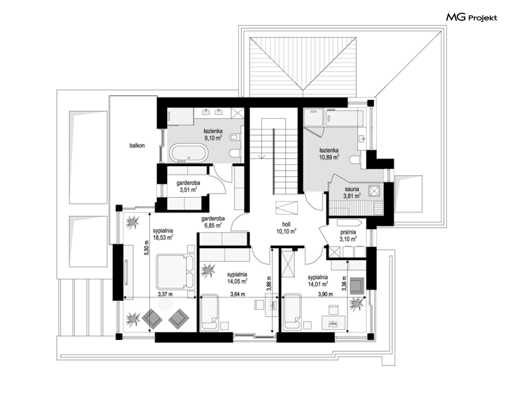
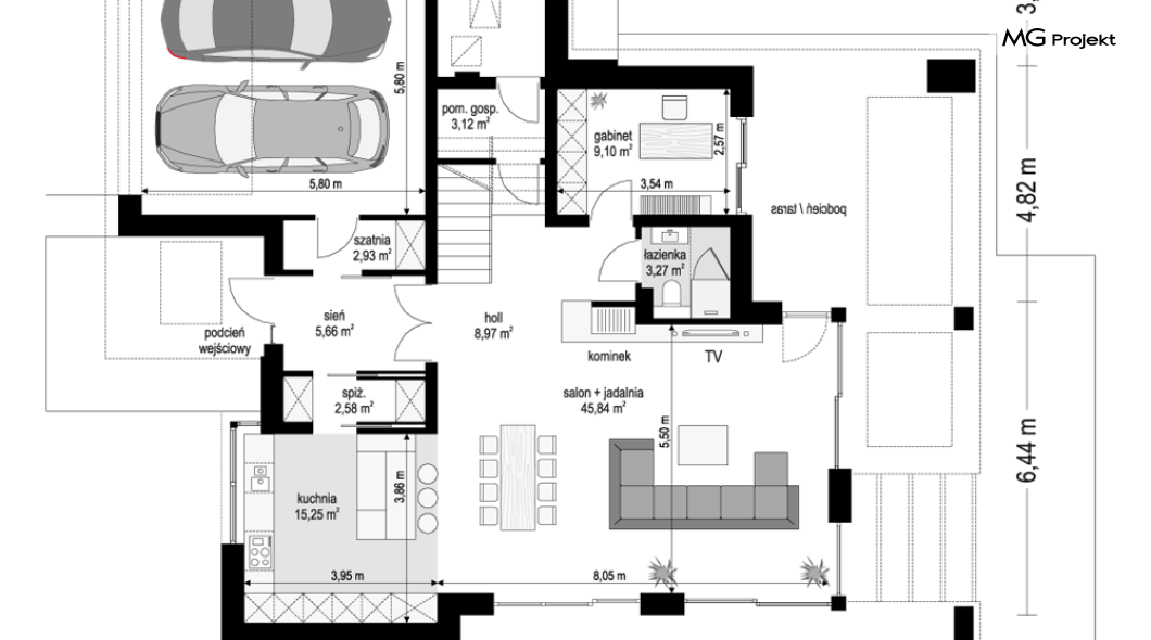
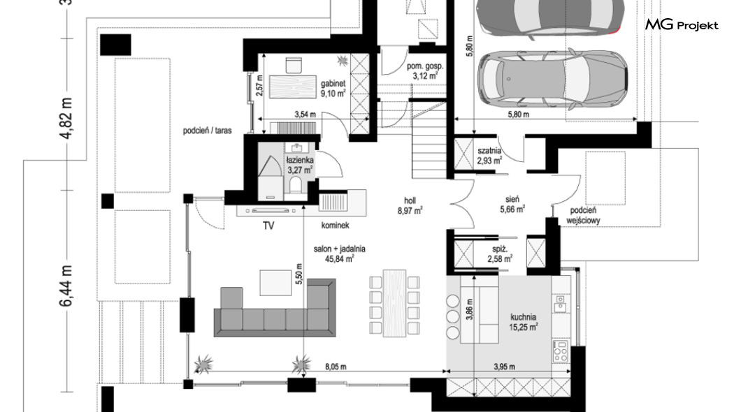
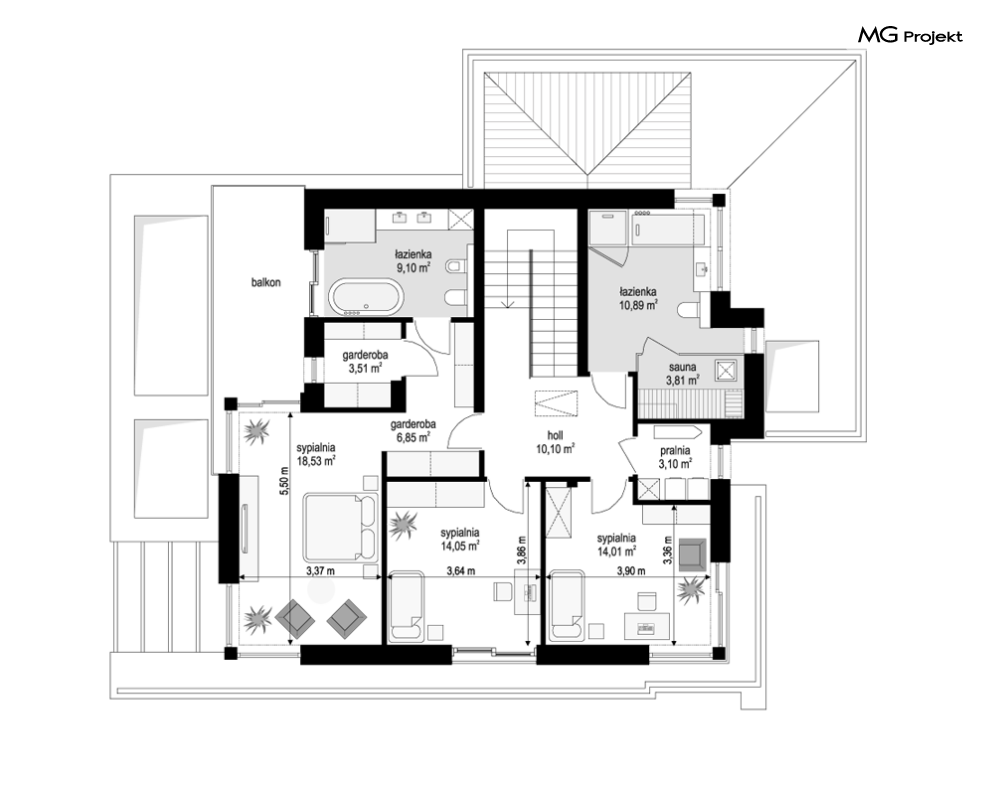
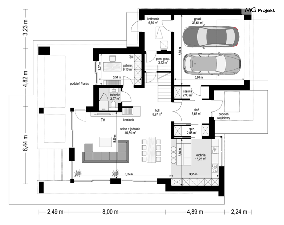
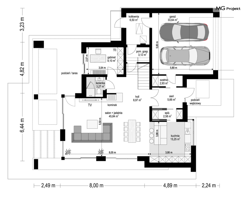
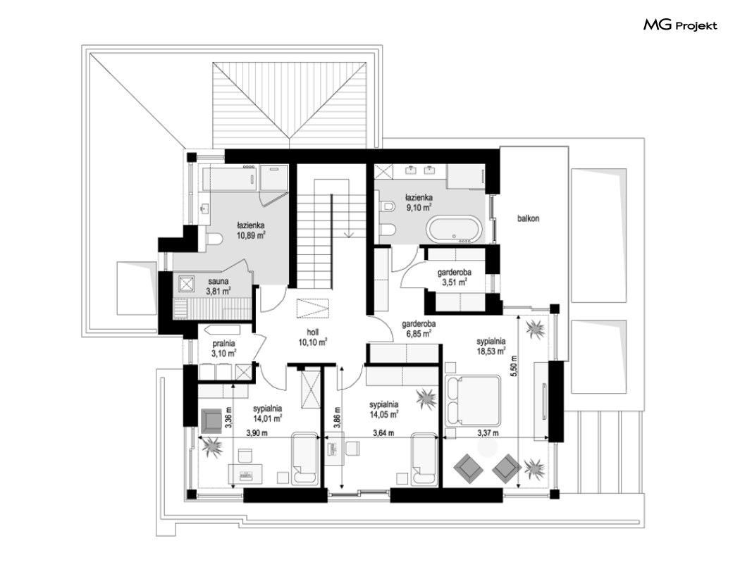
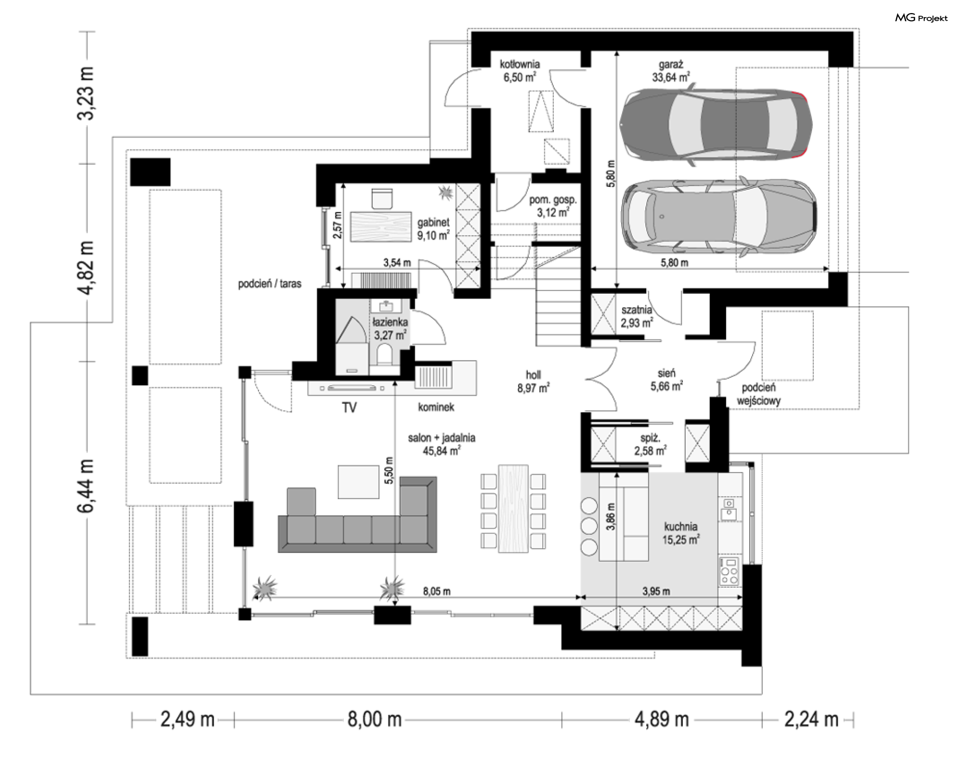
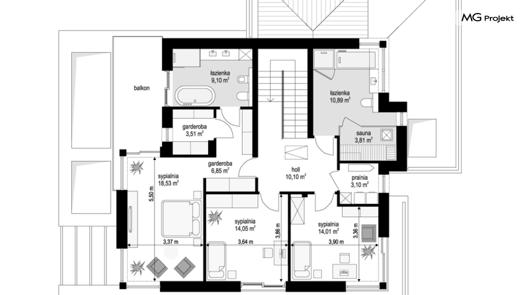
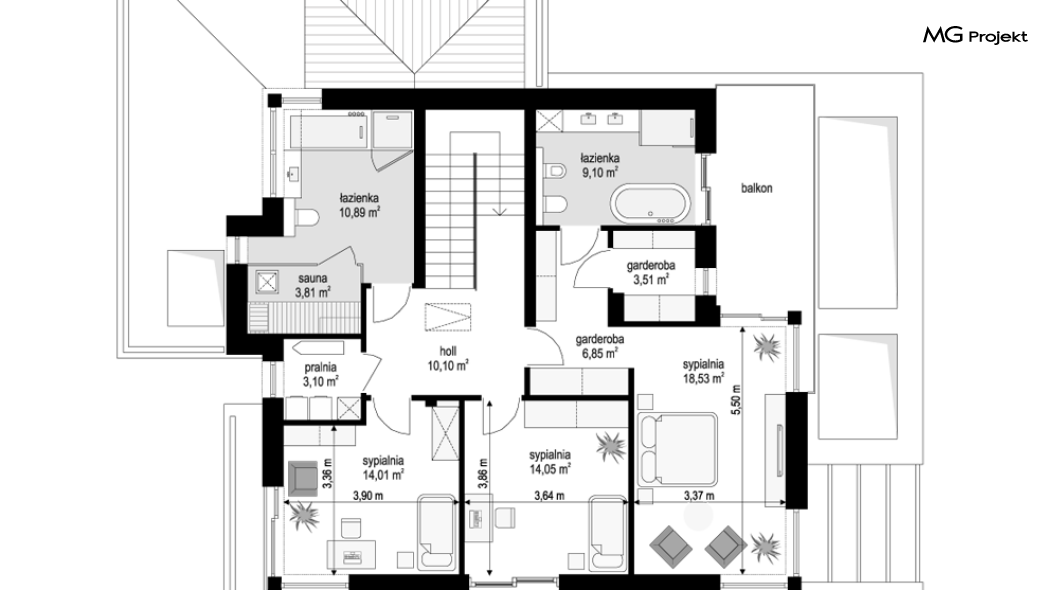
Projekt domu Willa Floryda 6 to kolejny wariant projektu domu jednorodzinnego z serii „Willa Floryda”, będący odpowiedzią na pytania wielu Inwestorów o wersję o mniejszej powierzchni użytkowej. Dom jest nowoczesną miejską willą, o jednopiętrowej bryle, przykrytą wielospadowym dachem z szerokim gzymsowaniem, z dobudowanymi parterowymi częściami garażu i zadaszeniem nad tarasem. Nowoczesną stylistykę budynku podkreślają poziome podziały elewacji w kontrastujących kolorach, duże okna z narożnymi przeszkleniami, belki wokół głównego rdzenia bryły i dominujący nad wejściem wykusz piętra. Architektura domu jest nietuzinkowa, nowoczesna i bardzo efektowna. Willa mimo nieprzesadzonej wielkości prezentuje się jak prawdziwa mini-rezydencja. Budynek na pewno zrobi wrażenie i długo będzie się wyróżniał swoim stylem wśród sąsiedniej zabudowy. Do wnętrza wchodzimy przez ładny podcień i podest wprost do obszernego przedsionka z szatnią, a następnie do części dziennej połączonego salonu, holu i jadalni. Częściowo oddzielona kuchnia z pięknym narożnym oknem z widokiem na front dopełnia wnętrze dzienne. Przeszklenia salonu pozwalają na usytuowanie budynku na działce zarówno z ogrodem z tyłu jak i z boku domu. Z salonu wychodzimy na duży taras, częściowo zadaszony podcieniem i pergolą. Na parterze mamy do dyspozycji jeszcze dodatkowy pokój – gabinet, oraz cześć gospodarczą z kotłownią i garażem. Na piętro dostajemy się wygodnymi schodami i mamy tam przewidziane dwie sypialnie dziecięce, z dużą łazienką i pralnią, oraz apartament rodziców z własną łazienką i garderobą. Pomieszczenia można dowolnie kształtować i zmieniać ustawienie ścianek działowych, dzięki zastosowaniu monolitycznych stropów żelbetowych. Willa Floryda 6 jest wygodnym komfortowym domem dla 4-5 osobowej rodziny. W budynku zastosowano nowoczesne materiały i rozwiązania technologiczne. Dzięki energooszczędnym instalacjom i dobrym izolacjom budynek będzie niedrogi w utrzymaniu i eksploatacji. Konstrukcja domu nie jest wbrew pozorom bardzo skomplikowana ( główną trudnością są tutaj dwa stropy żelbetowe ). Willa Floryda 6 to propozycja dla osób preferujących nowoczesną architekturę, poszukujących oryginalnego projektu, jednocześnie domu o nieprzesadzonej skali i powierzchni. Istnieje możliwość dostosowania projektu do standardu NF40. Zapraszamy !
Zapraszamy do zapoznania się z pełną ofertą pracowni: Willa Floryda 2, Willa Floryda, Willa Floryda 3, Willa Floryda 4, Willa Floryda 5, Rezydencja Floryda, Rezydencja Floryda 2.
-
Projekt szamba szczelnego0 zł399 zł
-
Charakterystyka energetyczna0 zł200 zł
-
Pakiet energooszczędny0 zł150 zł
-
Dziennik budowy0 zł60 zł
-
Tablica budowy0 zł120 zł
-
Wersja elektroniczna projektu550 zł
-
Pakiet kosztorys inwestorski550 zł
-
Pakiet ogrzewanie podłogowe470 zł
-
Powietrzna pompa ciepła470 zł
-
Pakiet wentylacja mechaniczna i kominek DGP470 zł
-
Dodatkowy egzemplarz projektu500 zł
-
Pakiet kotłownia na paliwo stałe470 zł
-
Pakiet instalacja fotowoltaiczna470 zł
-
Pakiet klimatyzacja w domu470 zł
-
Pakiet gruntowa pompa ciepła470 zł
-
Pakiet odkurzacz centralny470 zł
-
Pakiet płaszcz wodny470 zł
-
Pakiet kominek DGP399 zł
-
Projekty altan i grillów ogrodowych650 zł
-
Pakiet instalacja solarna470 zł

opieką konsultacyjną w trakcie budowy domu
