Newcastle (DCP364)
                
                    Dodaj do porównania
                
                
                    Usuń z porównania
                
            
            
        
                
                    Dodaj do ulubionych
                
                
                    Usuń z ulubionych
                
            
            
        
        Pow. użytkowa:
    
    
        131.27m2
    
        Pow. zabudowy:
    
    
        141.07m2
    
        Koszt budowy:
    
    
        651000zł
    
        Liczba pokoi:
    
    
        4
    
        Liczba łazienek:
    
    
        3
    
        Garaż:
    
    
        2
    
        Rzuty
    
        
                                                        
                        
                        Lustrzane odbicie
                    
                    
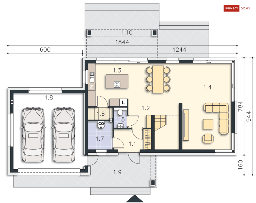
                                    Rzut parteru
                                
                                
                                    151.31 m2
                                
                            
                                            Wiatrołap
                                        
                                        
                                            4.89 m2
                                        
                                    
                                            Hall
                                        
                                        
                                            9.2 m2
                                        
                                    
                                            Kuchnia
                                        
                                        
                                            11.05 m2
                                        
                                    
                                            Pokój dzienny
                                        
                                        
                                            41.36 m2
                                        
                                    
                                            WC
                                        
                                        
                                            1.67 m2
                                        
                                    
                                            Spiżarnia
                                        
                                        
                                            1.9 m2
                                        
                                    
                                            Kotłownia
                                        
                                        
                                            4.49 m2
                                        
                                    
                                            Garaż
                                        
                                        
                                            34.69 m2
                                        
                                    
                                            Podest
                                        
                                        
                                            20.14 m2
                                        
                                    
                                            Taras
                                        
                                        
                                            21.92 m2
                                        
                                    
                            
                            Pobierz rysunki szczegółowe
                        
                        
                            
                            Zapytaj, co możesz zmienić
                        
                    
                        
                        Lustrzane odbicie
                    
                    
                                    Rzut poddasza
                                
                                
                                    61.2 m2
                                
                            
                                            Komunikacja
                                        
                                        
                                            6.14 m2
                                        
                                    
                                            Pokój
                                        
                                        
                                            12.2 m2
                                        
                                    
                                            Garderoba
                                        
                                        
                                            3.63 m2
                                        
                                    
                                            Garderoba
                                        
                                        
                                            3.42 m2
                                        
                                    
                                            Pokój
                                        
                                        
                                            10.21 m2
                                        
                                    
                                            Pokój
                                        
                                        
                                            10.21 m2
                                        
                                    
                                            Łazienka
                                        
                                        
                                            6.34 m2
                                        
                                    
                                            Łazienka
                                        
                                        
                                            3.96 m2
                                        
                                    
                                            Schody
                                        
                                        
                                            5.09 m2
                                        
                                    
                            
                            Pobierz rysunki szczegółowe
                        
                        
                            
                            Zapytaj, co możesz zmienić
                        
                    
                        
                        Lustrzane odbicie
                    
                    
                            
                            Pobierz rysunki szczegółowe
                        
                        
                            
                            Zapytaj, co możesz zmienić
                        
                    
            Zamów rysunki szczegółowe
        
        
            Zapoznaj się ze szczegółowymi rysunkami rzutów kondygnacji w PDF dla tego projektu.
        
        
            ZAMAWIAM
        
    
    
                    Elewacje
                
            
                                Frontowa
                            
                                                            
                                Ogrodowa
                            
                                                            
                                Lewa
                            
                                                            
                                Prawa
                            
                                                            
        Specyfikacja techniczna
    
    
        Główne parametry
    
    
                            Powierzchnia użytkowa
                        
                        
                                                            
                                                                                                                                                                                        131,27 m2
                                
                                                    
                                                    
                                Łączna powierzchnia tzw. pomieszczeń użytkowych. Przede wszystkim nie zalicza się do niej powierzchni garażu, nieużytkowego strychu, piwnicy, kotłowni.
                            
                                            
                            Liczba pokoi
                        
                        
                                                            
                                                                                                                                                                                        4 
                                
                                                    
                                            
                            Liczba łazienek
                        
                        
                                                            
                                                                                                                                                                                        3 
                                
                                                    
                                            
                            Garaż
                        
                        
                                                            
                                                                                                                                                                                        2 
                                
                                                    
                                            
                            Powierzchnia zabudowy
                        
                        
                                                            
                                                                                                                                                                                        141,07 m2
                                
                                                    
                                                    
                                Powierzchnia zajmowana przez budynek na działce. W praktyce tzw. powierzchnia rzutu budynku wyznaczana po obrysie ścian zewnętrznych.
                            
                                            
        Pełna specyfikacja
    
    
                            Maksymalna wysokość budynku
                        
                        
                                                            
                                                                                                                                                                                        8,33 m
                                
                                                    
                                                    
                                Wysokość wyznaczona od poziomu terenu do najwyżej położonej części dachu (np. kalenicy), zwykle bez uwzględnienia kominów.
                            
                                            
                            Kąt nachylenia dachu
                        
                        
                                                            
                                                                                                                                                                                        40,00°
                                
                                                    
                                                    
                                Nachylenie połaci dachu podane w stopniach.
                            
                                            
                            Minimalne wymiary działki (szerokość)
                        
                        
                                                            
                                                                                                                                                                                        26,50 m
                                
                                                    
                                                    
                                Szerokość działki wyznaczona przy założeniu, że minimalna odległość budynku od granic działki wynosi przynajmniej 3 m w przypadku ścian bez otworów okiennych lub drzwiowych, albo 4 m w przypadku ścian budynku z takimi otworami.
                            
                                            
                            Minimalne wymiary działki (długość)
                        
                        
                                                            
                                                                                                                                                                                        21,40 m
                                
                                                    
                                                    
                                Długość działki wyznaczona przy założeniu, że minimalna odległość budynku od granic działki wynosi przynajmniej 3 m w przypadku ścian bez otworów okiennych lub drzwiowych, albo 4 m w przypadku ścian budynku z takimi otworami.
                            
                                            
                            Technologia budowy
                        
                        
                                                            
                                                                            Murowany
                                                                    
                                                    
                                            
                            Typ dachu
                        
                        
                                                            
                                                                            Dwuspadowy
                                                                    
                                                    
                                                    
                                Kształt dachu – płaski, jednospadowy (jedna skośna połać), dwuspadowy (dwie połacie), wielospadowy (w praktyce o przynajmniej czterech połaciach).
                            
                                            
                            Energooszczędność
                        
                        
                                                            
                                                                            Energooszczędny
                                                                    
                                                    
                                                    
                                Energooszczędny – dom o zapotrzebowaniu na tzw. nieodnawialna energię pierwotną (EP) niższym, niż wymagana przepisami maksymalna wartość.
                            
                                            
                            Typ zabudowy
                        
                        
                                                            
                                                                            Jednorodzinny
                                                                    
                                                    
                                            
                            Powierzchnia netto budynku
                        
                        
                                                            
                                                                                                                                                                                        185,51 m2
                                
                                                    
                                                    
                                Łączna powierzchnia wszystkich kondygnacjach obliczana z pominięciem elementów
konstrukcyjnych (ściany nośne, słupy itp.) ale wraz z powierzchnią zajmowaną przez ścianki działowe lub inne elementy, które można potencjalnie zdemontować.
                            
                                            
                            Kubatura budynku
                        
                        
                                                            
                                                                                                                                                                                        792,00 m3
                                
                                                    
                                                    
                                Objętość budynku, zwykle wraz z elementami konstrukcyjnymi (ścianami, stropami itd.).
                            
                                            
                            Strop
                        
                        
                                                            
                                                                                                                                                                                        gęstożebrowy 
                                
                                                    
                                            
                            Pokrycie dachu
                        
                        
                                                            
                                                                                                                                                                                        tradycyjna więźba ciesielska 
                                
                                                    
                                            
                            EUCO (energia użytkowa)
                        
                        
                                                            
                                                                                                                                                                                        20,14 kWh/m2 rok
                                
                                                    
                                            
                            Sposób ogrzewania
                        
                        
                                                            
                                                                                                                                                                                        c.o. grzejnikowe + c.w.u. - kocioł gazowy 
                                
                                                    
                                            
                            W stylu
                        
                        
                                                            
                                                                            Nowoczesnym
                                                                    
                                                    
                                            
                            Liczba kondygnacji
                        
                        
                                                            
                                                                            Z poddaszem użytkowym
                                                                    
                                                    
                                                    
                                Za kondygnacje uznawane są również poddasza użytkowe oraz piwnice. Kondygnacją nie jest natomiast poddasze nieużytkowe ani antresola.
                            
                                            
                    Koszty
                
            
                            Koszty budowy
                        
                        
                                        651 000 zł
                                    
                                    
                                        Koszt: Stan pod klucz
                                    
                                                                            
                                            Obejmuje koszt wszystkich robót stanu surowego, wykonania instalacji wewnętrznych oraz robót wykończeniowych.
                                        
                                                                    
                                        381 000 zł
                                    
                                                                            
                                            Koszt: Stan surowy zamknięty
                                        
                                                                                                                
                                            Koszt wzniesienia budynku wraz z pokryciem dachu i stolarką zewnętrzną (okna i drzwi). Bez instalacji, ocieplenia i robót wykończeniowych.
                                        
                                                                    
                            Koszty utrzymania
                        
                        
                            EP = 69,90  kWh/m2 rok
                        
                        
                            Oznacza ilość energii nieodnawialnej, jaką budynek może pozyskiwać z nieodnawialnych surowców energetycznych, czyli energii zawartej w paliwach i nośnikach takich jak węgiel, gaz czy ropa naftowa.
                        
                    
            Opis
        
        
            Projekt domu Newcastle to energooszczędny dom z użytkowym poddaszem, o rzucającym się w oczy wyglądzie w typie modnej nowoczesnej stodoły i o funkcjonalnie rozplanowanym wnętrzu. Ciekawie zaaranżowane  wejście prowadzi do wiatrołapu, a stamtąd do wyraźnie wydzielonej części wspólnej, gdzie zlokalizowano piękny, przestronny salon, jadalnię i otwartą kuchnię. Na parterze znajduje się również kotłownia i toaleta. Poddasze mieści komfortową strefę Master Bedroom z dużą sypialnią posiadającą własną garderobę i łazienkę oraz jeszcze dwie ustawne sypialnie, wspólną garderobę bądź schowek, wygodną łazienka oraz pralnię. Garaż na dwa auta, który przewidziano jako dostawiony do budynku, dzięki płaskiemu dachowi nie powiększa optycznie całej bryły, natomiast sprawia, że jest  ona bardziej urozmaicona. Ozdobą domu jest piękny taras od strony salonu oraz duże, narożne okna, dzięki którym wnętrze jest doskonale doświetlone światłem dziennym. Przyciągają one wzrok również od zewnątrz. Energooszczędne rozwiązania pozwalają na niskie zapotrzebowanie domu na energię, a co za tym idzie dom wybudowany wg projektu Newcastle będzie oszczędny i ekologiczny.<br>
Poprzednia nazwa projektu: Oznaczony - EC373.
        
                            
                CZYTAJ WIĘCEJ
                
            
            
                            Newcastle (DCP364)
                        
                        
                            BD44245
                        
                    
                            Powierzchnia użytkowa
                                                            
                                    
                                
                                
                        
                                    Łączna powierzchnia tzw. pomieszczeń użytkowych. Przede wszystkim nie zalicza się do niej powierzchni garażu, nieużytkowego strychu, piwnicy, kotłowni.
                                
                                                    
                            131,27 m2
                        
                    
                            Liczba pokoi
                                                    
                        
                            4 
                        
                    
                            Liczba łazienek
                                                    
                        
                            3 
                        
                    
                            Garaż
                                                    
                        
                            2 
                        
                    
                            Powierzchnia zabudowy
                                                            
                                    
                                
                                
                        
                                    Powierzchnia zajmowana przez budynek na działce. W praktyce tzw. powierzchnia rzutu budynku wyznaczana po obrysie ścian zewnętrznych.
                                
                                                    
                            141,07 m2
                        
                    
            Inne wersje projektu
        
        
    
            PODOBNE PROJEKTY