Ferrara II (DCP363a)
Dodaj do porównania
Usuń z porównania
Dodaj do ulubionych
Usuń z ulubionych
Pow. użytkowa:
144.37m2
Pow. zabudowy:
127.41m2
Koszt budowy:
736000zł
Liczba pokoi:
4
Liczba łazienek:
3
Garaż:
1
Rzuty

Lustrzane odbicie
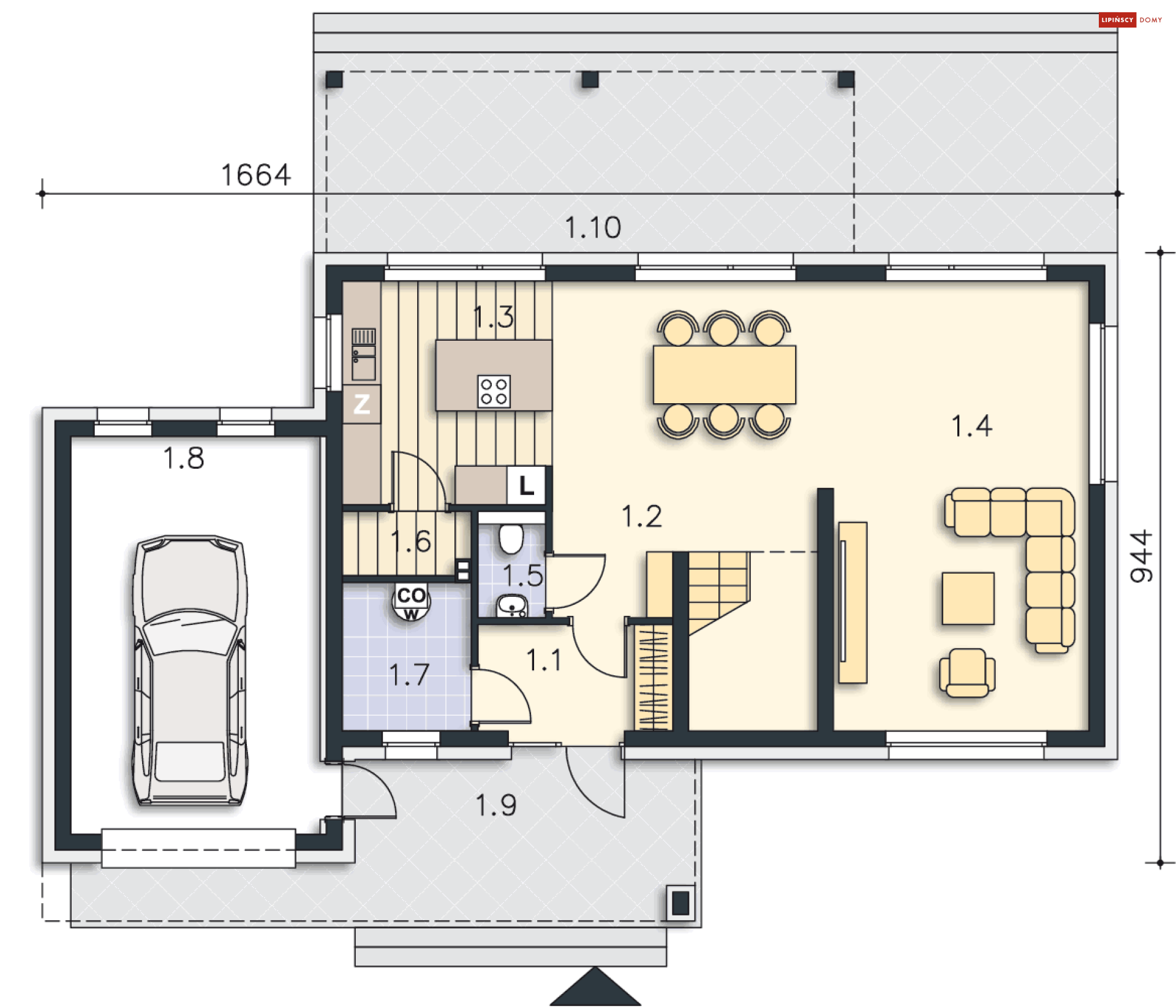
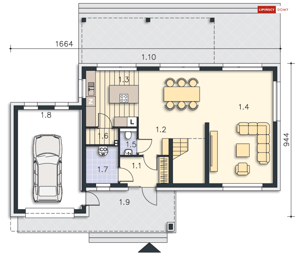
Rzut parteru
157.85 m2
Wiatrołap
4.89 m2
Hall
9.2 m2
Kuchnia
11.05 m2
Pokój dzienny
41.36 m2
WC
1.67 m2
Spiżarnia
1.9 m2
Kotłownia
4.49 m2
Garaż
22.87 m2
Podest
21.92 m2
Taras
38.5 m2
Pobierz rysunki szczegółowe
Zapytaj, co możesz zmienić

Lustrzane odbicie
Rzut I piętra
101.21 m2
Komunikacja
6.27 m2
Pokój
15.14 m2
Garderoba
3.98 m2
Pokój
12.64 m2
Pokój
12.64 m2
Łazienka
8.93 m2
Łazienka
4.45 m2
Schody
5.09 m2
Garderoba
5.16 m2
Taras
6.1 m2
Taras
20.81 m2
Pobierz rysunki szczegółowe
Zapytaj, co możesz zmienić

Lustrzane odbicie
Pobierz rysunki szczegółowe
Zapytaj, co możesz zmienić
Zamów rysunki szczegółowe
Zapoznaj się ze szczegółowymi rysunkami rzutów kondygnacji w PDF dla tego projektu.
ZAMAWIAM

Elewacje

Frontowa

Ogrodowa

Lewa

Prawa
Specyfikacja techniczna
Główne parametry
Powierzchnia użytkowa
144,37 m2
Łączna powierzchnia tzw. pomieszczeń użytkowych. Przede wszystkim nie zalicza się do niej powierzchni garażu, nieużytkowego strychu, piwnicy, kotłowni.
Liczba pokoi
4
Liczba łazienek
3
Garaż
1
Powierzchnia zabudowy
127,41 m2
Powierzchnia zajmowana przez budynek na działce. W praktyce tzw. powierzchnia rzutu budynku wyznaczana po obrysie ścian zewnętrznych.
Pełna specyfikacja
Maksymalna wysokość budynku
7,21 m
Wysokość wyznaczona od poziomu terenu do najwyżej położonej części dachu (np. kalenicy), zwykle bez uwzględnienia kominów.
Kąt nachylenia dachu
2,00°
Nachylenie połaci dachu podane w stopniach.
Minimalne wymiary działki (szerokość)
23,70 m
Szerokość działki wyznaczona przy założeniu, że minimalna odległość budynku od granic działki wynosi przynajmniej 3 m w przypadku ścian bez otworów okiennych lub drzwiowych, albo 4 m w przypadku ścian budynku z takimi otworami.
Minimalne wymiary działki (długość)
20,70 m
Długość działki wyznaczona przy założeniu, że minimalna odległość budynku od granic działki wynosi przynajmniej 3 m w przypadku ścian bez otworów okiennych lub drzwiowych, albo 4 m w przypadku ścian budynku z takimi otworami.
Technologia budowy
Murowany
Typ dachu
Płaski
Kształt dachu – płaski, jednospadowy (jedna skośna połać), dwuspadowy (dwie połacie), wielospadowy (w praktyce o przynajmniej czterech połaciach).
Energooszczędność
Energooszczędny
Energooszczędny – dom o zapotrzebowaniu na tzw. nieodnawialna energię pierwotną (EP) niższym, niż wymagana przepisami maksymalna wartość.
Typ zabudowy
Jednorodzinny
Powierzchnia netto budynku
200,74 m2
Łączna powierzchnia wszystkich kondygnacjach obliczana z pominięciem elementów
konstrukcyjnych (ściany nośne, słupy itp.) ale wraz z powierzchnią zajmowaną przez ścianki działowe lub inne elementy, które można potencjalnie zdemontować.
Kubatura budynku
764,00 m3
Objętość budynku, zwykle wraz z elementami konstrukcyjnymi (ścianami, stropami itd.).
Ściany zewnętrzne (materiały)
Bloczek betonu komórkowego 24 cm + styropian 20 cm
Strop
gęstożebrowy
Pokrycie dachu
stropodach żelbetowy
EUCO (energia użytkowa)
23,76 kWh/m2 rok
Sposób ogrzewania
c.o. grzejnikowe + c.w.u. - kocioł gazowy
W stylu
Nowoczesnym
Liczba kondygnacji
Piętrowe
Za kondygnacje uznawane są również poddasza użytkowe oraz piwnice. Kondygnacją nie jest natomiast poddasze nieużytkowe ani antresola.
Koszty
Koszty budowy
736 000 zł
Koszt: Stan pod klucz
Obejmuje koszt wszystkich robót stanu surowego, wykonania instalacji wewnętrznych oraz robót wykończeniowych.
431 000 zł
Koszt: Stan surowy zamknięty
Koszt wzniesienia budynku wraz z pokryciem dachu i stolarką zewnętrzną (okna i drzwi). Bez instalacji, ocieplenia i robót wykończeniowych.
Koszty utrzymania
EP = 58,65 kWh/m2 rok
Oznacza ilość energii nieodnawialnej, jaką budynek może pozyskiwać z nieodnawialnych surowców energetycznych, czyli energii zawartej w paliwach i nośnikach takich jak węgiel, gaz czy ropa naftowa.
Opis
Projekt domu Ferrara II to projekt, przestronnego i bardzo wygodnego domu, zaplanowanego w standardzie energooszczędnym, z pełnym piętrem i z płaskim dachem. Uwagę zwraca nowoczesna, elegancka bryła, w którą wpisano garaż na jedno auto. Serce domu stanowi duży salon, doskonały do wspólnego spędzania czasu, połączony z jadalnią, obok której zlokalizowano ustawną kuchnię z wyspą. Duże, prowadzące na taras okna nadają wnętrzu przestronności i wpuszczają dużo naturalnego światła. Poddasze to część nocna, podzielona na trzy sypialnie. Do jednej z nich przynależy garderoba i własna łazienka, a dwa pozostałe mają dostęp do wspólnej, dużej łazienki. Prosta bryła domu została urozmaicona dużymi przeszkleniami, które wspaniale doświetlają wszystkie wnętrza, zarówno te w strefie dziennej, jak i sypialnie. Jednocześnie dom nabrał lekkości, a ciekawie zaaranżowane elewacje przyciągają wzrok.<br>
Poprzednia nazwa projektu: Przeznaczony w.I - EC378a.
CZYTAJ WIĘCEJ

Ferrara II (DCP363a)
BD44250
Powierzchnia użytkowa
Łączna powierzchnia tzw. pomieszczeń użytkowych. Przede wszystkim nie zalicza się do niej powierzchni garażu, nieużytkowego strychu, piwnicy, kotłowni.
144,37 m2
Liczba pokoi
4
Liczba łazienek
3
Garaż
1
Powierzchnia zabudowy
Powierzchnia zajmowana przez budynek na działce. W praktyce tzw. powierzchnia rzutu budynku wyznaczana po obrysie ścian zewnętrznych.
127,41 m2