Cykada 3 (CE)
Dodaj do porównania
Usuń z porównania
Dodaj do ulubionych
Usuń z ulubionych
Pow. użytkowa:
1120.2m2
Pow. zabudowy:
869.5m2
Koszt budowy:
5488000zł
Liczba pokoi:
21
Liczba łazienek:
23
Rzuty

Lustrzane odbicie
Rzut parteru
710.2 m2
wiatrołap
5.1 m2
hol
61.5 m2
recepcja
19 m2
bar
37.3 m2
sala konsumpcyjna
209 m2
magazyn baru
2.9 m2
zmywalnia
6 m2
korytarz/komunikacja
22.7 m2
magazyn
3.1 m2
obieralnia
3.9 m2
magazyn
4.9 m2
szatnia
5.8 m2
WC
4 m2
kuchnia
32.8 m2
skład opału
11.7 m2
kotłownia
7.4 m2
WC
10.7 m2
WC
4.2 m2
WC
10.3 m2
schody
15.8 m2
korytarz/komunikacja
30 m2
pokój
28.6 m2
łazienka
5.6 m2
pokój
28.4 m2
łazienka
5.2 m2
pokój
22.3 m2
łazienka
6 m2
pomieszczenie gospodarcze
2.6 m2
schody
14.3 m2
pokój
15.5 m2
łazienka
4.8 m2
łazienka
4.8 m2
pokój
14.2 m2
pokój
16 m2
łazienka
4.8 m2
pokój
16 m2
łazienka
4.8 m2
rozdzielnia kelnerska
8.2 m2
Pobierz rysunki szczegółowe
Zapytaj, co możesz zmienić

Lustrzane odbicie
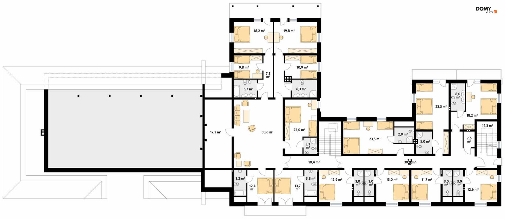
Rzut poddasza
410 m2
korytarz/komunikacja
10.4 m2
pomieszczenie rekreacyjne
50.6 m2
wentylatornia
17.3 m2
pokój
9.8 m2
łazienka
5.7 m2
pokój
18.2 m2
pokój
19.8 m2
pokój
10.9 m2
łazienka
6.3 m2
pokój
22 m2
łazienka
3.3 m2
pokój
23.5 m2
łazienka
2.9 m2
łazienka
5 m2
pokój
22.3 m2
pokój
18.2 m2
łazienka
6 m2
pomieszczenie gospodarcze
2.6 m2
schody
14.3 m2
pokój
12.6 m2
łazienka
3 m2
łazienka
3 m2
pokój
11.7 m2
pokój
13 m2
łazienka
3 m2
łazienka
3 m2
pokój
12.9 m2
łazienka
3.8 m2
pokój
13.7 m2
pokój
12.4 m2
łazienka
3.2 m2
korytarz/komunikacja
7.8 m2
korytarz/komunikacja
7.8 m2
korytarz/komunikacja
30 m2
Pobierz rysunki szczegółowe
Zapytaj, co możesz zmienić

Lustrzane odbicie
Pobierz rysunki szczegółowe
Zapytaj, co możesz zmienić
Zamów rysunki szczegółowe
Zapoznaj się ze szczegółowymi rysunkami rzutów kondygnacji w PDF dla tego projektu.
ZAMAWIAM

Elewacje

Frontowa

Ogrodowa

Lewa

Prawa
Specyfikacja techniczna
Główne parametry
Powierzchnia użytkowa
1 120,20 m2
Łączna powierzchnia tzw. pomieszczeń użytkowych. Przede wszystkim nie zalicza się do niej powierzchni garażu, nieużytkowego strychu, piwnicy, kotłowni.
Liczba pokoi
21
Liczba łazienek
23
Powierzchnia zabudowy
869,50 m2
Powierzchnia zajmowana przez budynek na działce. W praktyce tzw. powierzchnia rzutu budynku wyznaczana po obrysie ścian zewnętrznych.
Pełna specyfikacja
Maksymalna wysokość budynku
9,79 m
Wysokość wyznaczona od poziomu terenu do najwyżej położonej części dachu (np. kalenicy), zwykle bez uwzględnienia kominów.
Kąt nachylenia dachu
30,00°
Nachylenie połaci dachu podane w stopniach.
Minimalne wymiary działki (szerokość)
68,28 m
Szerokość działki wyznaczona przy założeniu, że minimalna odległość budynku od granic działki wynosi przynajmniej 3 m w przypadku ścian bez otworów okiennych lub drzwiowych, albo 4 m w przypadku ścian budynku z takimi otworami.
Minimalne wymiary działki (długość)
34,23 m
Długość działki wyznaczona przy założeniu, że minimalna odległość budynku od granic działki wynosi przynajmniej 3 m w przypadku ścian bez otworów okiennych lub drzwiowych, albo 4 m w przypadku ścian budynku z takimi otworami.
Technologia budowy
Murowany
Typ dachu
Wielospadowy
Kształt dachu – płaski, jednospadowy (jedna skośna połać), dwuspadowy (dwie połacie), wielospadowy (w praktyce o przynajmniej czterech połaciach).
Energooszczędność
Standardowy
Energooszczędny – dom o zapotrzebowaniu na tzw. nieodnawialna energię pierwotną (EP) niższym, niż wymagana przepisami maksymalna wartość.
Przystosowany pod instalacje
kotła na paliwa stałe
Koszt: Wykoczńenie
218 208 zł
Kubatura budynku
5 400,00 m3
Objętość budynku, zwykle wraz z elementami konstrukcyjnymi (ścianami, stropami itd.).
Szerokość budynku
60,28 m
Maksymalna szerokość budynku wraz z grubością izolacji cieplnej oraz okładzin ściennych.
Długość budynku
25,23 m
Maksymalna długość budynku wraz z grubością izolacji cieplnej oraz okładzin ściennych.
W stylu
Tradycyjnym,
Rustykalnym
Liczba kondygnacji
Z poddaszem użytkowym
Za kondygnacje uznawane są również poddasza użytkowe oraz piwnice. Kondygnacją nie jest natomiast poddasze nieużytkowe ani antresola.
Koszty
Koszty budowy
5 488 000 zł
Koszt: Stan pod klucz
Obejmuje koszt wszystkich robót stanu surowego, wykonania instalacji wewnętrznych oraz robót wykończeniowych.
3 573 000 zł
Koszt: Stan surowy zamknięty
Koszt wzniesienia budynku wraz z pokryciem dachu i stolarką zewnętrzną (okna i drzwi). Bez instalacji, ocieplenia i robót wykończeniowych.
Opis
Pensjonat parterowy z poddaszem użytkowym, niepodpiwniczony. Część mieszkalna: 18 pokoi i 2 mieszkania 2-pokojowe do wynajęcia. Pokoje na parterze przeznaczone są dla osób niepełnosprawnych. Część restauracyjno-bankietowa: sala o powierzchni 209 m2 z oddzielnym wejściem, zaplecze kuchenne, bar i restauracja.
Dodatki do projektu
Opieka konsultacyjna
0zł
599 zł
Prenumerata 12 tytułów
0zł
599 zł
-
Bioz0 zł
-
Dziennik budowy0 zł
-
Rzut w skali 1 5000 zł
-
Zgoda na zmiany0 zł
-
Dodatkowy egzemplarz projektu19 560 zł
Prenumerata 12 tytułów
0zł
599 zł
-
Elektroniczna wersja projektu9 780 zł
-
Kosztorys2 000 zł
-
Rekuperacja600 zł
-
Schemat szamba60 zł

Cykada 3 (CE)
BD47332
Powierzchnia użytkowa
Łączna powierzchnia tzw. pomieszczeń użytkowych. Przede wszystkim nie zalicza się do niej powierzchni garażu, nieużytkowego strychu, piwnicy, kotłowni.
1 120,20 m2
Liczba pokoi
21
Liczba łazienek
23
Powierzchnia zabudowy
Powierzchnia zajmowana przez budynek na działce. W praktyce tzw. powierzchnia rzutu budynku wyznaczana po obrysie ścian zewnętrznych.
869,50 m2
Kup projekt
65 200 zł
Projekt + opieka konsultacyjna
Tylko u nas
kupujesz projekt wraz z
opieką konsultacyjną w trakcie budowy domu
opieką konsultacyjną w trakcie budowy domu
Kup projekt
65 200 zł
Masz pytania?
Zadzwoń!
22 257 84 76
pon-pt: 9-17