Cykada (CE)
Dodaj do porównania
Usuń z porównania
Dodaj do ulubionych
Usuń z ulubionych
Pow. użytkowa:
611.5m2
Pow. zabudowy:
499.3m2
Koszt budowy:
2997000zł
Liczba pokoi:
11
Liczba łazienek:
14
Rzuty

Lustrzane odbicie
Pobierz rysunki szczegółowe
Zapytaj, co możesz zmienić

Lustrzane odbicie
Rzut parteru
396.6 m2
wiatrołap
5.1 m2
hol
36.1 m2
WC
6.6 m2
WC
4.1 m2
sala konsumpcyjna
29.5 m2
sala konsumpcyjna
150.6 m2
kuchnia
27.8 m2
rozdzielnia kelnerska
3.4 m2
zmywalnia
3.9 m2
korytarz/komunikacja
14.4 m2
magazyn
4.7 m2
szatnia
11 m2
pomieszczenie gospodarcze
3.7 m2
WC
4.3 m2
schody
15.8 m2
pomieszczenie gospodarcze
1.7 m2
łazienka
5.3 m2
korytarz/komunikacja
6.9 m2
pokój
20.3 m2
łazienka
5.4 m2
pokój
14.8 m2
łazienka
5.2 m2
pokój
16 m2
Pobierz rysunki szczegółowe
Zapytaj, co możesz zmienić

Lustrzane odbicie
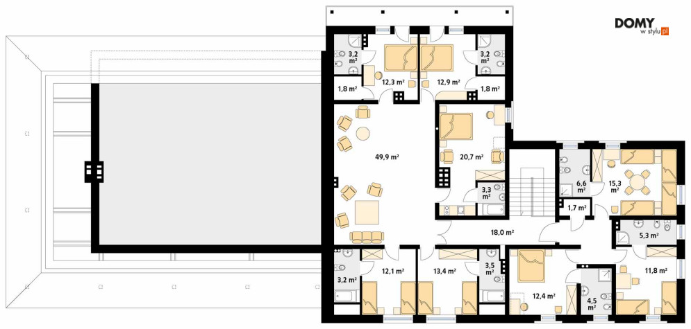
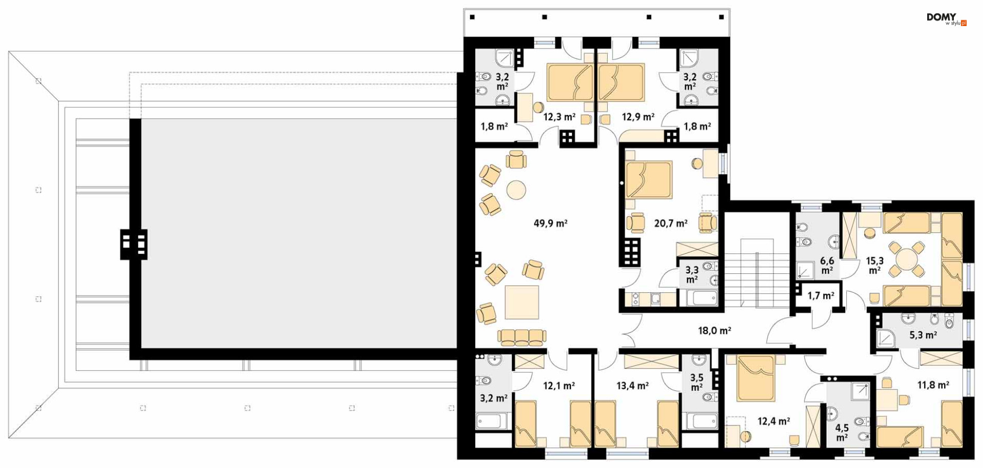
Rzut poddasza
214.9 m2
korytarz/komunikacja
18 m2
pomieszczenie rekreacyjne
49.9 m2
pokój
12.3 m2
garderoba
1.8 m2
łazienka
3.2 m2
pokój
12.9 m2
garderoba
1.8 m2
łazienka
3.2 m2
pokój
20.7 m2
łazienka
3.3 m2
pomieszczenie gospodarcze
1.7 m2
pokój
15.3 m2
łazienka
4.6 m2
łazienka
5.3 m2
pokój
11.8 m2
łazienka
4.5 m2
pokój
12.4 m2
łazienka
3.5 m2
pokój
13.4 m2
pokój
12.1 m2
łazienka
3.2 m2
Pobierz rysunki szczegółowe
Zapytaj, co możesz zmienić

Lustrzane odbicie
Pobierz rysunki szczegółowe
Zapytaj, co możesz zmienić
Zamów rysunki szczegółowe
Zapoznaj się ze szczegółowymi rysunkami rzutów kondygnacji w PDF dla tego projektu.
ZAMAWIAM

Elewacje

Frontowa

Ogrodowa

Lewa

Prawa
Specyfikacja techniczna
Główne parametry
Powierzchnia użytkowa
611,50 m2
Łączna powierzchnia tzw. pomieszczeń użytkowych. Przede wszystkim nie zalicza się do niej powierzchni garażu, nieużytkowego strychu, piwnicy, kotłowni.
Liczba pokoi
11
Liczba łazienek
14
Powierzchnia zabudowy
499,30 m2
Powierzchnia zajmowana przez budynek na działce. W praktyce tzw. powierzchnia rzutu budynku wyznaczana po obrysie ścian zewnętrznych.
Pełna specyfikacja
Maksymalna wysokość budynku
9,31 m
Wysokość wyznaczona od poziomu terenu do najwyżej położonej części dachu (np. kalenicy), zwykle bez uwzględnienia kominów.
Kąt nachylenia dachu
30,00°
Nachylenie połaci dachu podane w stopniach.
Minimalne wymiary działki (szerokość)
47,53 m
Szerokość działki wyznaczona przy założeniu, że minimalna odległość budynku od granic działki wynosi przynajmniej 3 m w przypadku ścian bez otworów okiennych lub drzwiowych, albo 4 m w przypadku ścian budynku z takimi otworami.
Minimalne wymiary działki (długość)
28,03 m
Długość działki wyznaczona przy założeniu, że minimalna odległość budynku od granic działki wynosi przynajmniej 3 m w przypadku ścian bez otworów okiennych lub drzwiowych, albo 4 m w przypadku ścian budynku z takimi otworami.
Technologia budowy
Murowany
Typ dachu
Wielospadowy
Kształt dachu – płaski, jednospadowy (jedna skośna połać), dwuspadowy (dwie połacie), wielospadowy (w praktyce o przynajmniej czterech połaciach).
Energooszczędność
Standardowy
Energooszczędny – dom o zapotrzebowaniu na tzw. nieodnawialna energię pierwotną (EP) niższym, niż wymagana przepisami maksymalna wartość.
Przystosowany pod instalacje
kotła na paliwa stałe
Koszt: Wykoczńenie
82 248 zł
Kubatura budynku
3 504,00 m3
Objętość budynku, zwykle wraz z elementami konstrukcyjnymi (ścianami, stropami itd.).
Szerokość budynku
39,53 m
Maksymalna szerokość budynku wraz z grubością izolacji cieplnej oraz okładzin ściennych.
Długość budynku
19,03 m
Maksymalna długość budynku wraz z grubością izolacji cieplnej oraz okładzin ściennych.
W stylu
Rustykalnym,
Dworkowym
Liczba kondygnacji
Z poddaszem użytkowym
Za kondygnacje uznawane są również poddasza użytkowe oraz piwnice. Kondygnacją nie jest natomiast poddasze nieużytkowe ani antresola.
Koszty
Koszty budowy
2 997 000 zł
Koszt: Stan pod klucz
Obejmuje koszt wszystkich robót stanu surowego, wykonania instalacji wewnętrznych oraz robót wykończeniowych.
1 951 000 zł
Koszt: Stan surowy zamknięty
Koszt wzniesienia budynku wraz z pokryciem dachu i stolarką zewnętrzną (okna i drzwi). Bez instalacji, ocieplenia i robót wykończeniowych.
Opis
Pensjonat parterowy z poddaszem użytkowym, podpiwniczony. Dziesięć pokoi do wynajęcia, w tym trzy przystosowane dla osób niepełnosprawnych. Na parterze dodatkowo sala bankietowa. Na poddaszu pokój dla obsługi.
Dodatki do projektu
Opieka konsultacyjna
0zł
599 zł
Prenumerata 12 tytułów
0zł
599 zł
-
Bioz0 zł
-
Dziennik budowy0 zł
-
Rzut w skali 1 5000 zł
-
Zgoda na zmiany0 zł
-
Dodatkowy egzemplarz projektu19 560 zł
Prenumerata 12 tytułów
0zł
599 zł
-
Elektroniczna wersja projektu9 780 zł
-
Kosztorys2 000 zł
-
Rekuperacja600 zł
-
Schemat szamba60 zł

Cykada (CE)
BD48121
Powierzchnia użytkowa
Łączna powierzchnia tzw. pomieszczeń użytkowych. Przede wszystkim nie zalicza się do niej powierzchni garażu, nieużytkowego strychu, piwnicy, kotłowni.
611,50 m2
Liczba pokoi
11
Liczba łazienek
14
Powierzchnia zabudowy
Powierzchnia zajmowana przez budynek na działce. W praktyce tzw. powierzchnia rzutu budynku wyznaczana po obrysie ścian zewnętrznych.
499,30 m2
Kup projekt
65 200 zł
Projekt + opieka konsultacyjna
Tylko u nas
kupujesz projekt wraz z
opieką konsultacyjną w trakcie budowy domu
opieką konsultacyjną w trakcie budowy domu
Kup projekt
65 200 zł
Masz pytania?
Zadzwoń!
22 257 84 76
pon-pt: 9-17