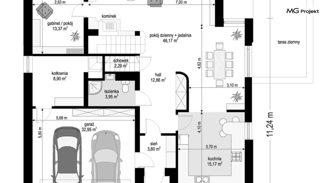
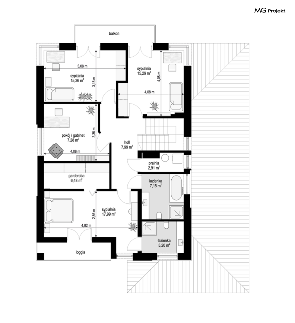
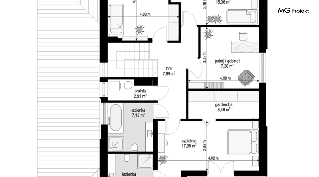
Kasjopea 3 wariant E







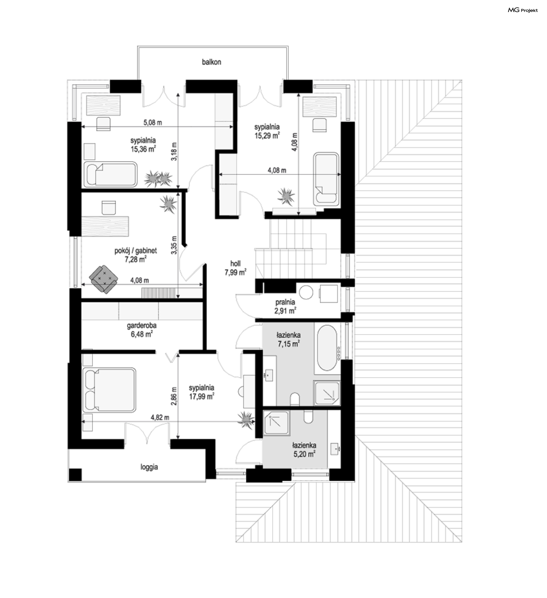
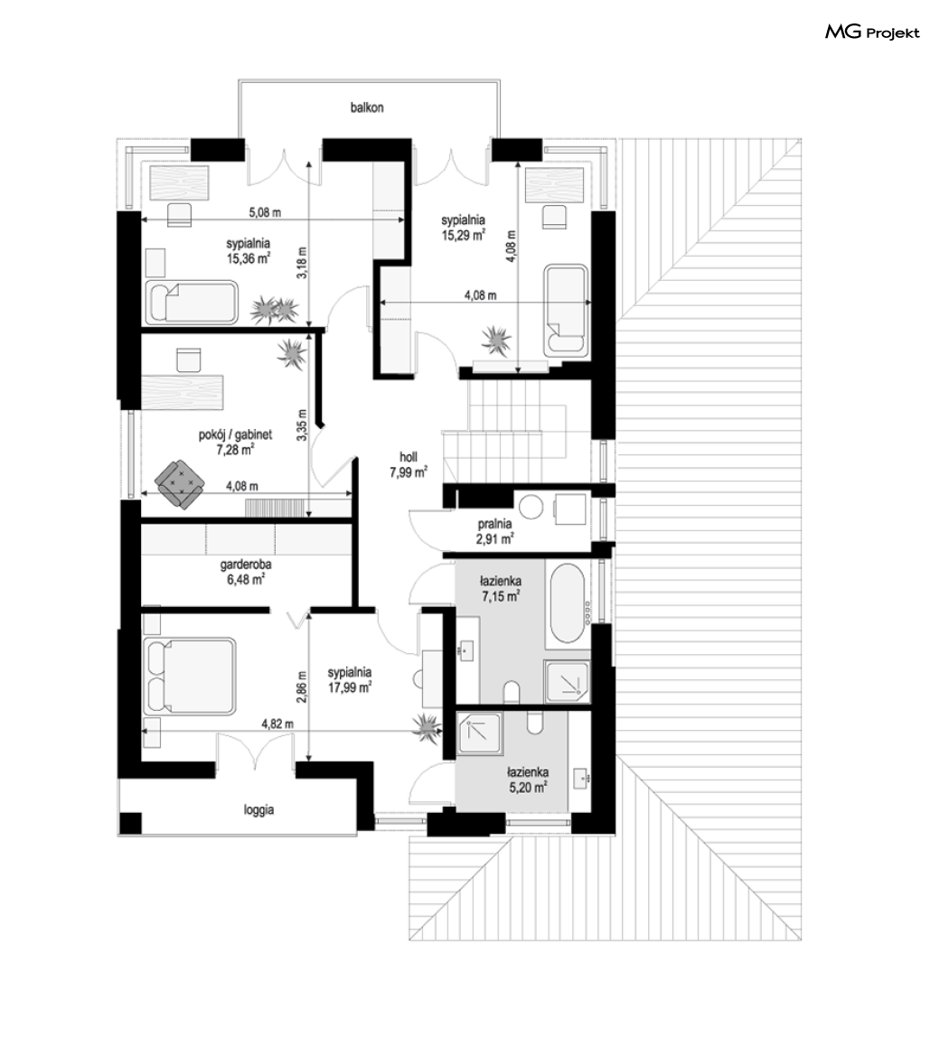
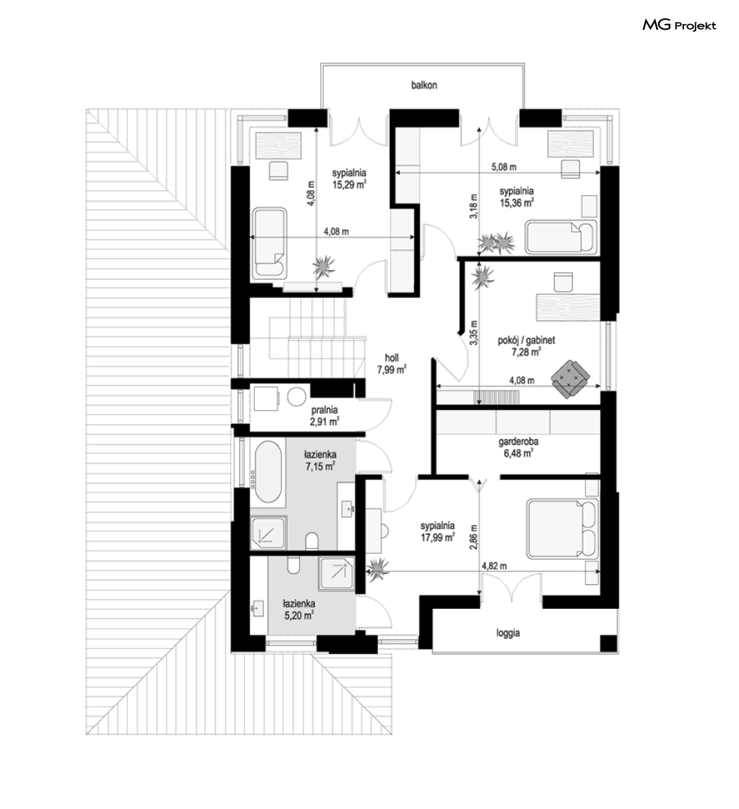
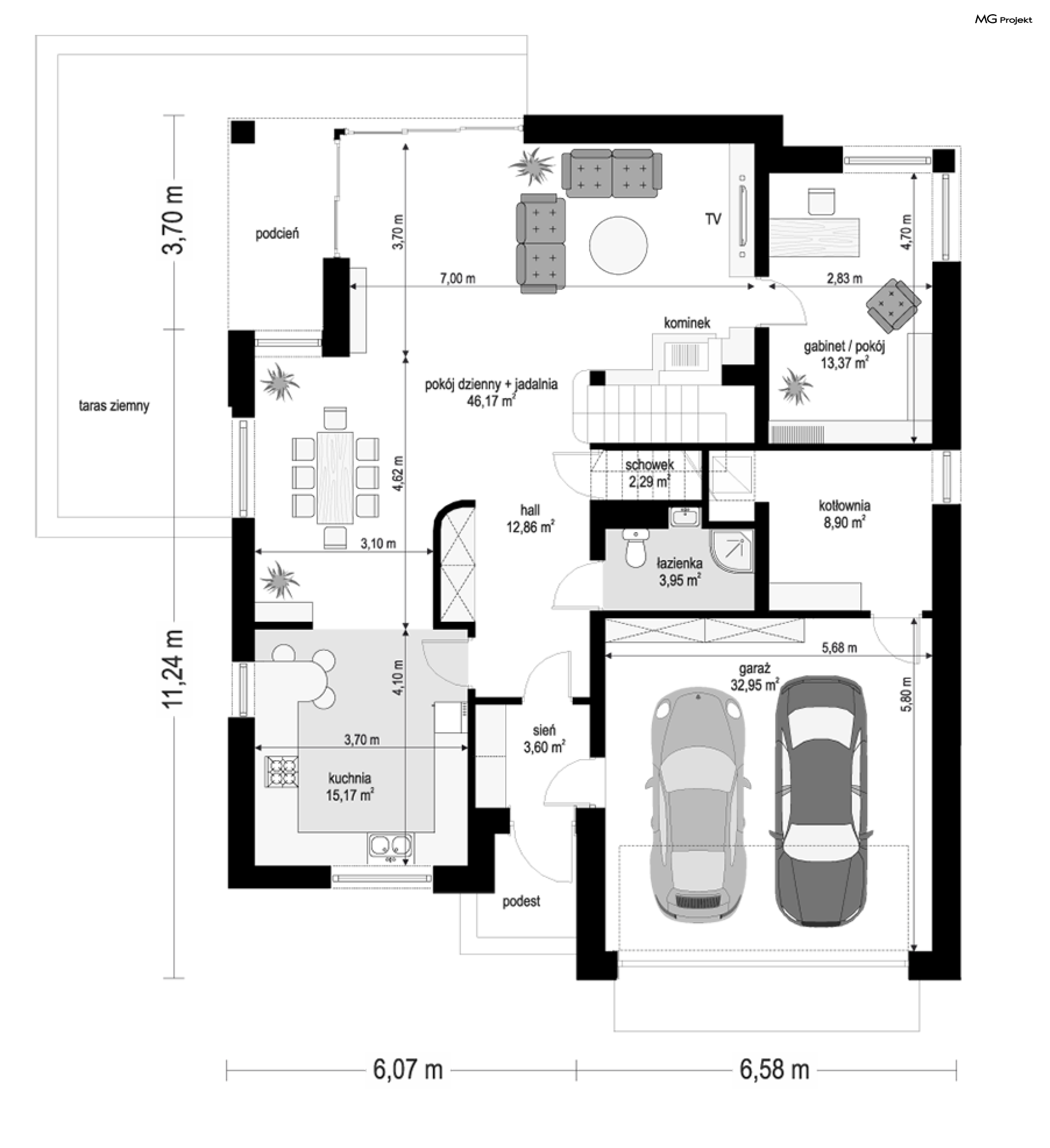
Wariant projektu z poszerzonym piętrem o 1m zrównując je ze ścianą parteru, zlikwidanym daszkiem nad wykuszem, wyprostowanym narożnikiem przy kuchni. Przesuniętym podcieniem przy salonie (powiększenie salonu). Skrócenie tarasu od strony ogrodowej i poszerzenie od strony bocznej. Zaprojektowanie okna narożnego w sypialni na piętrze, likwidacja okna bocznego. Poszerzenie balkonu o 1m oraz przesunięcie drzwi balkonowych tak aby zachować symetrię na elewacji tylnej. Wyrównanie powierzchni sypialni od strony tylnej Powiększenie pralni oraz zaprojektowanie drzwi z korytarza. Wymiary i układ łazienek i pralni tak jak w Kasjopea 7.
-
Projekt szamba szczelnego0 zł399 zł
-
Charakterystyka energetyczna0 zł200 zł
-
Pakiet energooszczędny0 zł150 zł
-
Dziennik budowy0 zł60 zł
-
Tablica budowy0 zł120 zł
-
Wersja elektroniczna projektu550 zł
-
Pakiet kosztorys inwestorski550 zł
-
Pakiet ogrzewanie podłogowe470 zł
-
Powietrzna pompa ciepła470 zł
-
Pakiet wentylacja mechaniczna i kominek DGP470 zł
-
Dodatkowy egzemplarz projektu500 zł
-
Pakiet kotłownia na paliwo stałe470 zł
-
Pakiet instalacja fotowoltaiczna470 zł
-
Pakiet klimatyzacja w domu470 zł
-
Pakiet gruntowa pompa ciepła470 zł
-
Pakiet odkurzacz centralny470 zł
-
Pakiet płaszcz wodny470 zł
-
Pakiet kominek DGP399 zł
-
Projekty altan i grillów ogrodowych650 zł
-
Pakiet instalacja solarna470 zł

opieką konsultacyjną w trakcie budowy domu