Poziomka







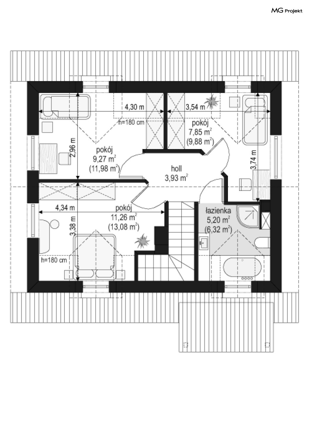
Projekt domu Poziomka to uroczy domek dla trzy-czteroosobowej rodziny, mogący służyć zarówno jako dom mieszkalny do całorocznego zamieszkiwania, jak i dom wakacyjny. Budynek przekryty został dwuspadowym dachem, z małymi ozdabiającymi bryłę lukarenkami. Wejście do domu zaakcentowano daszkiem wspartym na drewnianych kolumienkach. Od strony ogrodu z kolei z salonu wychodzimy ładnymi przeszklonymi drzwiami na duży centralny taras. Właściwe proporcje i ludzka skala bryły sprawiają, że od razu chciałoby się zamieszkać w tym cudeńku :). Wnętrze Poziomki jest bardzo funkcjonalne. Na parterze mieści się część dzienna, na poddaszu pokoje sypialne. Na dole mamy jednoprzestrzenne wnętrze połączonego salonu, kuchni i holu - razem ponad 40 m2, co przy tej wielkości domu jest bardzo ładną powierzchnią. Wchodzimy do domu przez wygodny przedsionek, z boku znajduje się wc, a pod górnym biegiem schodów – wnęka na kocioł gazowy kondensacyjny. W salonie bardzo ładnie połączono schody na poddasze ze ścianą kominkowo-telewizyjną. Na poddaszu mieszczą się trzy sypialnie z wygodnymi szafami wnękowymi i łazienka. Wszystkie pomieszczenia są dobrze bardzo doświetlone. Projekt domu Poziomka to niewielka willa, o prostej konstrukcji, łatwa w budowie i tania w przyszłej eksploatacji. W sam raz na pierwsze gniazdko dla młodej rodziny z dziećmi, lub jako dom dla dwójki bardziej dorosłych osób. Niewielkie wymiary zewnętrzne pozwolą posadowić budynek nawet na niedużej działce. Ewentualna późniejsza odsprzedaż takiego domu nie powinna być żadnym problemem – jego funkcjonalność, bezpretensjonalny styl, z pewnością przypadną do gustu wielu osobom. Pracownia posiada również odbicie lustrzane projektu domu Poziomka.
-
Projekt szamba szczelnego0 zł399 zł
-
Charakterystyka energetyczna0 zł200 zł
-
Pakiet energooszczędny0 zł150 zł
-
Dziennik budowy0 zł60 zł
-
Tablica budowy0 zł120 zł
-
Wersja elektroniczna projektu550 zł
-
Pakiet kosztorys inwestorski550 zł
-
Pakiet ogrzewanie podłogowe470 zł
-
Powietrzna pompa ciepła470 zł
-
Pakiet wentylacja mechaniczna i kominek DGP470 zł
-
Dodatkowy egzemplarz projektu500 zł
-
Pakiet kotłownia na paliwo stałe470 zł
-
Pakiet instalacja fotowoltaiczna470 zł
-
Pakiet klimatyzacja w domu470 zł
-
Pakiet gruntowa pompa ciepła470 zł
-
Pakiet odkurzacz centralny470 zł
-
Pakiet płaszcz wodny470 zł
-
Pakiet kominek DGP399 zł
-
Projekty altan i grillów ogrodowych650 zł
-
Pakiet instalacja solarna470 zł

opieką konsultacyjną w trakcie budowy domu