Willa Floryda 8







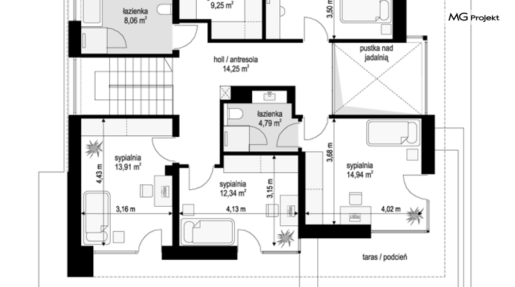
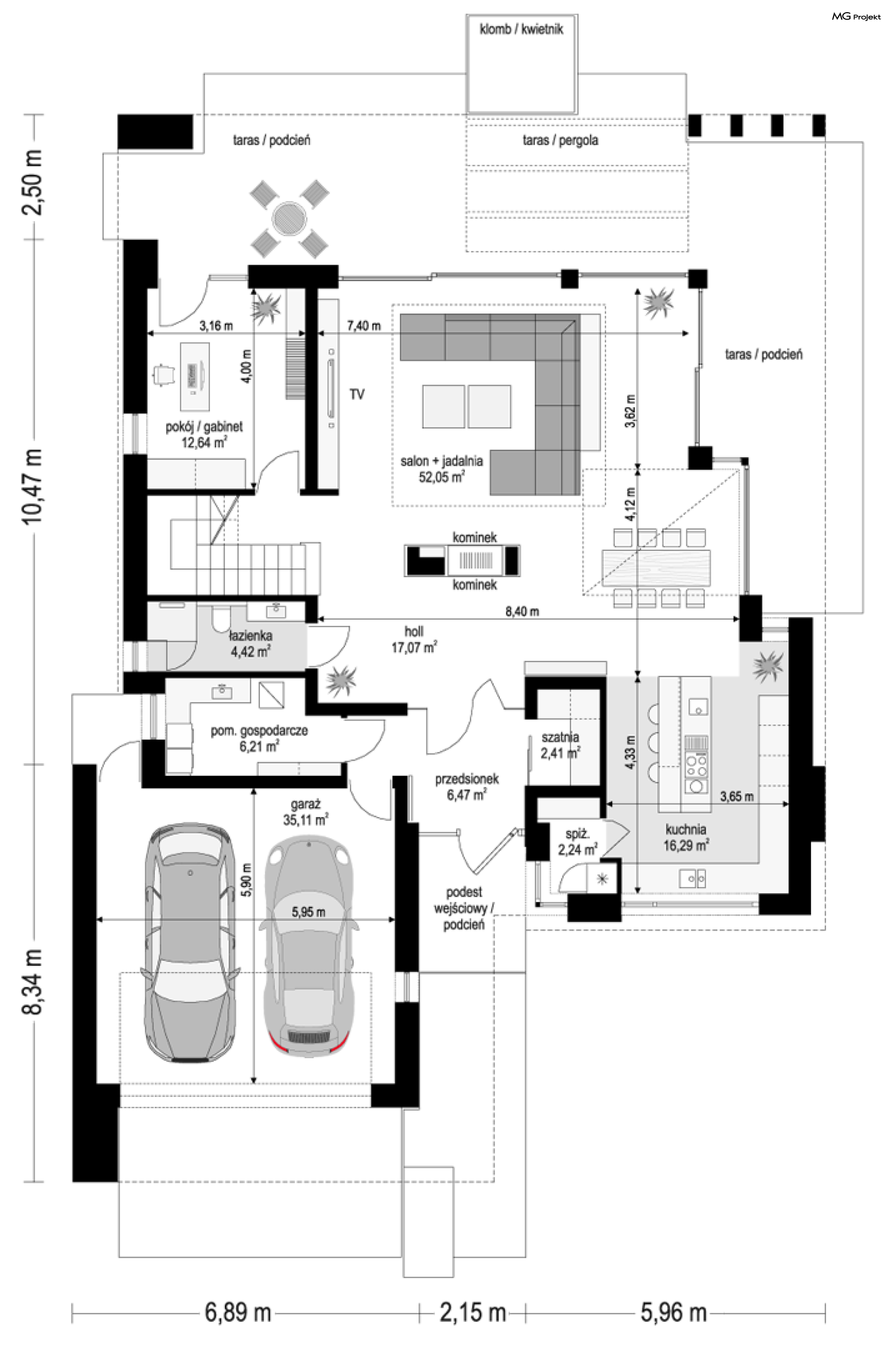
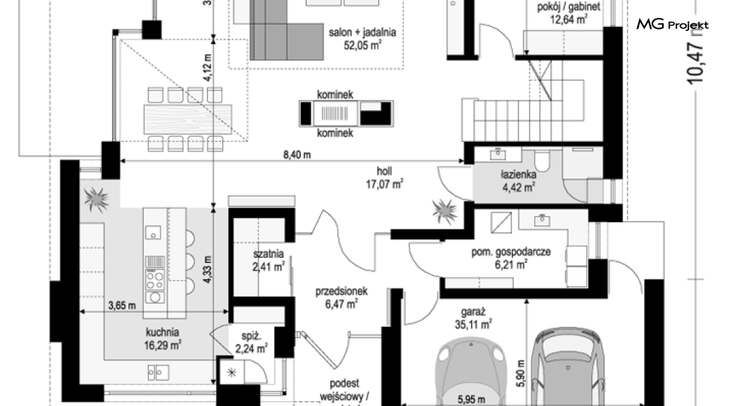
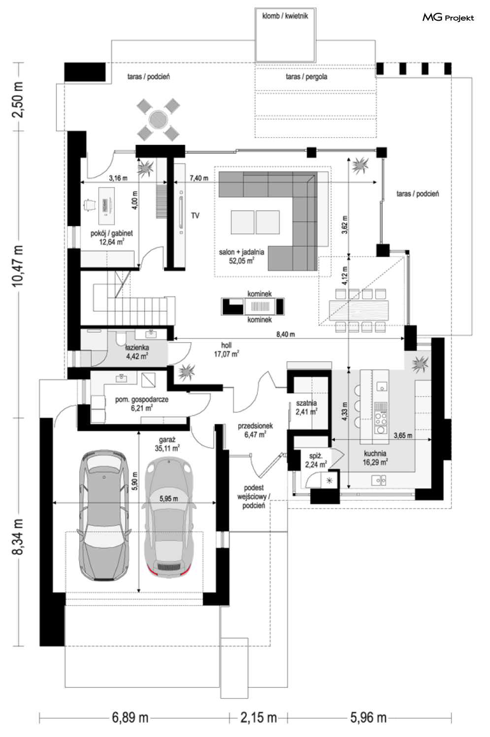
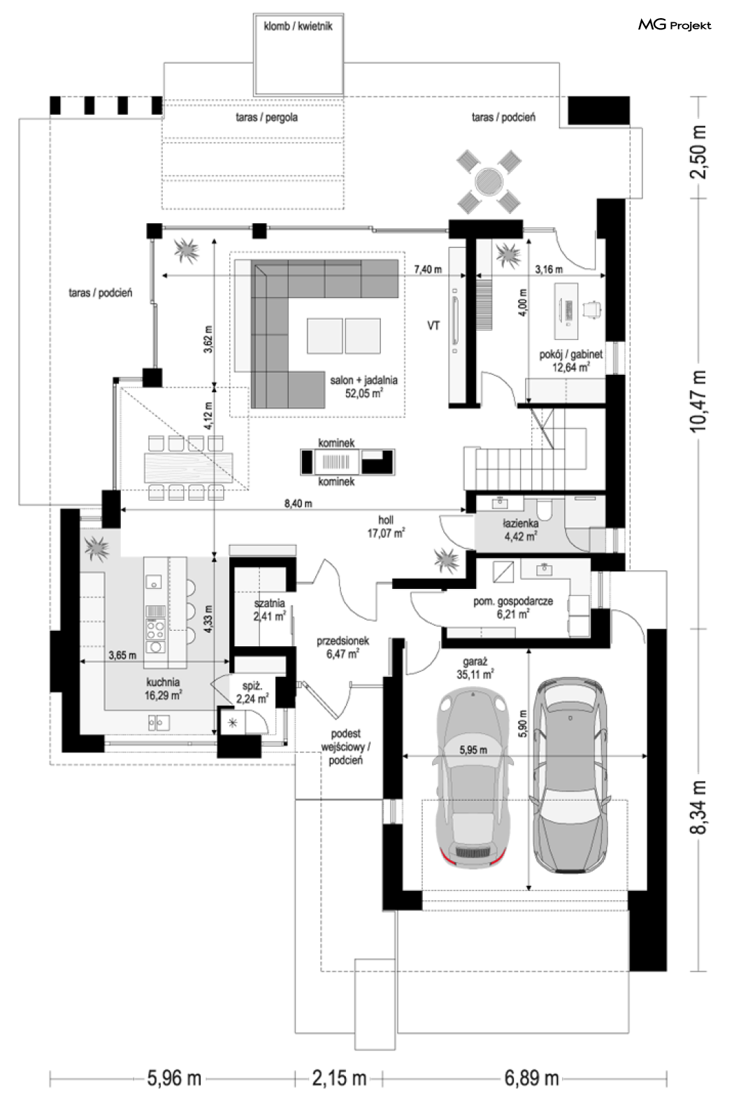
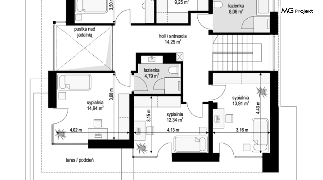
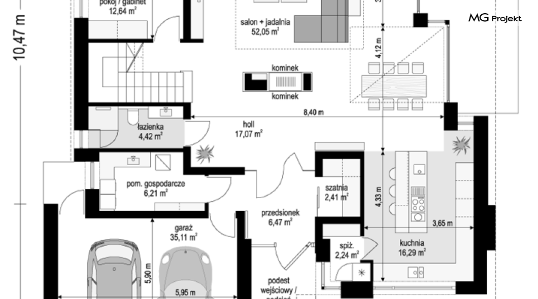
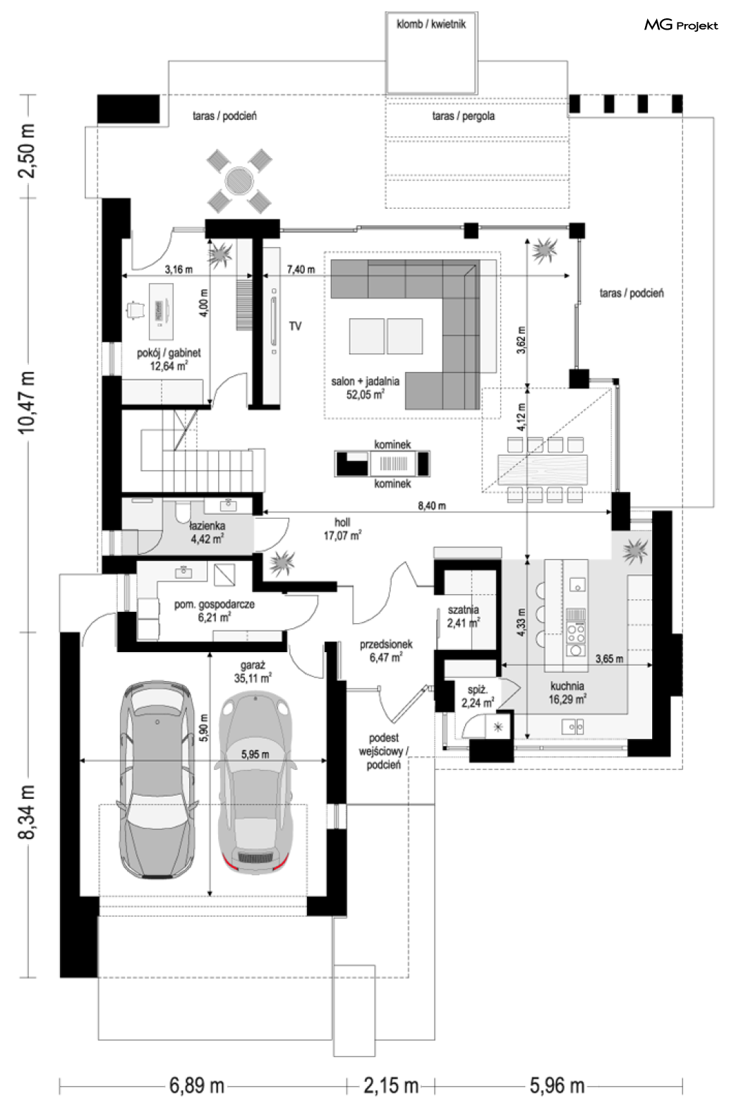
Projekt domu Willa Floryda 8 to kolejny projekt reprezentacyjnego domu piętrowego z serii „Willa Floryda”. Dom został zaprojektowany jako przestronna miejska willa, zbudowana na planie zbliżonym do kwadratu, z wystającą do przodu częścią garażową, dzięki czemu zmieści na węższej parceli - nawet o szerokości 21 metrów. Budynek łączy w sobie zwartą prostopadłościenną bryłę, komfortowe, reprezentacyjne wnętrze, oraz nowoczesną atrakcyjną architekturę z ciekawymi detalami. Willa Floryda 8 jest mniejszym budynkiem od podstawowych wariantów „Floryd”. Ma mniejszą powierzchnię, mniej rozciągnięty rzut, dzięki czemu budynek jest też mniej kosztowny. Układ funkcjonalny domu zbliżony jest do cieszącego się popularnością domu Willa Floryda 3, jednak zaproponowaliśmy tutaj zupełnie inną formę architektoniczną budynku. Podstawowy język detali został zachowany, jak podział fasad na poziome pasy, duże ilości przeszkleń, balkony i tarasy piętra, czy zwieńczenie budynku czterospadowym dachem z szerokim gzymsowaniem. Dodatkowo wprowadziliśmy kolejne architektoniczne smaczki. Przede wszystkim od strony ogrodu dodane zostały piękne zadaszenia części salonu, z przerwą tworzącą półzamknięte wewnętrzne patio, dające mieszkańcom przytulność i intymność. Przedłużenie sufitów parteru w podcieniach okalających tarasy, oraz szerokie przeszklenia między częścią dzienną, a tarasem wywołują efekt zatarcia granicy między wnętrzem domu a przestrzenią na zewnątrz. Wnętrze domu zaaranżowano łącząc poszczególne fragmenty przestrzeni dziennej ze sobą w taki sposób, aby pomieszczenia były duże, a równocześnie przytulne i odpowiednio wyskalowane. Pod względem układu funkcjonalnego wnętrza, dom podzielono na cześć dzienną i techniczno-garażową na parterze, oraz cześć z sypialniami na piętrze. Do budynku wchodzimy szerokim wejściem, z drzwiami z bocznym naświetlem, do wygodnego przedsionka z szatnią. Następnie przechodzimy do otwartego holu, oddzielonego od salonu dwustronnym ozdobnym kominkiem będącym centralnym akcentem całej przestrzeni dziennej. Na część dzienną składają się pomieszczenia salonu – z szeroką ścianą tv i dużym oknem, jadalnia z pustką sufitu i antresolą, oraz obszerna kuchnia z wyspą i spiżarnią. Dodatkowe pomieszczenia parteru to pokój-gabinet, łazienka, oraz garaż z kotłownią. Na piętrze znalazły się 4 sypialnie, w tym apartament master łazienką,garderobą i tarasem, oraz dwie dodatkowe łazienki. Wnętrze można oczywiście dowolnie modelować dostosowując do potrzeb konkretnej rodziny. Budynek zaprojektowano jako energooszczędny, z dobrymi izolacjami i nowoczesnymi instalacjami. Dom łączy w sobie nowoczesny wygląd z prostą konstrukcją i zwartą bryłą, dzięki czemu nie będzie trudny w budowie i powinien być niedrogi w późniejszej eksploatacji. Willa Floryda 8 to propozycja dla Inwestorów planujących budowę wyjątkowego domu dla siebie - wygodnej reprezentacyjnej willi o nowoczesnym stylu. Budynek będzie atrakcyjną oprawą i scenografią codziennego życia, podkreślającą dobry gust jego użytkowników. Dom stawiając Inwestorom wysoko poprzeczkę podczas budowy, odwdzięczy się ciesząc oko i karmiąc codziennie zmysły właścicieli, przyciągając jednocześnie spojrzenia sąsiadów i przechodniów. Willa Floryda 8 do dom dla Inwestorów chcących wyrazić siebie i zaznaczyć swoje przywiązanie do dobrego smaku i jakościowej architektury. Zapraszamy !
Zapraszamy do zapoznania się z pełną ofertą pracowni: Willa Floryda 2, Willa Floryda, Willa Floryda 3, Willa Floryda 4, Willa Floryda 5, Willa Floryda 6, Willa Floryda 7, Rezydencja Floryda, Rezydencja Floryda 2.
-
Projekt szamba szczelnego0 zł399 zł
-
Charakterystyka energetyczna0 zł200 zł
-
Pakiet energooszczędny0 zł150 zł
-
Dziennik budowy0 zł60 zł
-
Tablica budowy0 zł120 zł
-
Wersja elektroniczna projektu550 zł
-
Pakiet kosztorys inwestorski550 zł
-
Pakiet ogrzewanie podłogowe470 zł
-
Powietrzna pompa ciepła470 zł
-
Pakiet wentylacja mechaniczna i kominek DGP470 zł
-
Dodatkowy egzemplarz projektu500 zł
-
Pakiet kotłownia na paliwo stałe470 zł
-
Pakiet instalacja fotowoltaiczna470 zł
-
Pakiet klimatyzacja w domu470 zł
-
Pakiet gruntowa pompa ciepła470 zł
-
Pakiet odkurzacz centralny470 zł
-
Pakiet płaszcz wodny470 zł
-
Pakiet kominek DGP399 zł
-
Projekty altan i grillów ogrodowych650 zł
-
Pakiet instalacja solarna470 zł

opieką konsultacyjną w trakcie budowy domu