Willa Parkowa 10







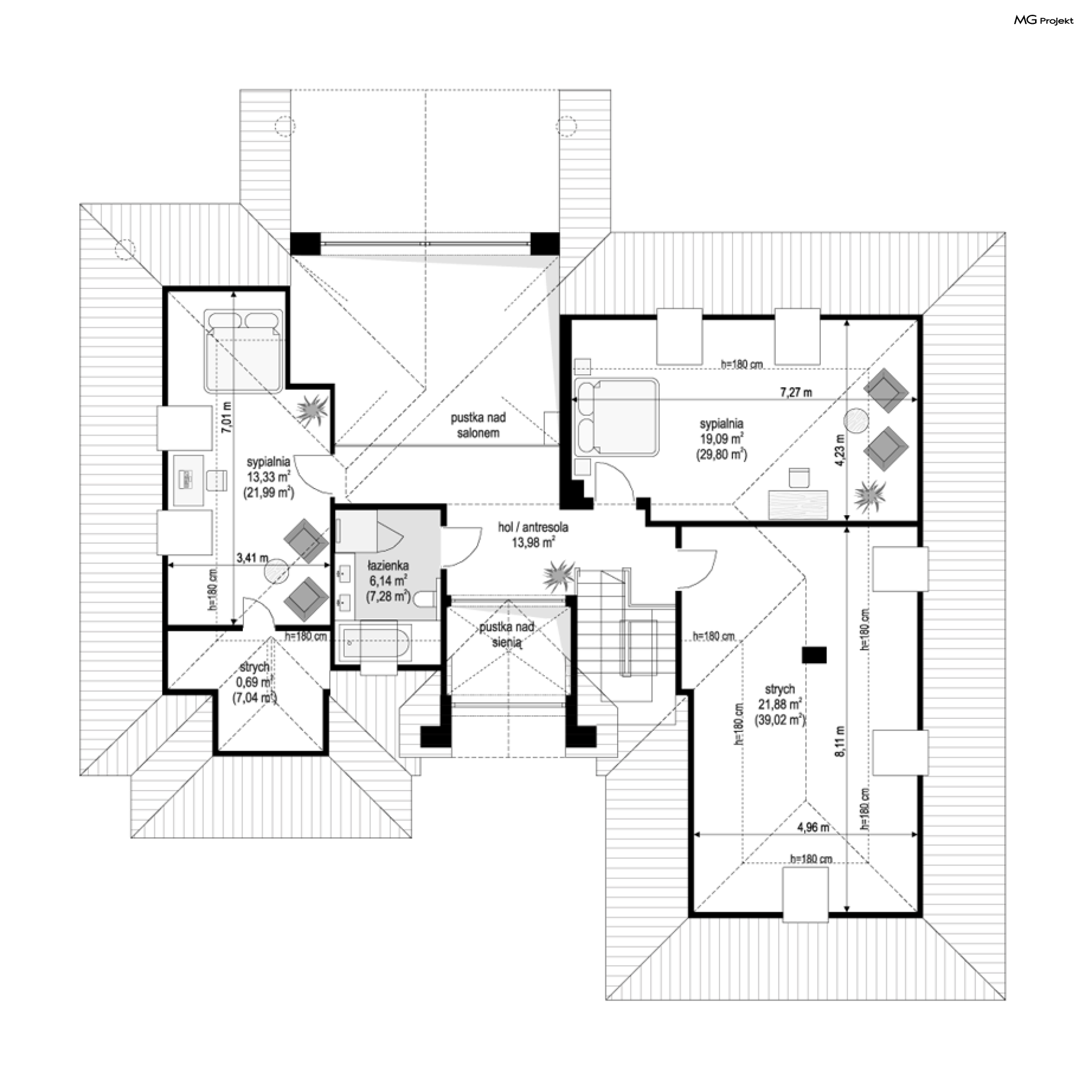
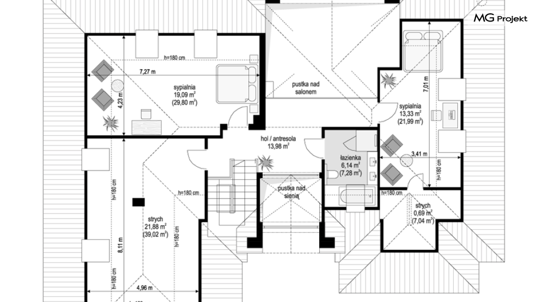
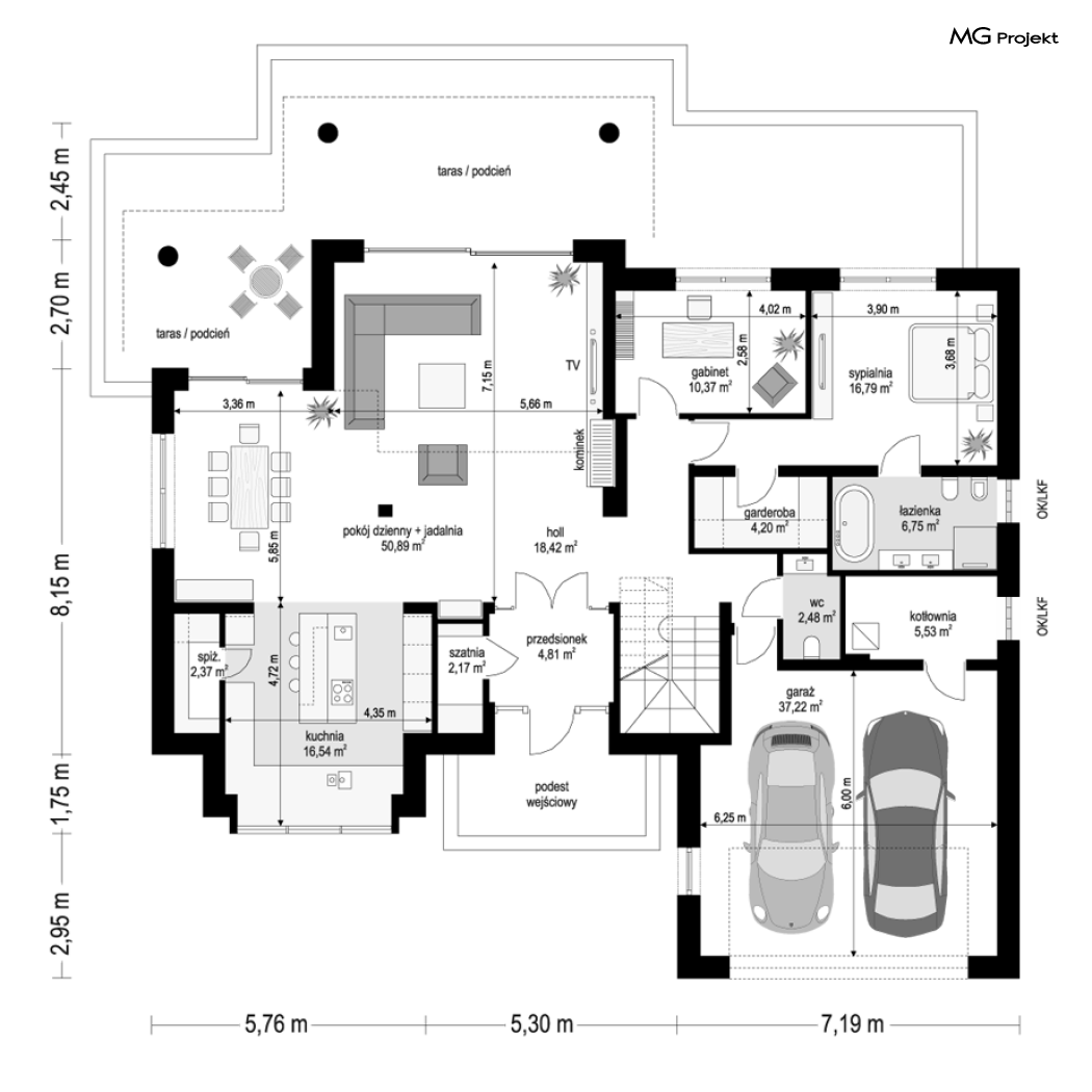
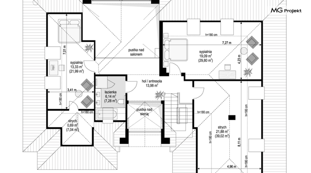
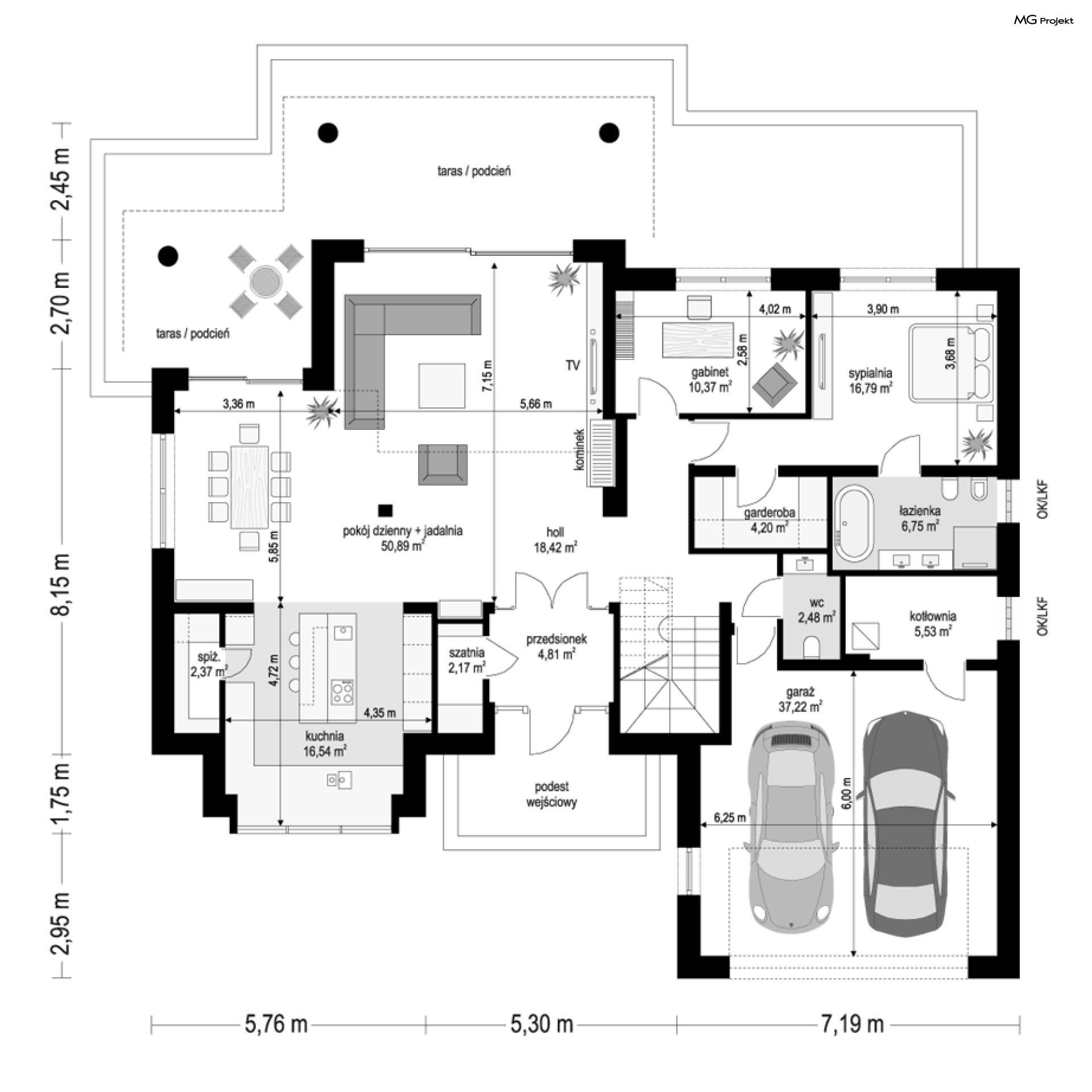
Projekt domu Willa Parkowa 10 jest kolejną wersją projektu z cieszącej się uznaniem serii domów : „Willa Parkowa”. Jest to projekt parterowego domu jednorodzinnego z poddaszem użytkowym, zbudowanego na planie prostokąta, z dobudowanymi częściami garażu i wystających salonu i kuchni. Całość bryły budynku przykrywa wielospadowy dach kryty dachówką ceramiczną. Willa Parkowa 10 stanowi połączenie funkcjonalnej nowoczesnej willi o komfortowym wnętrzu, z klasyczną dworkowo-rezydencyjną architekturą. Budynek łączy w sobie detale stylistyczne charakterystyczne dla serii projektów „Parkowa”, ale jednocześnie jest zaprojektowany w inny sposób, z inną zasadą kształtowania wnętrza i zewnętrznych elewacji.Bryła domu jest tutaj bardziej zwarta i węższa, podwyższony dach o kącie 38 stopni mieści w sobie pełne poddasze użytkowe, część wejściowa, zakomponowana jest na środku elewacji, między dachem garażu i zadaszeniem kuchni. Wejście podkreślone podwyższonym, prawie dwukondygnacyjnym łukowym naświetlem, wygląda jeszcze bardziej reprezentacyjnie w stosunku do tradycyjnych portali w projektach „Parkowych” i przypomina swoim wyglądem wzory eleganckich portyków wejściowych amerykańskich rezydencji. Od strony ogrodowej tradycyjnie dla tej serii projektów dominuje wielkie okno salonu z łukowym naświetlem, skryte w dekoracyjnym zadaszeniu nad tarasem. Zadaszenie przesunięte jest bardziej na środek elewacji. Całość bryły domu wieńczy masywny wielospadowy dach przykryty dachówką ceramiczną. Bryła Willi Parkowej 10 jest nieco mniejsza od WP9 – o blisko 50 m2 biorąc pod uwagę powierzchnię całkowitą budynku. Wnętrze domu podzielono następująco : parter to cześć dzienna, oddzielny apartament master z dodatkowym drugim pokojem i garaż z pomieszczeniem technicznym. Poddasze to sypialnie dziecięce z łazienką i przestrzeń strychowa nad garażem. Do budynku wchodzimy przez piękny podwyższony westybul wejściowy, do holu i przestrzeni dziennej, składającej się z salonu, jadalni i częściowo otwartej kuchni. W salonie dominuje duże przeszklenie otwierające go na taras i ogród, oraz otwarcie sufitu na dach i antresolę na poddaszu. Po drugiej stronie domu znajdują się schody na poddasze, garaż i kotłownia, oraz oddzielna część master z sypialnią, łazienką, garderobą, wyjściem na taras i dodatkowym drugim pokojem. Na poddaszu przewidziano dwie duże sypialnie dziecięce, łazienkę, oraz strych /magazyn nad garażem, łatwo adaptowalny na dodatkowy pokój. Wnętrze domu zaprojektowano w taki sposób, aby łatwo można je było przystosować na przestrzeni lat do funkcjonowania rodziny w danym momencie - od małych dzieci, przez dzieci większe -nastoletnie, przez prawie dorosłe, aż do momentu gdy gospodarze zostają sami na swoich „włościach”. „Willa Parkowa 10” została zaprojektowana jako dom energooszczędny, z dobrej jakości materiałów, z dobrą izolacją termiczną i z nowoczesnymi instalacjami. Budynek mimo rozczłonkowanej bryły wykonano w tradycyjnej technologii, z rozwiązaniami spotykanymi na każdej budowie. Budowa domu nie powinna być problemem dla fachowego wykonawcy. Willa Parkowa 10 to bardzo dobra propozycja projektu dla Inwestorów planujących budowę komfortowego reprezentacyjnego domu o klasycznej ponadczasowej architekturze, wyróżniającego się spośród tysięcy domów bez wyrazu i stylu. Zapraszamy do obejrzenia wszystkich projektów domów z serii Willa Parkowa: https://www.mgprojekt.com.pl/willa-parkowa, https://www.mgprojekt.com.pl/willa-parkowa-2, https://www.mgprojekt.com.pl/willa-parkowa-3, https://www.mgprojekt.com.pl/willa-parkowa-4, https://www.mgprojekt.com.pl/willa-parkowa-5, https://www.mgprojekt.com.pl/willa-parkowa-6, https://www.mgprojekt.com.pl/willa-parkowa-6-d, https://www.mgprojekt.com.pl/willa-parkowa-7, https://www.mgprojekt.com.pl/willa-parkowa-8-a, https://www.mgprojekt.com.pl/willa-parkowa-8-b, https://www.mgprojekt.com.pl/willa-parkowa-9, https://www.mgprojekt.com.pl/willa-parkowa-10, https://www.mgprojekt.com.pl/willa-parkowa-b, https://www.mgprojekt.com.pl/willa-parkowa-c, https://www.mgprojekt.com.pl/willa-parkowa-d.
-
Projekt szamba szczelnego0 zł399 zł
-
Charakterystyka energetyczna0 zł200 zł
-
Pakiet energooszczędny0 zł150 zł
-
Dziennik budowy0 zł60 zł
-
Tablica budowy0 zł120 zł
-
Wersja elektroniczna projektu550 zł
-
Pakiet kosztorys inwestorski550 zł
-
Pakiet ogrzewanie podłogowe470 zł
-
Powietrzna pompa ciepła470 zł
-
Pakiet wentylacja mechaniczna i kominek DGP470 zł
-
Dodatkowy egzemplarz projektu500 zł
-
Pakiet kotłownia na paliwo stałe470 zł
-
Pakiet instalacja fotowoltaiczna470 zł
-
Pakiet klimatyzacja w domu470 zł
-
Pakiet gruntowa pompa ciepła470 zł
-
Pakiet odkurzacz centralny470 zł
-
Pakiet płaszcz wodny470 zł
-
Pakiet kominek DGP399 zł
-
Projekty altan i grillów ogrodowych650 zł
-
Pakiet instalacja solarna470 zł

opieką konsultacyjną w trakcie budowy domu