Jaś







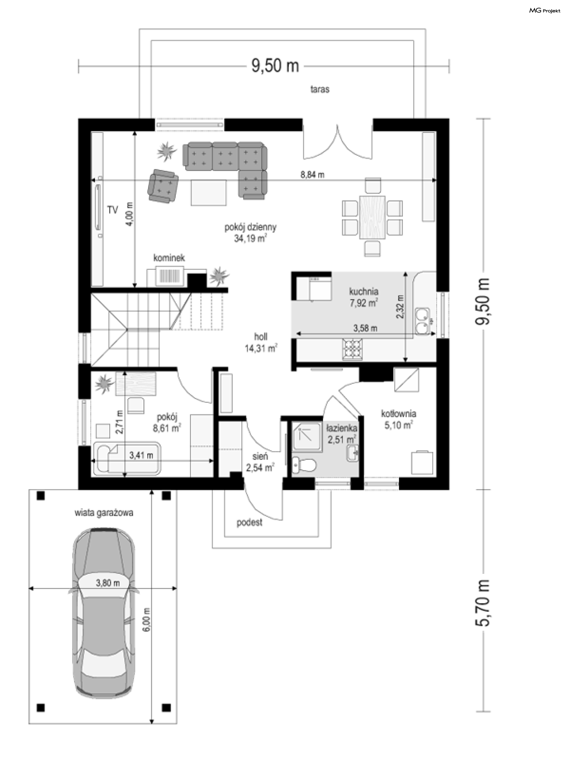
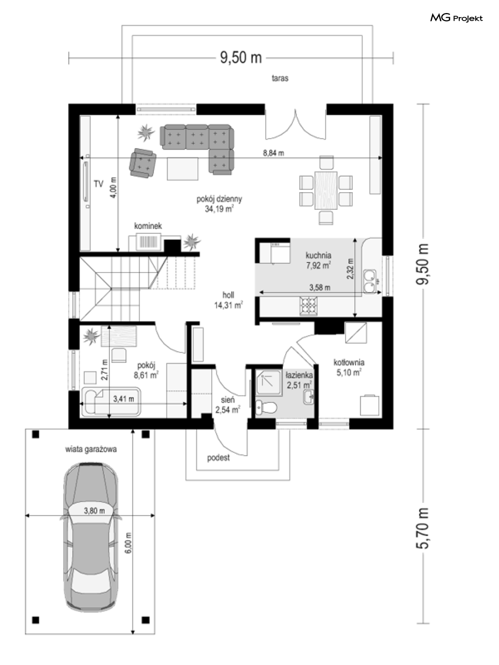
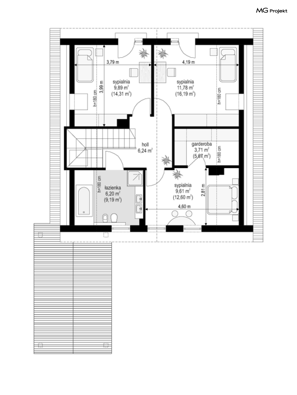
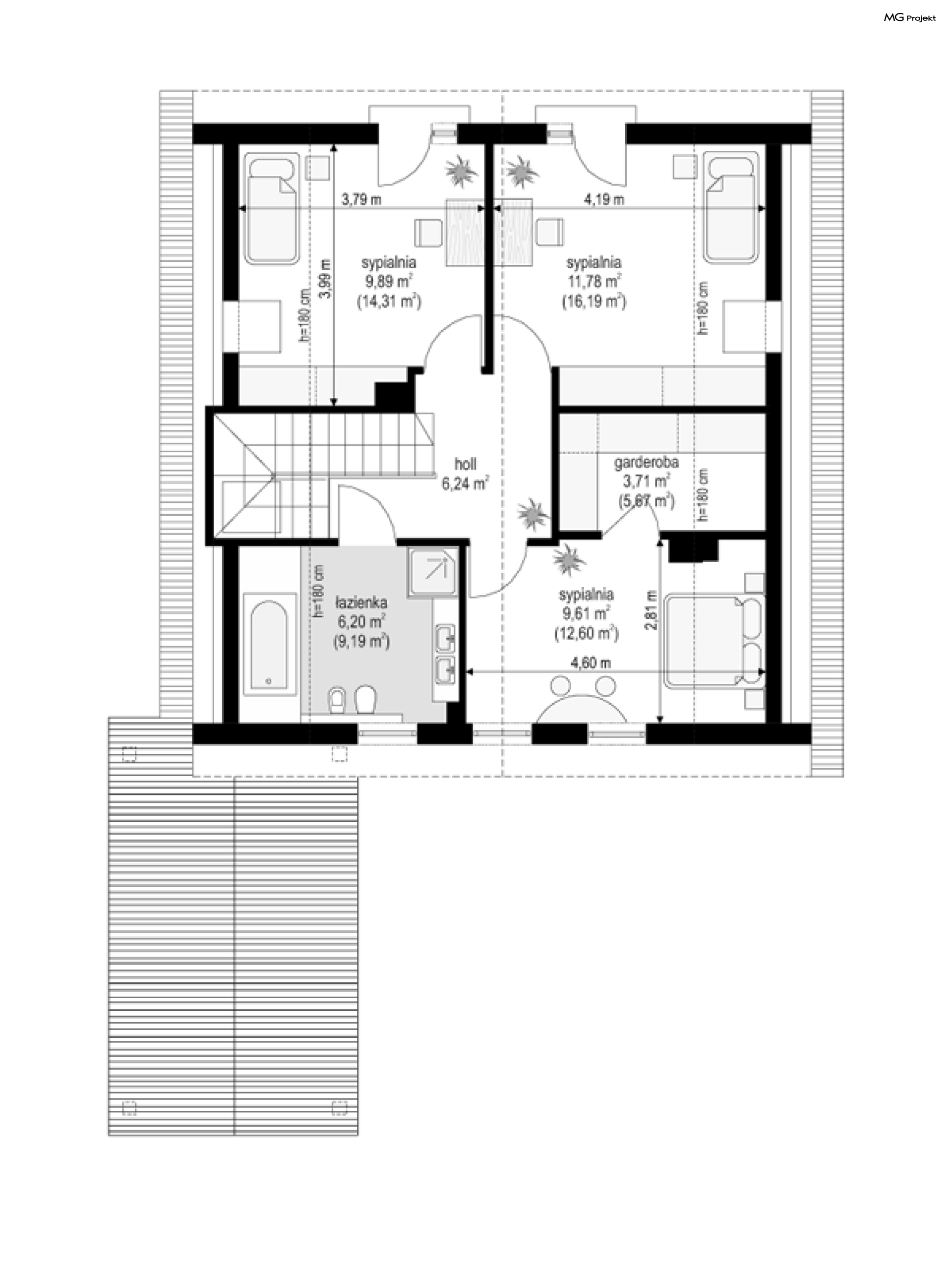
Projekt domu Jaś to parterowy dom jednorodzinny z poddaszem użytkowym, dla rodziny cztero-sześcioosobowej. Domek zbudowany na planie kwadratu 9,5x9,5 m, przekryty dwuspadowym dachem, z dobudowaną wiatą garażową. Istotą projektu jest prostota bryły w połączeniu z dobrze dobranymi proporcjami i ciekawym detalem. Budynek zaprojektowano w technologii murowanej. Wnętrze domu Jaś podzielono na dzienną część na parterze i sypialnie na poddaszu. Na dole, prócz dużego salonu z aneksem jadalnym, holu i półotwartej kuchni, zaprojektowano dodatkowy pokój - gabinet lub sypialnię, wc z natryskiem, oraz kotłownię. Na poddaszu przewidziano przewidziano trzy wygodne sypialnie i dużą łazienkę. Sypialnia rodziców ma dodatkowo garderobę. W sypialniach dzieci są wbudowane szafy. Przed domem, od frontu zaprojektowano dodatkowo wiatę garażową, którą dość łatwo można zamienić - w razie potrzeby - na garaż. Dom ma prostą konstrukcję, jest łatwy w budowie i będzie niedrogi w późniejszej eksploatacji. Pracownia posiada wersję ze stropem Teriva oraz odbicie lustrzane projektu domu Jaś.

