Komfortowy







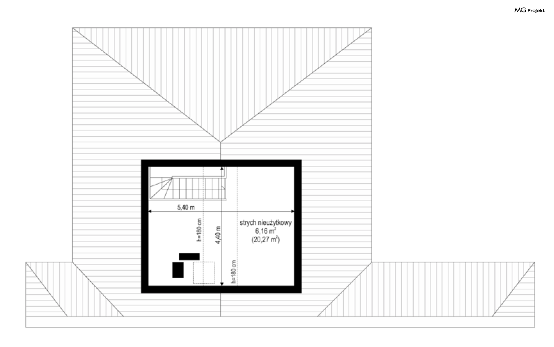
Projekt domu Komfortowy to duży, rozległy dom dla rodziny 4-6 osobowej. Zaprojektowany został z myślą o osobach uwielbiających kontakt z działką, nieznoszących biegania po schodach. Projekt domu Komfortowy posiada rzut parteru o rozbudowanym programie użytkowym, składającym się z części dziennej, części prywatnej z sypialniami i gospodarczej z garażem dwustanowiskowym. Dom ma atrakcyjny wygląd z każdej strony. Mimo sporej powierzchni dzięki rozczłonkowaniu brył nie stwarza wrażenia bardzo dużego od zewnątrz. Istnieje możliwość częściowego zagospodarowania poddasza, oraz podwyższenia sufitu nad salonem. Pracownia dysponuje także projektem domu Komfortowy w odbiciu lustrzanym. Zapraszamy do zapoznania się z innymi projektami domów: projekt domu Komfortowy, projekt domu Komfortowy 2, projekt domu Komfortowy 3.
