Parterowy 2







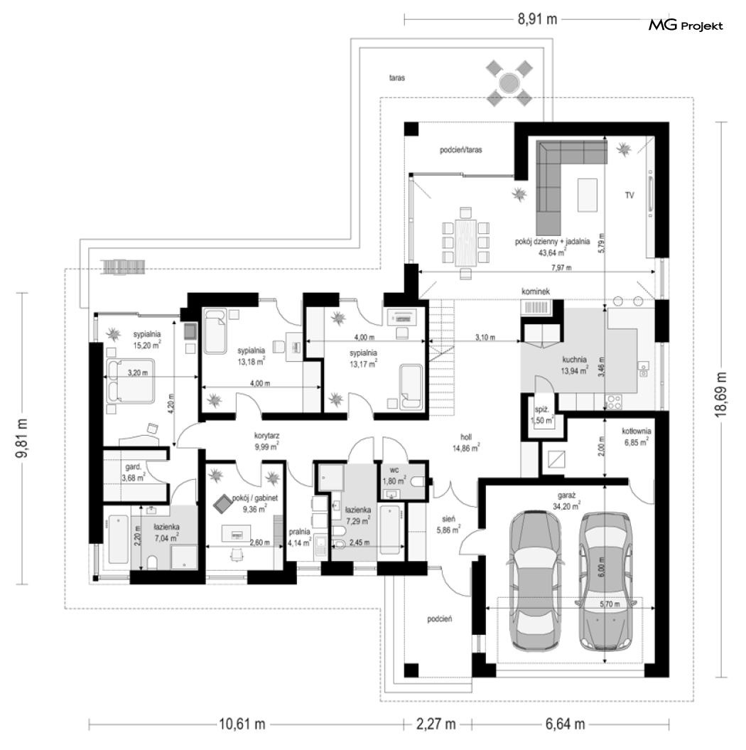
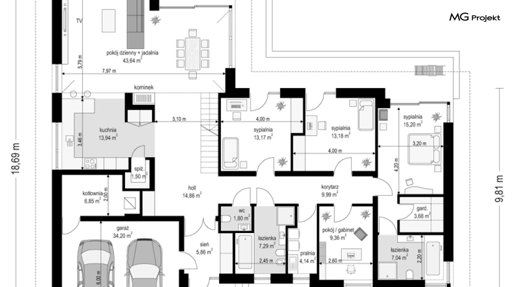
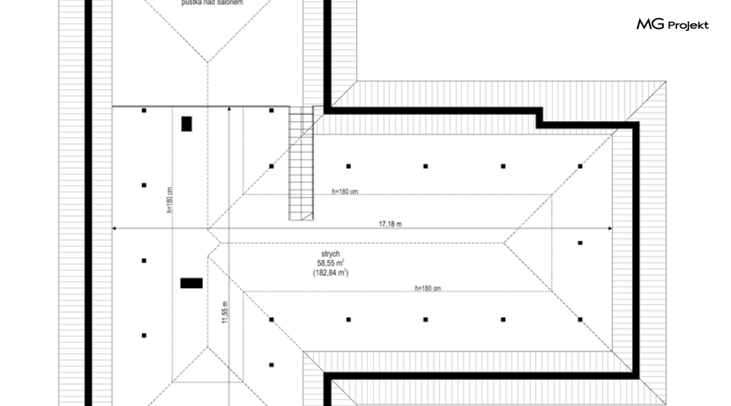
Projekt domu Parterowy 2 to nieco powiększona wersja projektu „Parterowy”. Jest to dom dla czero-pięciosobowej rodziny, jednokondygnacyjny, ze wszystkimi pomieszczeniami dziennymi na parterze, zbudowany na planie litery T”, przykryty łagodnym wielospadowym dachem. Projekt domu Parterowy 2 przeznaczony jest dla inwestorów mających luksus odpowiednio dużej działki, na której mogą sobie pozwolić na parterowy domek. W zamian otrzymują komfortowy bungalow, z pomieszczeniami na jednym poziomie, z bezpośrednim kontaktem z otaczającym ogrodem. Wspaniałe miejsce do życia. Nowoczesna architektura tego „współczesnego dworku ;)” podkreślona została dużymi przeszkleniami okien, drewnianymi wstawkami elewacji, oraz narożnymi podcieniami - frontowym kryjącym podest wejściowy, oraz ogrodowym - przekrywającym częściowo taras. Kolorystyka budynku jest stonowana, harmonizująca z otaczającą dom zielenią. Dostojna sylwetka przywodzi na myśl komfort życia i wrażenie bezpretensjonalnego luksusu. Wnętrze domu jest równie ciekawe i atrakcyjne. Podzielone zostało na trzy funkcje, w trzech skrzydłach domu : gospodarczą, dzienną i nocną – z sypialniami. Części domu połączone są holem i przedsionkiem wejściowym. Do domu wchodzimy przez ładny przedsionek - w bok do dwustanowiskowego garażu (ze strychem - magazynem) i kotłowni, oraz na wprost, do części dziennej domu. Cześć dzienna składa się z holu, salonu z aneksem jadalnym i kuchnią. Nad salonem zaprojektowano antresolę ze schodkami i widokiem na pustkę nad pokojem dziennym. Na antresoli można urządzić dodatkową przestrzeń rekreacyjną. W środkowym miejscu salonu zaprojektowano ścianę kominkową, oddzielającą częściowo kuchnię od reszty powierzchni. Trzecia część to część prywatna domowników, z apartamentem rodziców, z własną łazienką i garderobą, dwiema sypialniami dzieci z szafami wbudowanymi i własną łazienką, z gabinetem z oknem na front domu, oraz pralnią i dodatkowym wc. Nad tą częścią jest jeszcze dodatkowy strych, dostępny z antresoli nad salonem. Dom ma w sumie prostą konstrukcję i jest łatwy w budowie. Mimo rozłożystej bryły będzie niedrogi w realizacji i późniejszym użytkowaniu. Projekt domu Parterowy 2 to doskonała propozycja dla osób planujących budowę wygodnego, jednokondygnacyjnego domu. Dla osób marzących o komforcie przestrzeni i kontakcie z otaczającym dom ogrodem. Zapraszamy do zapoznania się z pełną ofertą pracowni MG Projekt: Parterowy, Parterowy 3, Parterowy 4.

