Doskonały 2 C







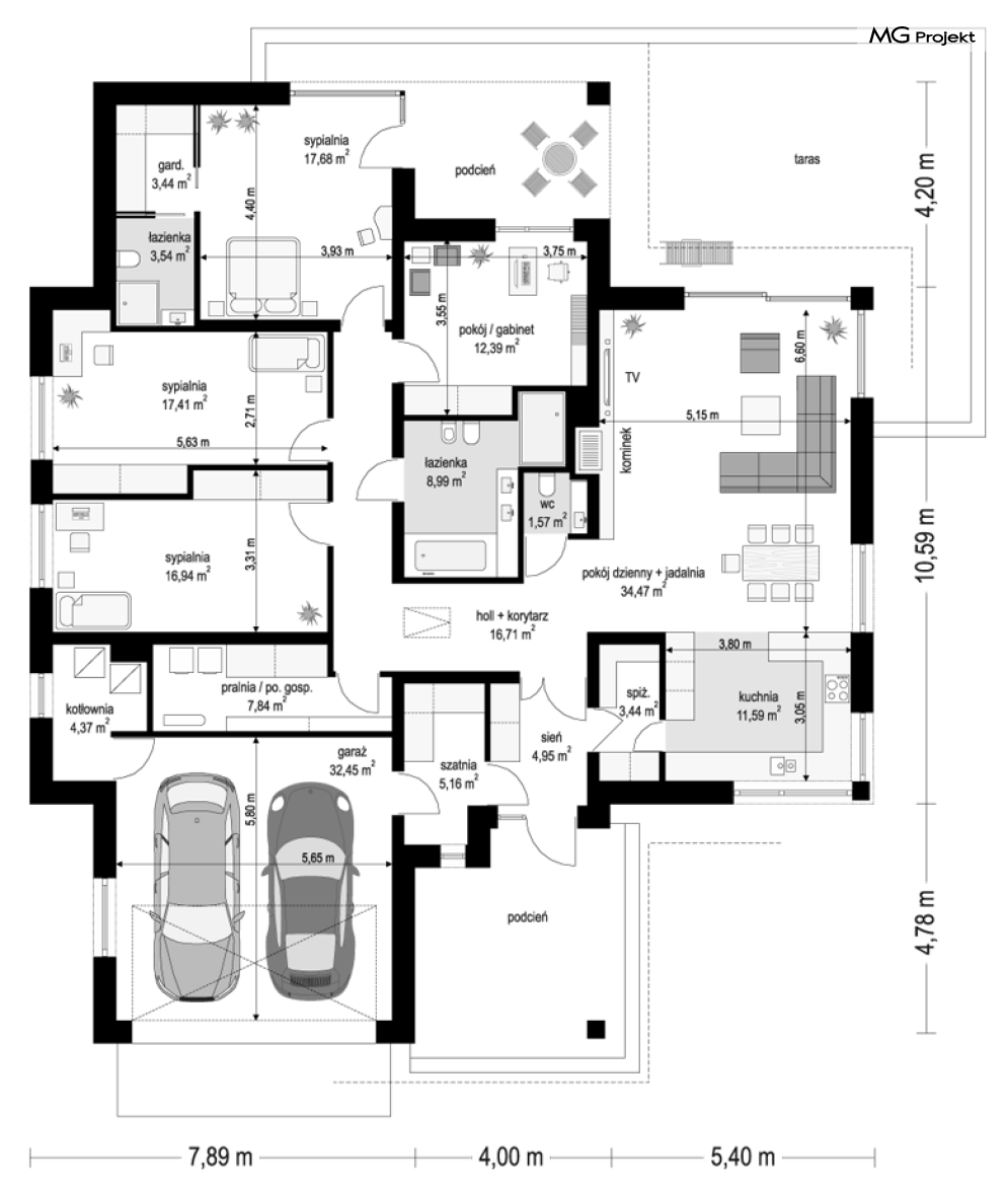
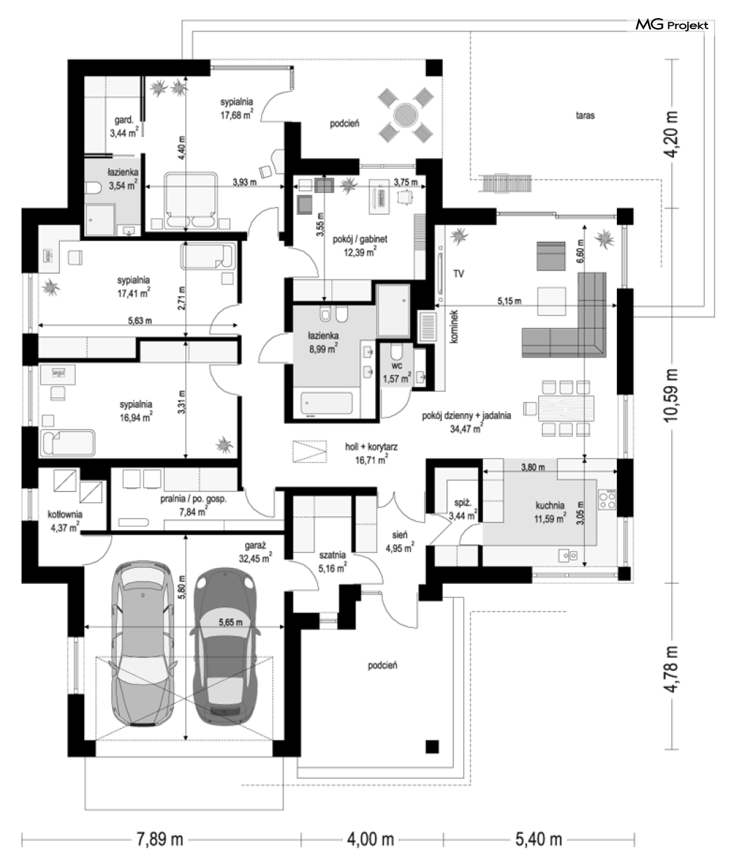
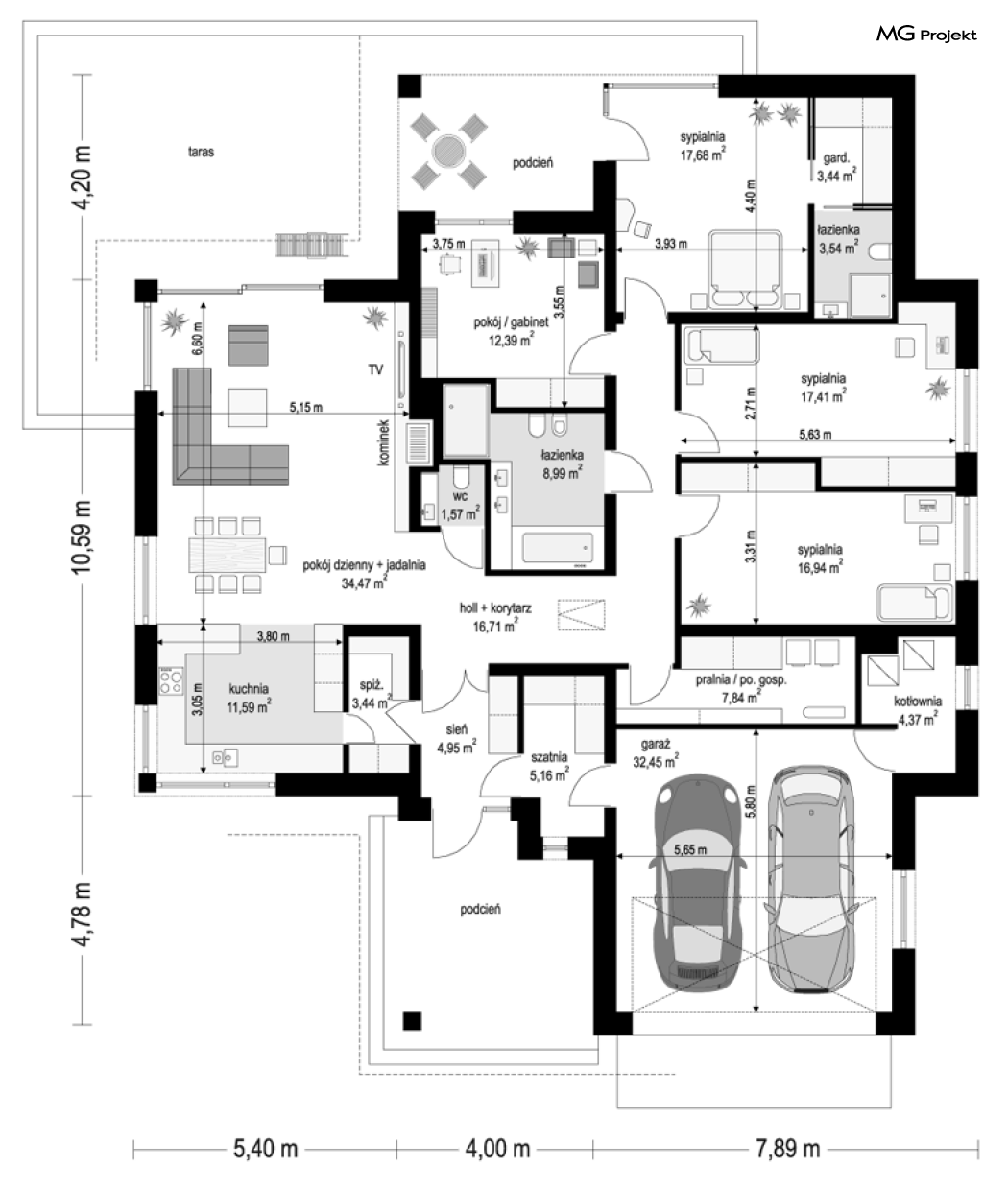
Projekt domu Doskonały 2 C jest kolejną wersją wariantową z popularnej serii domów „Doskonałych”. Jest to projektu parterowego domu, przykrytego wielospadowym dachem, ze strychem do dowolnego wykorzystania. Dom zbudowano na planie krzyża z główną bryłą o kalenicy ustawionej równolegle do elewacji frontowej. Dom przeznaczony jest dla 4-5 osobowej rodziny. Doskonały 2 C różni się od bazowego modelu domu z tej serii projektów większą powierzchnią użytkową, dzięki czemu udało się zaprojektować większe pokoje sypialne dzieci, oraz przewidziano więcej przydatnej powierzchni techniczno–gospodarczej. Domek zaprojektowano jako rozłożystą parterową bryłę, z garażem i podcieniem wejściowym od frontu, oraz podcieniem ogrodowym przykrywającym częściowo taras od tyłu domu. Szerokie przeszklenia okien, kontrastowe okładziny ścian, i fragmenty elewacji wykończone drewnem nadają bryle dodatkowej atrakcyjności. Szerokie okapy z białą podbitką z płyt z gzymsem i krytą rynną wyróżniają dom oryginalnym detalem. Front domu ujmuje swoją bezpretensjonalną elegancją. Reprezentacyjne drzwi wejściowe z naświetlami zapraszają do wnętrza. Z kolei elewacja od strony ogrodu narożne przeszklenia salonu i sypialni głównej otwierają wnętrze na taras i ogród. Cały program użytkowy domu został przewidziany na parterze domu - wszystkie pomieszczenia części dziennej, sypialnie, oraz pomieszczenia gospodarcze i garaż. Strych do adaptacji na dodatkowe poddasze stanowi możliwą opcję - dodatek do i tak pięknego wnętrza na parterze. Z wygodnego przedsionka dostajemy się do holu i dalej do salonu. Z garażu możliwe jest przejście przez szatnię i spiżarnię wprost do kuchni. Takie połączenie ułatwia codzienny transport zakupów domowych. Z holu przechodzimy do otwartej części dziennej połączonych pomieszczeń salonu z jadalnią i kuchni. Duże przeszklenia narożne pokoju dziennego otwierają wnętrze dzienne na otaczający dom ogród, a piękne również narożne okno kuchenne pozwala obserwować front działki. W salonie zaprojektowano szeroką ścianę telewizyjno–kominkową na którą skierowane są meble wypoczynkowe. W strefie prywatnej domowników mamy sypialnię rodziców z garderobą i niewielką łazienką z prysznicem, dodatkowy pokój - np. gabinet, dwie duże sypialnie dzieci z wbudowanymi w ściany szafami, oraz dużą łazienkę i wc dostępne z holu. „Doskonały 2 C” to dom o stosunkowo prostej konstrukcji - niedrogi w budowie i późniejszym utrzymaniu. Do świetna propozycja dla osób marzących o parterowym wygodnym domu. Zapraszamy do zapoznania się z pełną ofertą pracowni MG Projekt: Doskonały i Doskonały 2.
