Willa Parterowa







Projekt domu Willa Parterowa to reprezentacyjny, parterowy dom jednorodzinny dla 4-5 osobowej rodziny. Projekt domu Willa Parterowa to prawdziwa komfortowa willa o nieprzeciętnej funkcjonalności przeznaczona dla Inwestorów zdecydowanych żyć na parterze - bez biegania po schodach.
Projekt domu Willa Parterowa
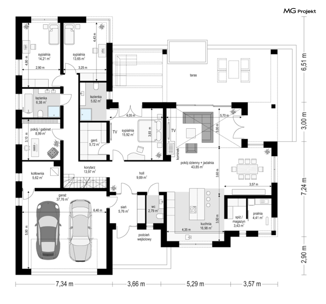
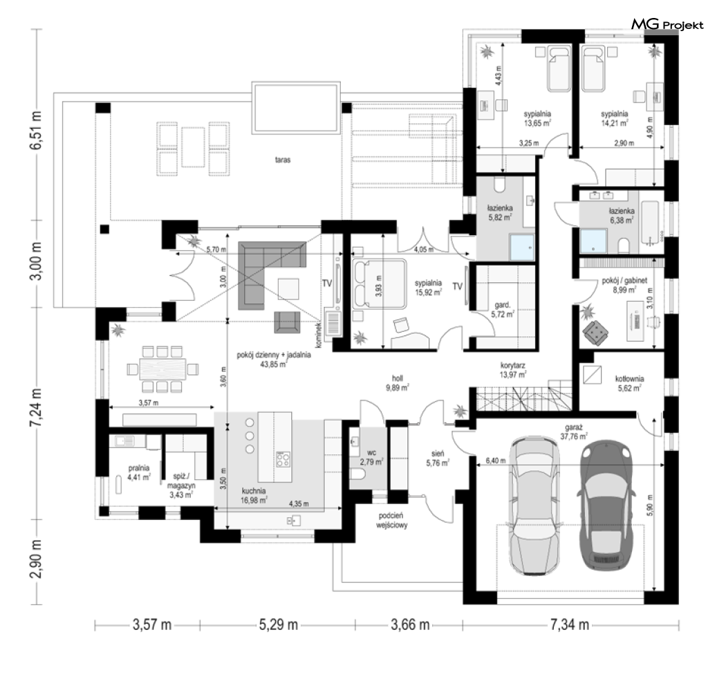
Dom jednorodzinny Willa Parterowa, mimo, że nie jest wielki i jego powierzchnia użytkowa to nieco ponad 170 m², zaprojektowano z amerykańskim rozmachem. Od samego wejścia Willa Parterowa wita nas szeroka efektowna elewacja frontowa, z pięknie zaakcentowanymi drzwiami wejściowymi. Od strony ogrodowej jest jeszcze lepiej - układająca się w literę "L" bryła domostwa z tarasem – z wewnętrznym patio, częściowym zadaszeniem oraz pergolą. Świetne miejsce na domowe przyjęcia, ale też na spokojny wieczorny relaks dla wszystkich domowników. Budynek Willa Parterowa zaprojektowaliśmy na planie litery "T", z główną prostokątną bryłą przykrytą czterospadowym dachem i dobudowanymi częściami dużego garażu i sypialni.
Wnętrze domu Willa Parterowa
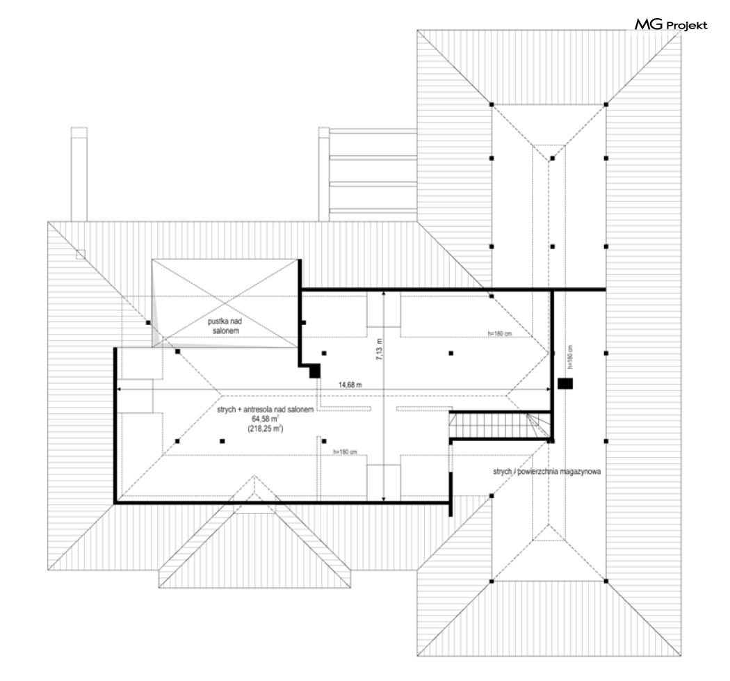
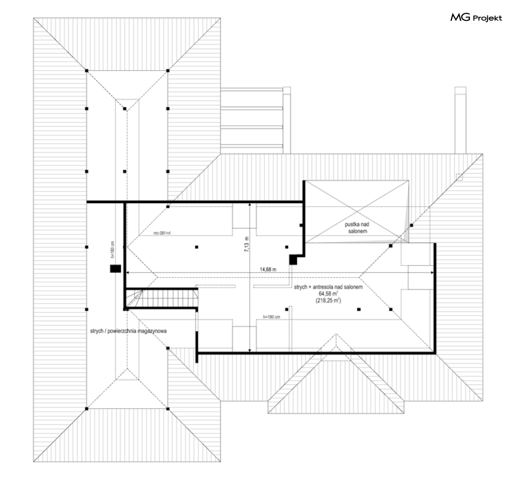
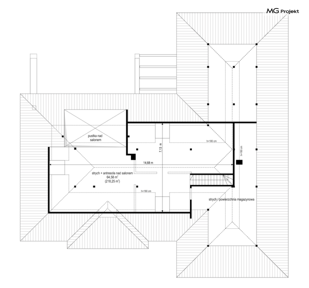
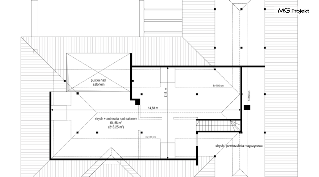
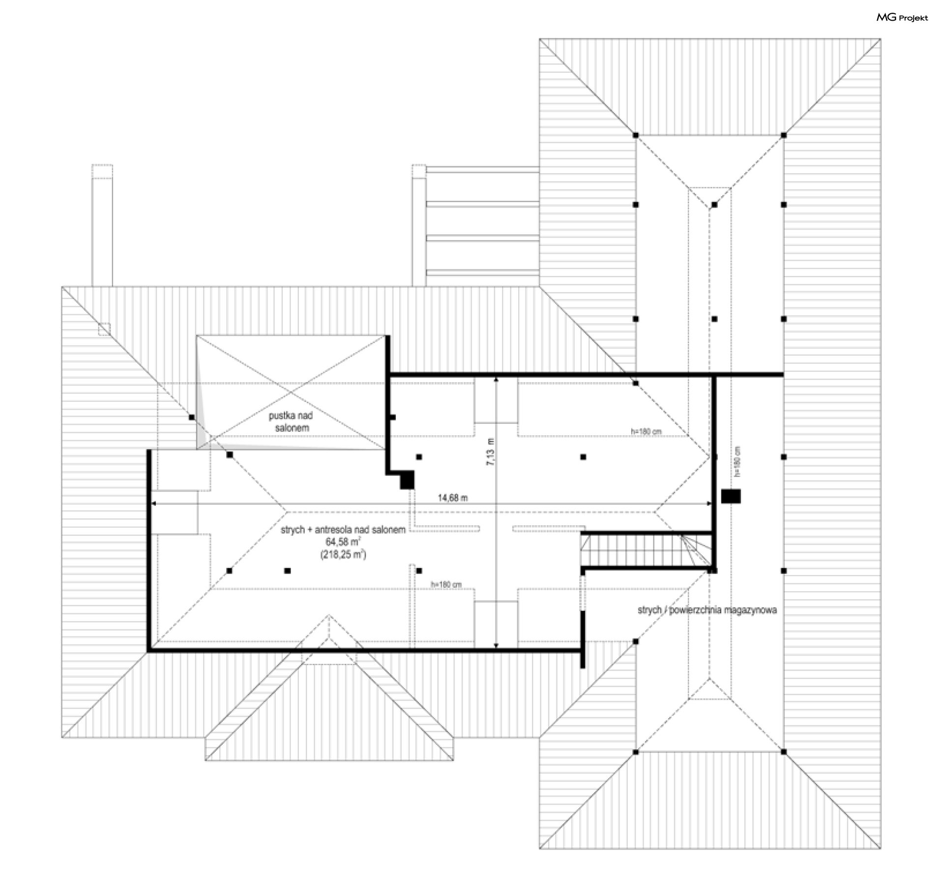
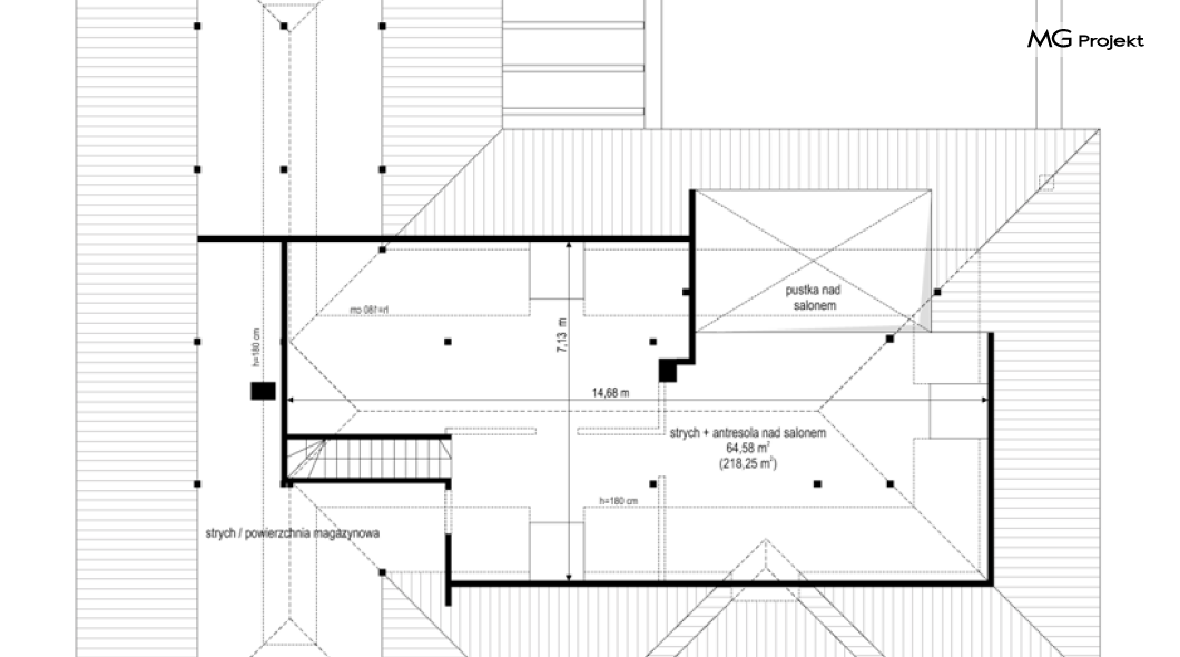
Styl Willi Parterowej to umiarkowana nowoczesność. Dzięki dużym przeszkleniom, kolorystyce i zastosowanym materiałom budowlanym dom Willa Parterowa wygląda nowocześnie, ale nie ekstrawagancko. Do wnętrza projektu Willa Parterowa wchodzimy przez przedsionek do holu i stamtąd w jedną stronę do części dziennej - z pięknym pokojem dziennym, jadalnią i kuchnią, a w drugą stronę do części nocnej domu. Salon ze ścianą kominkowo – telewizyjną połączony jest z tarasem szerokimi przesuwnymi przeszkleniami. Nad salonem projektu Willa Parterowa zaplanowano otwarcie przestrzenne – pustkę, dzięki której wnętrze domu wydaje się znacznie większe. W wersji domku z zagospodarowanym strychem na poddaszu zaplanowano powyżej balustradę i antresolę. W wersji budynku ze strychem nieużytkowym - po prostu pustkę nad salonem. W jadalni zaplanowano całą ścianę na kredens – rzadko spotykaną wygodę. W kuchni zaprojektowano dużą centralną wyspę, a obok kuchni pomieszczenia spiżarki i pralni - po amerykańsku, Pani domu ma pod ręką wszystkie urządzenia. W części nocnej domu mieści się apartament rodziców z garderobą i łazienką, dwie sypialnie dzieci z szafami wbudowanymi i łazienką, oraz dodatkowy pokój, który może być sypialnią albo gabinetem.
Projekt Willa Parterowa - część gospodarcza
W gotowym projekcie domu Willa Parterowa, od frontu domu przewidziano jeszcze duży garaż na dwa samochody i kotłownię. Strych budynku Willa Parterowa może pozostać przestrzenią nieużytkową - domowym magazynem rzeczy różnych, albo można go zaadaptować na powierzchnię użytkową, uzyskując tym samym dodatkowe 35 m².
Projekt domu Willa Parterowa - budowa
Gotowy projekt domu jednorodzinnego Willa Parterowa to dzięki optymalnie dobranym materiałom budowlanym i izolacji budynek energooszczędny. Dzięki temu będzie niedrogi w użytkowaniu przez domowników. Konstrukcja domu Willa Parterowa jest nieskomplikowana, więc koszty budowy domu Willa Parterowa są niskie. Projekt Willa Parterowa to świetna propozycja dla Inwestorów marzących o kontakcie z ogrodem i przyrodą, o komfortowym domostwie na jednej podłodze - bez chodzenia po schodach. Z pewnością dom jednorodzinny Willa Parterowa przeznaczony jest dla osób mających trochę większą działkę o wymiarach min 24,75x24,84m i powierzchni minimum 700-800 m².
W ofercie pracowni MGProjekt dostępna jest również wersja projektu domu Willa Parterowa w odbiciu lustrzanym, oraz wariantowe wersje tego projektu domu. Zapraszamy do zapoznania się z pełną ofertą pracowni MG Projekt: https://www.mgprojekt.com.pl/willa-parterowa, https://www.mgprojekt.com.pl/willa-parterowa-2, https://www.mgprojekt.com.pl/willa-parterowa-2-wariant-b, https://www.mgprojekt.com.pl/willa-parterowa-2-wariant-c, https://www.mgprojekt.com.pl/willa-parterowa-2-wariant-d, https://www.mgprojekt.com.pl/willa-parterowa-3, https://www.mgprojekt.com.pl/willa-parterowa-3-wariant-b, https://www.mgprojekt.com.pl/willa-parterowa-4, https://www.mgprojekt.com.pl/willa-parterowa-4-wariant-b, https://www.mgprojekt.com.pl/willa-parterowa-wariant-b, https://www.mgprojekt.com.pl/willa-parterowa-wariant-c, https://www.mgprojekt.com.pl/willa-parterowa-wariant-d, https://www.mgprojekt.com.pl/willa-parterowa-wariant-e.

