Pod dębem







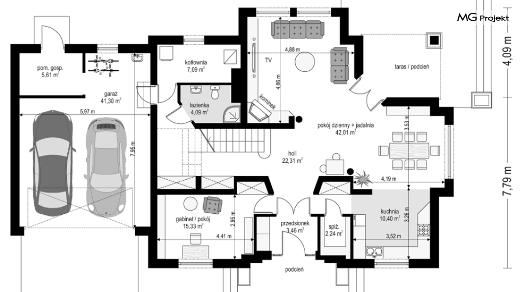
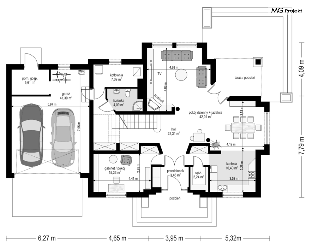
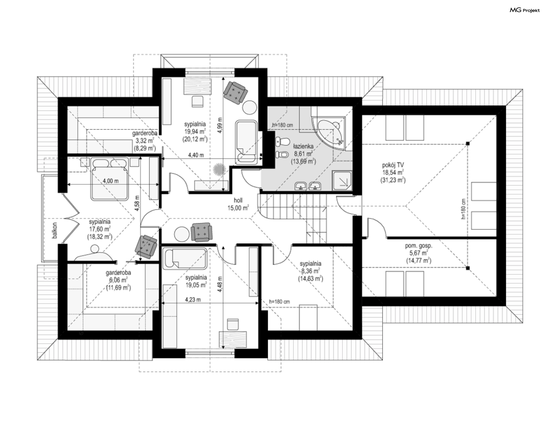
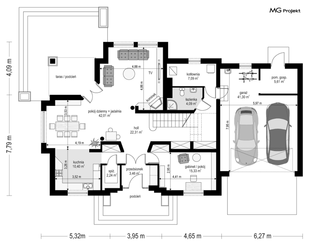
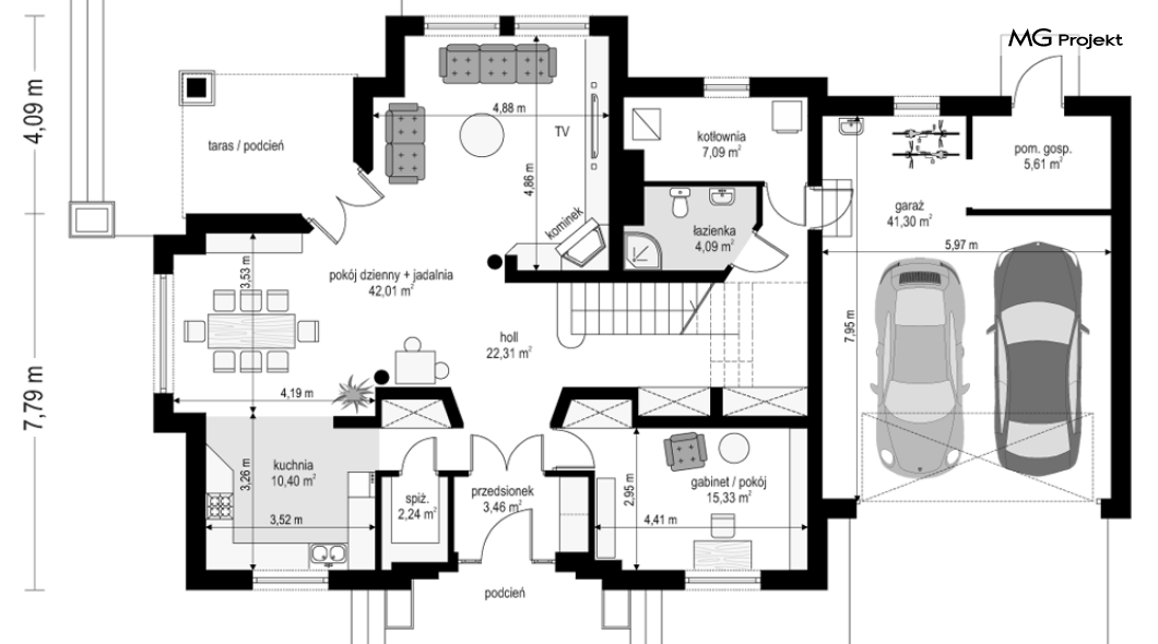
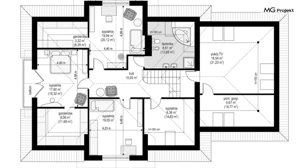
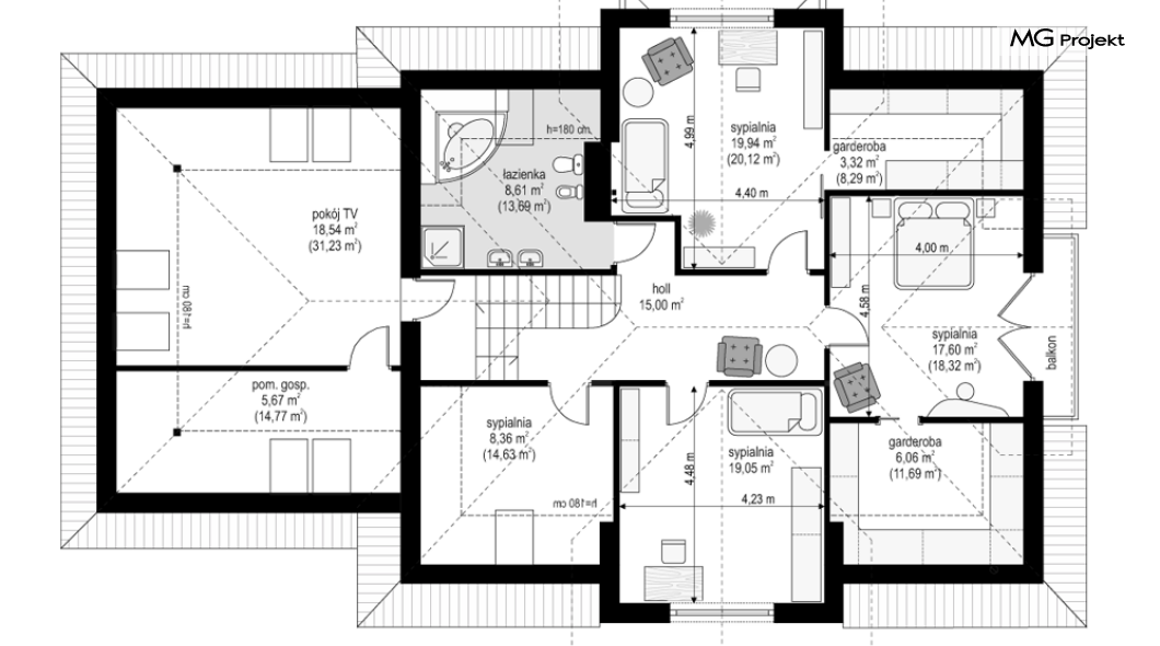
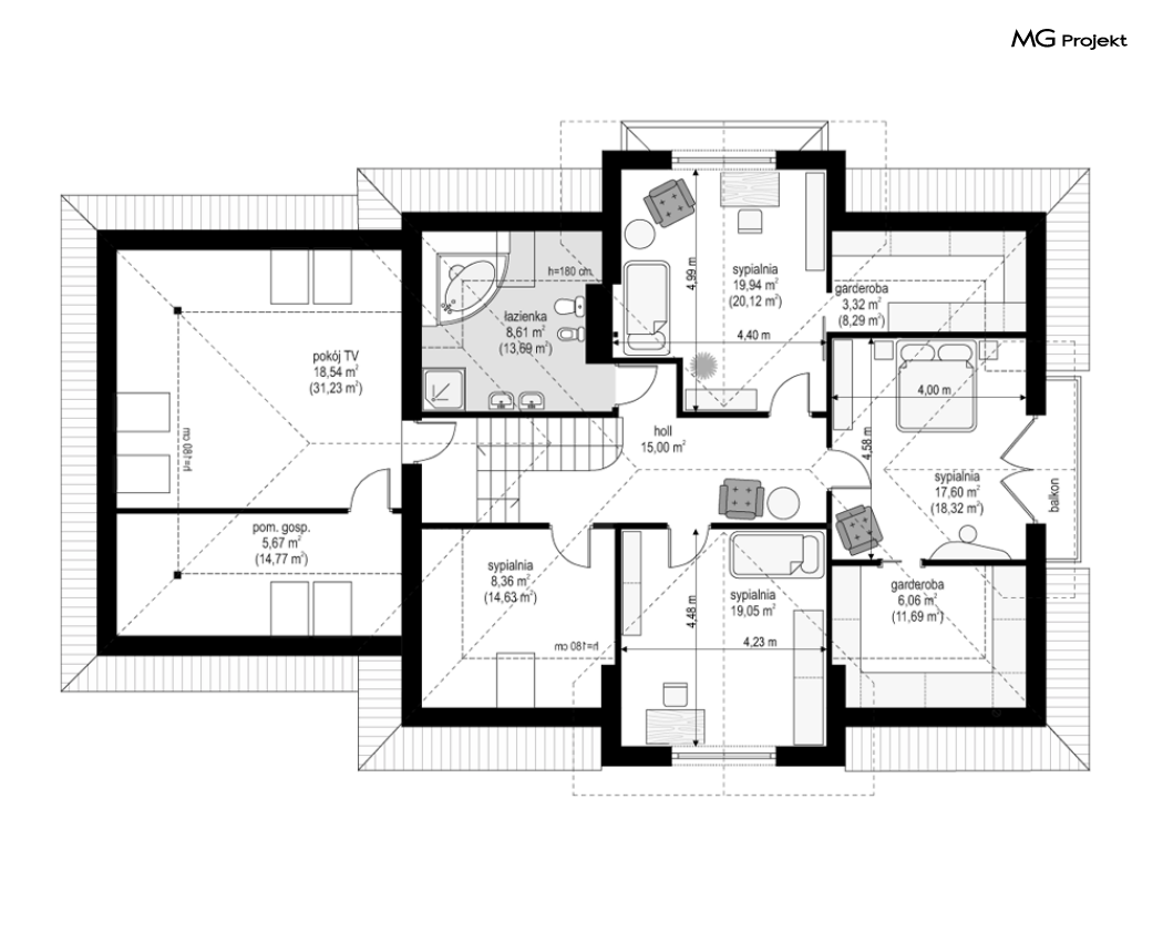
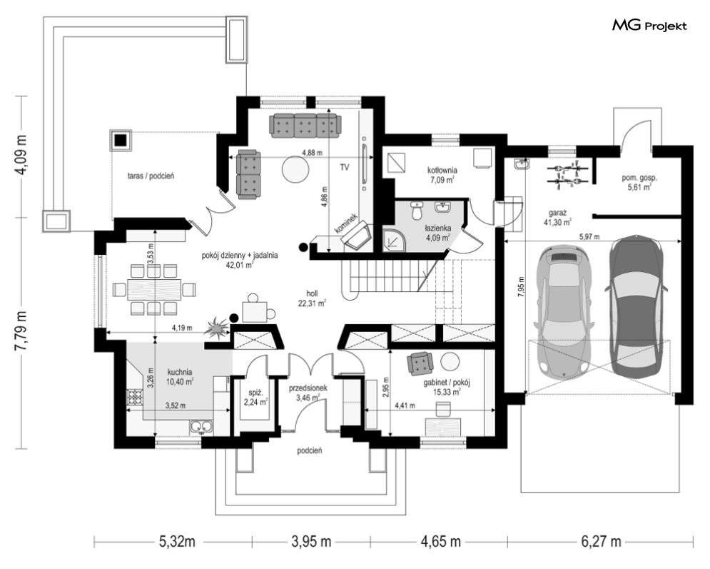
Projekt domu Pod dębem to obszerny parterowa willa z poddaszem użytkowym. Przeznaczony jest dla 4-5 cioosobowej rodziny. Bryła budynku przekrytazostała czterospadowym dachem z dużymi lukarnami na każdej z elewacji sprawia, że dom wygląda atrakcyjnie z każdej strony. Wygląd zewnętrzny urozmaicono wykuszami, balkonem oraz podcieniem ogrodowym. Front budynku Pod dębem spodoba się Klientom ceniącym tradycyjną architekturę, ale nie koniecznie chcącym mieć kolumny przy wejściu do swojego domu. Wnętrze parteru to połączona przestrzeń holu, salonu, jadalni i kuchni, oraz dodatkowy pokój. Na poddaszu zaprojektowano cztery pokoje, oraz strych nad garażem, który można dowolnie wykorzystać. Projekt domu Pod Dębem dostępny jest też w odbiciu lustrzanym.
