Praktyczny B







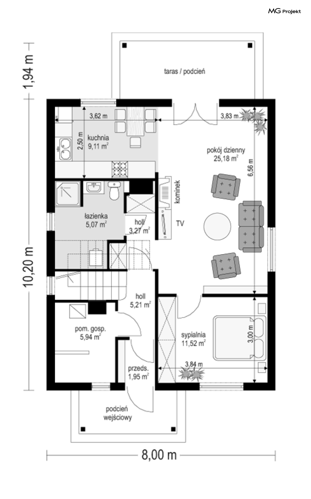
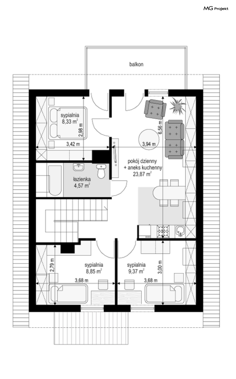
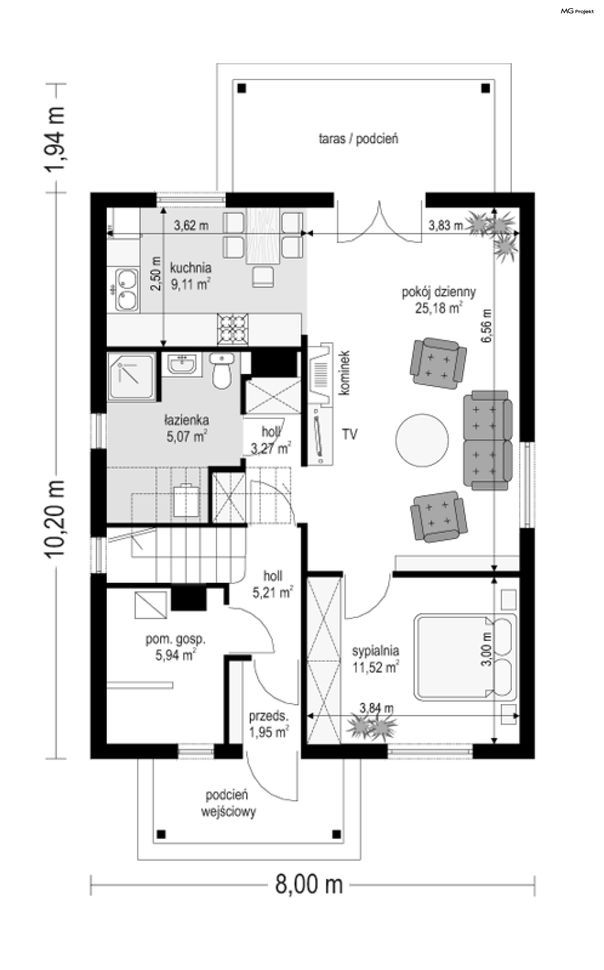
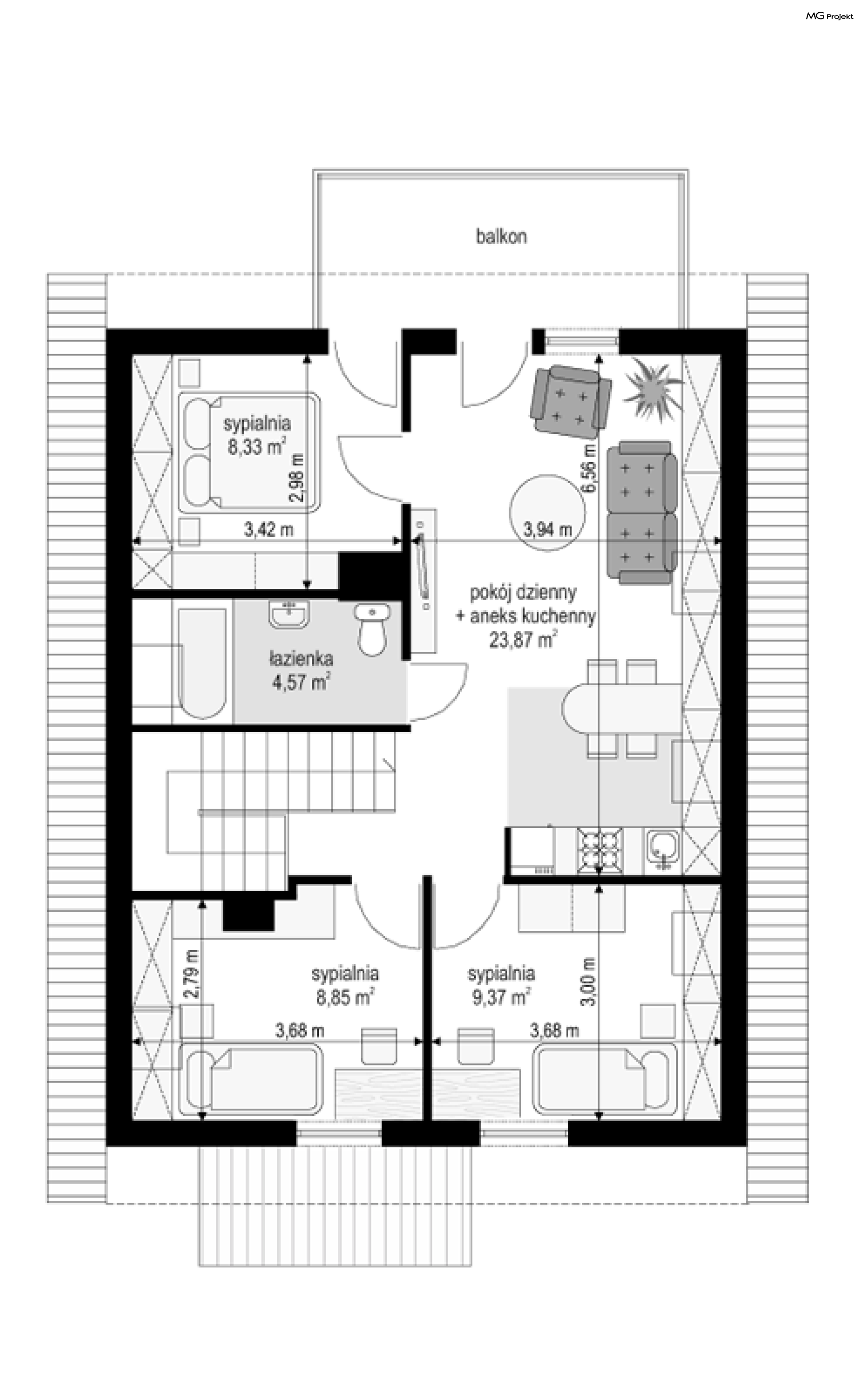
Projekt domu Praktyczny B to niewielki domek jednorodzinny dla czteroosobowej rodziny. Parterowy budynek z poddaszem użytkowym. Ten sam projekt przedstawiamy w dwóch wersjach wariantowych - jako dom jednorodzinne dla jednej rodziny, oraz jako dom dwulokalowy - z wydzielonymi dwoma mieszkaniami na parterze i na poddaszu. Prezentowana wersja projektu domu to budynek dwulokalowy - pomyślany w szczególności o rodzinach mieszkających razem, na przekład trzypokoleniowych. Mieszczanie dolne zajmować może wówczas główna rodzina, na górze może natomiast mieszkać dorosłe dziecko ze swoją rodziną. Dom Praktyczny B jest prosty w budowie, ma nieskomplikowaną konstrukcję - przez to koszty realizacji domu będą rozsądne. Częścią wspólną obu mieszkań jest wspólne wejście, kotłownia i klatka schodowa z korytarzem. Mieszkanie na parterze - to dwupokojowy apartament z kuchnią i łazienką. Na poddaszu natomiast znajdziemy lokal czteropokojowy (ewentualnie trzypokojowy z wydzieloną kuchnią). Projekt domu Praktyczny B może zainteresować wielopokoleniowe rodziny, może też być świetnym pomysłem na dom letniskowy - gdzie na raz, niezależnie od siebie przebywać mogą dwie rodziny. Zapraszamy do zapoznania się też z projektem domu Praktyczny A.
-
Projekt szamba szczelnego0 zł399 zł
-
Charakterystyka energetyczna0 zł200 zł
-
Pakiet energooszczędny0 zł150 zł
-
Dziennik budowy0 zł60 zł
-
Tablica budowy0 zł120 zł
-
Wersja elektroniczna projektu550 zł
-
Pakiet kosztorys inwestorski550 zł
-
Pakiet ogrzewanie podłogowe470 zł
-
Powietrzna pompa ciepła470 zł
-
Pakiet wentylacja mechaniczna i kominek DGP470 zł
-
Dodatkowy egzemplarz projektu500 zł
-
Pakiet kotłownia na paliwo stałe470 zł
-
Pakiet instalacja fotowoltaiczna470 zł
-
Pakiet klimatyzacja w domu470 zł
-
Pakiet gruntowa pompa ciepła470 zł
-
Pakiet odkurzacz centralny470 zł
-
Pakiet płaszcz wodny470 zł
-
Pakiet kominek DGP399 zł
-
Projekty altan i grillów ogrodowych650 zł
-
Pakiet instalacja solarna470 zł

opieką konsultacyjną w trakcie budowy domu