Ranczo







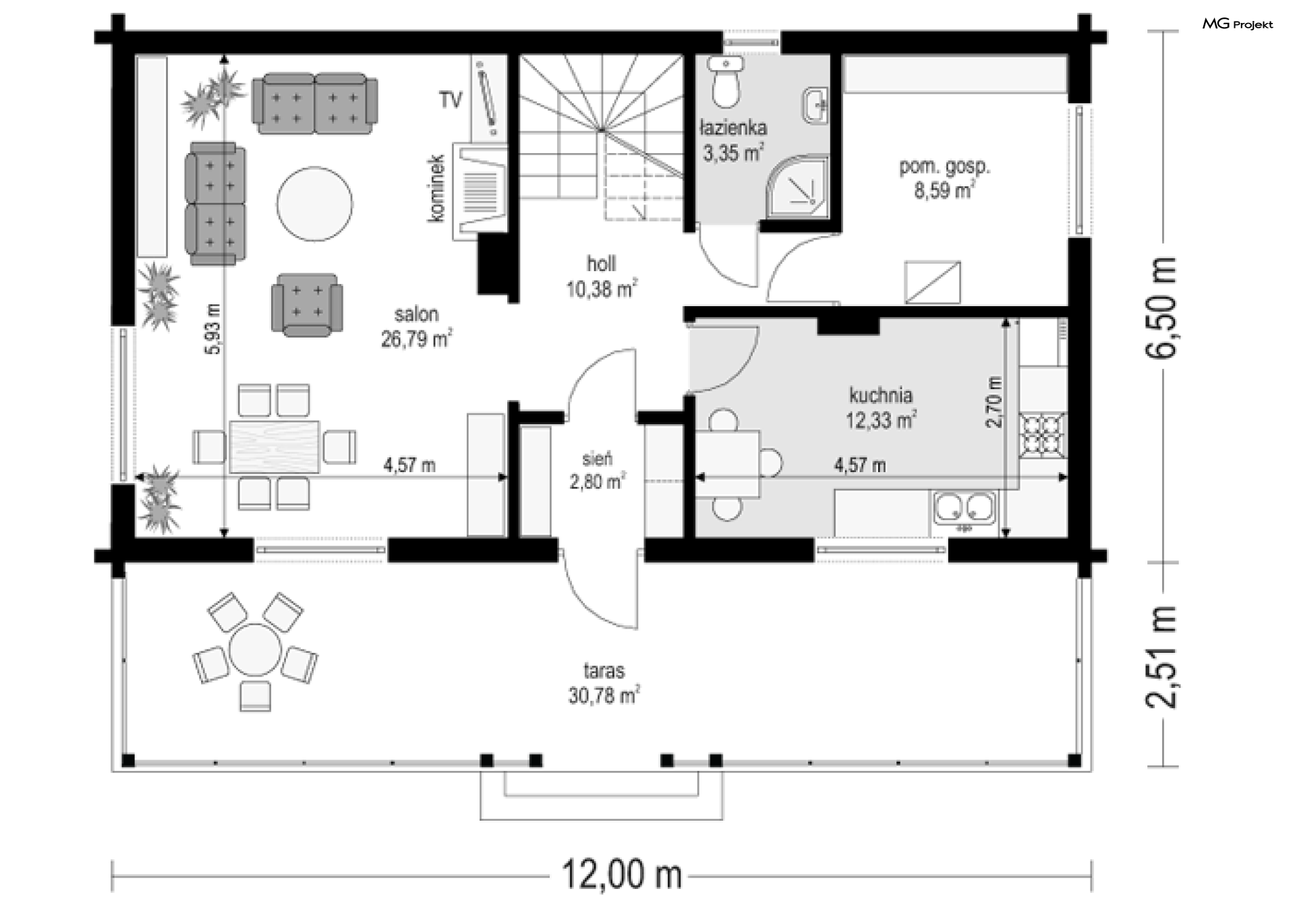
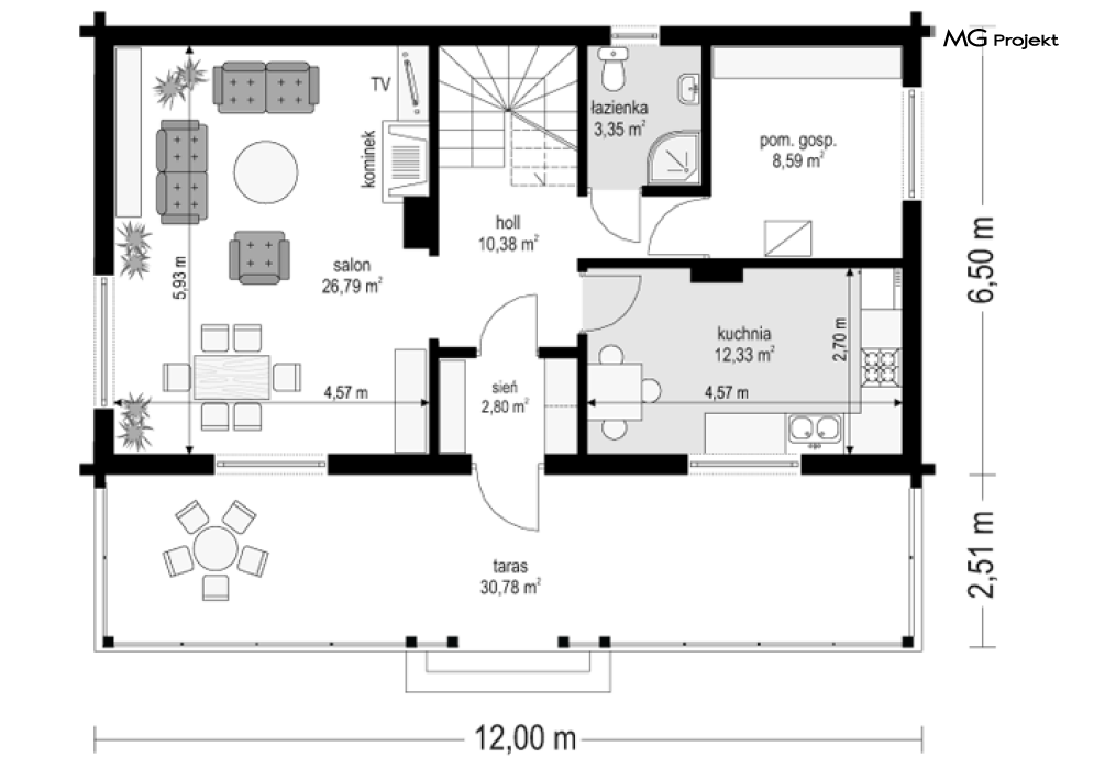
Projekt domu Ranczo to budynek z litego bala, ocieplony od wewnątrz. Projekt domu parterowego z poddaszem użytkowym, przeznaczony dla 4-6ciu osób. Projekt domu Ranczo może być wykorzystany jako całoroczny budynek mieszkalny, ale również jako dom letniskowy. Budynek, dzięki swojej prostocie, przypomina wiejskie chaty. Jednocześnie jego architektura nie nawiązuje do żadnego ludowego regionalnego wzoru, forma jest więc uniwersalna. Duży dwuspadowy dach z okapami, osadzona na środku frontowej elewacji lukarna z balkonikiem, weranda o szerokości całego domu podparta na słupach z zastrzałami - te elementy łatwo skojarzą się z sielskim wiejskim siedliskiem. Dom skierowano w jedną stronę - elewacja frontowa jest jednocześnie ogrodową. Przy działkach rekreacyjnych to często spotykany układ. Podział wnętrza domu jest również bardzo tradycyjny i przypomina stare wiejskie chaty lub dworki: środkowa część to hol z przedsionkiem i schodami, po bokach natomiast mieszczą się salon i kuchnia, oraz pomieszczenie gospodarcze. Wielki zadaszony taras - weranda z przodu da cień przed słońcem i schronienie przed deszczem. Na poddaszu zaprojektowano trzy sypialnie i bardzo ładną łazienkę. Ponadto z holu można wyjść na malowniczy balkonik. Projekt domku Ranczo dostępny jest też w odbiciu lustrzanym.
