Riwiera 2







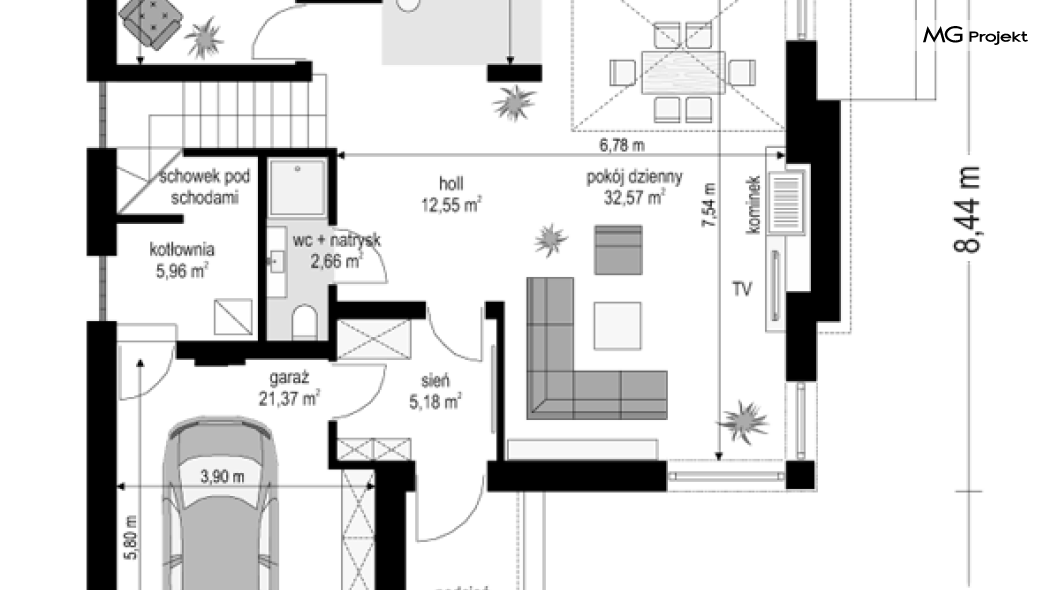
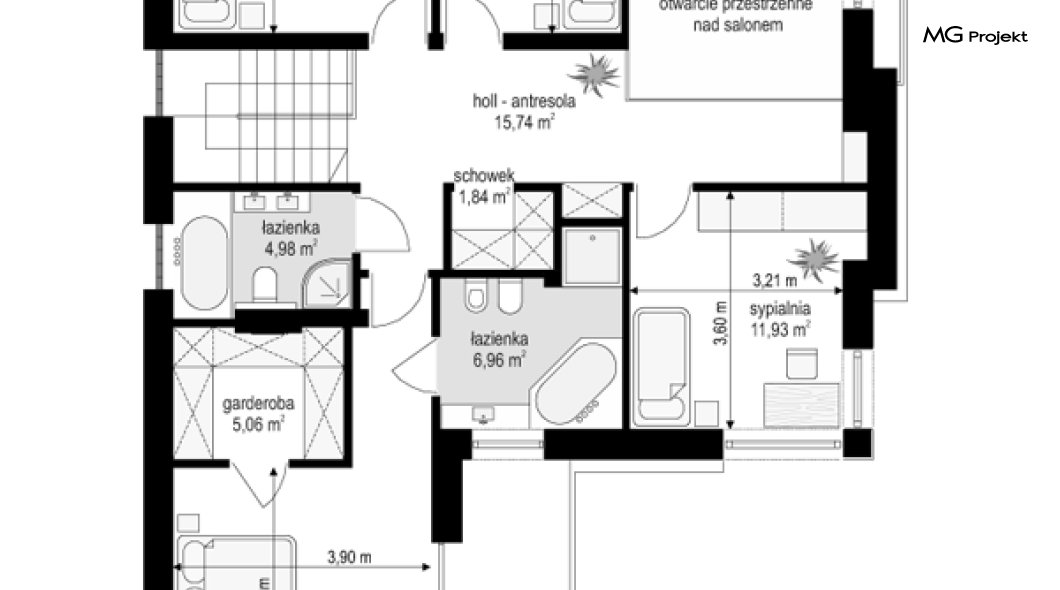
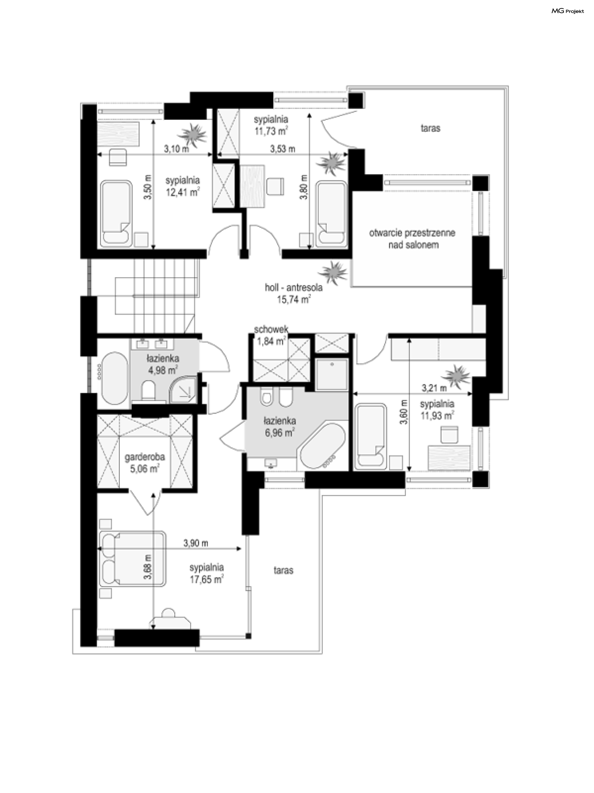
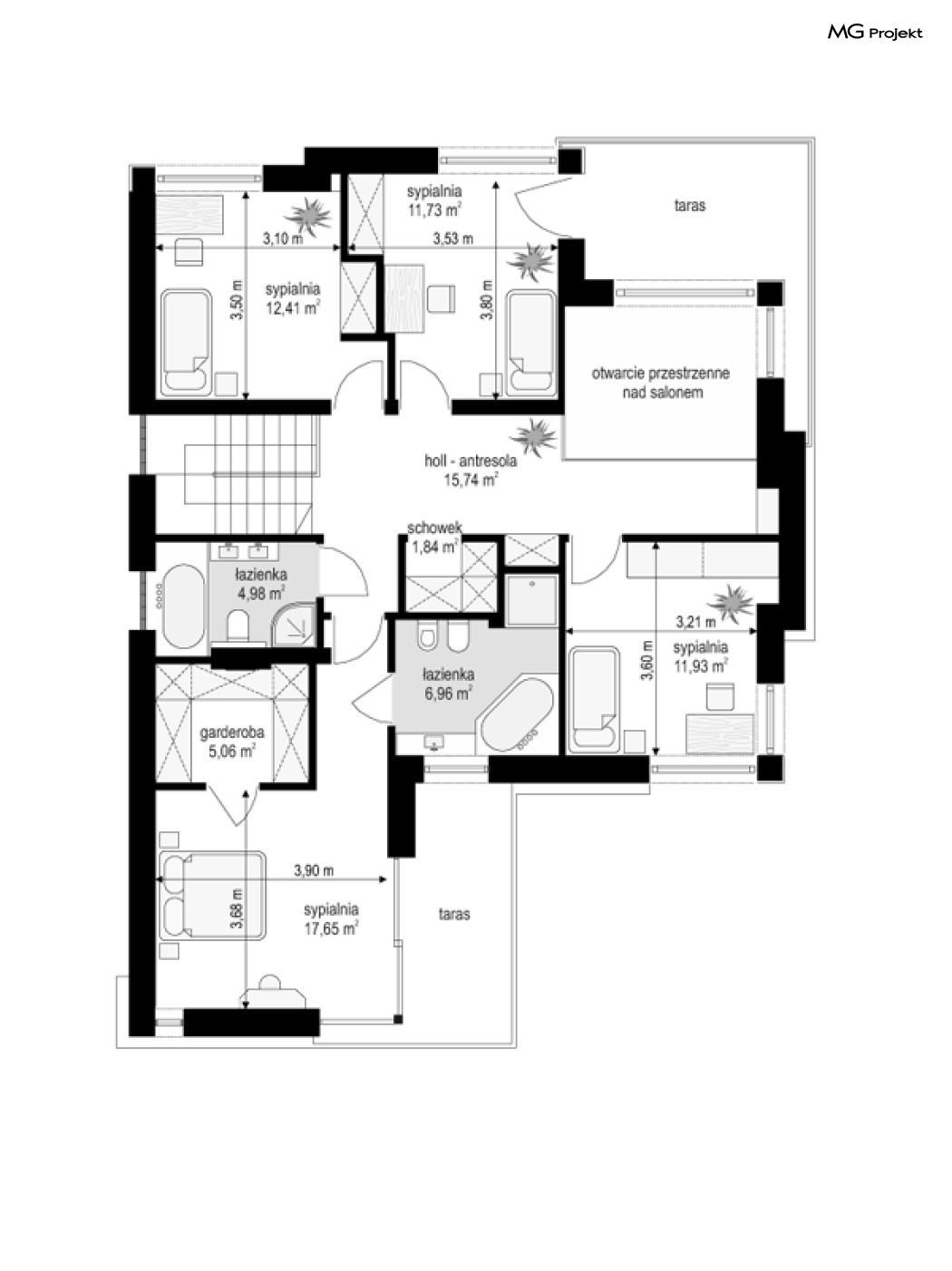
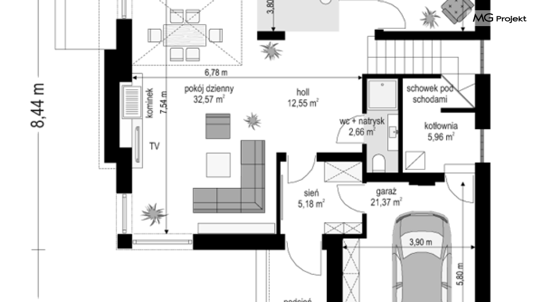
Projekt domu Riwiera 2 to kolejna wersja popularnego projektu Riwiera. Jest to nieco mniejszy wariant domu, z zachowanymi podobnymi rozwiązaniami wnętrz i wyglądu zewnętrznego. Budynek jest piętrowy, z wbudowanym w bryłę garażem. Projekt domu Riwiera 2 przeznaczona jest dla cztero-sześcioosobowej rodziny. Budynek zaprojektowano w stylu miejskiej nowoczesnej willi, z łagodnymi dachami i dużymi przeszkleniami. Elewacje podzielone zostały na poziome pasy, a różne okładziny i kolory urozmaicają powierzchnie ścian. Znakiem firmowym „Riwiery 2” są piękne duże okna. Część z nich sięga od podłogi do sufitu, dzięki czemu z wnętrza dziennego domownicy będą mieli świetny widok na otaczający ogród. Środek domu podzielono na część dzienną na parterze, oraz sypialnie na piętrze. Do domu wchodzimy przez obszerną sień, z przejściem do garażu i pomieszczenia gospodarczego. Następnie przechodzimy do holu, połączonego z pokojem dziennym i kuchnią, które razem tworzą dużą otwartą przestrzeń. Z holu dostępne są także : schody na piętro, niewielka łazienka i dodatkowy pokój ( gabinet lub sypialnia gościnna ). Nad jadalnią zostawiono otwarty sufit na antresolę piętra, z oknami o wysokości dwóch kondygnacji, z widokiem na ogródek. Reprezentacyjna ściana kominkowo-telewizyjna będzie ozdobą całego domu. Z salonu wychodzimy na częściowo zadaszony taras i do ogrodu. Na piętrze przewidziano cztery sypialnie, w tym apartament rodziców w osobnej części domu, z własną łazienką i garderobą. Sypialnie dziecięce mają dodatkową łazienkę - z holu. Istnieje możliwość zamknięcia pustki nad salonem i zaprojektowania piątego pokoju na piętrze. Projekt domu Riwiera 2 to przemyślany, bardzo funkcjonalny, energooszczędny dom jednorodzinny. Jego koszt budowy wypada korzystnie w stosunku do uzyskanej powierzchni ( pozbawionej skosów ), oraz komfortu i wygody mieszkania. Pracownia posiada wersję odbicia lustrzanego oraz inne propozycje tej serii: bazowa (Projekt domu Riwiera), poszerzona o mniejszej głębokości (Projekt domu Rwiera 3) pomniejszona ze zmienionym układem wewnętrznym (Projekt domu Riwiera 4) oraz zmodyfikowana i ulepszona wersja bazowego projektu (Projekt domu Riwiera 5). Zapraszamy!
