Sylwia







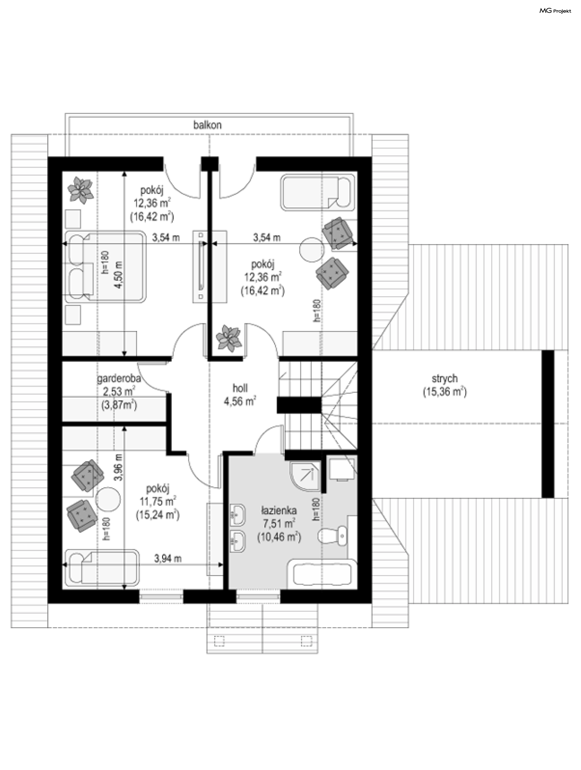
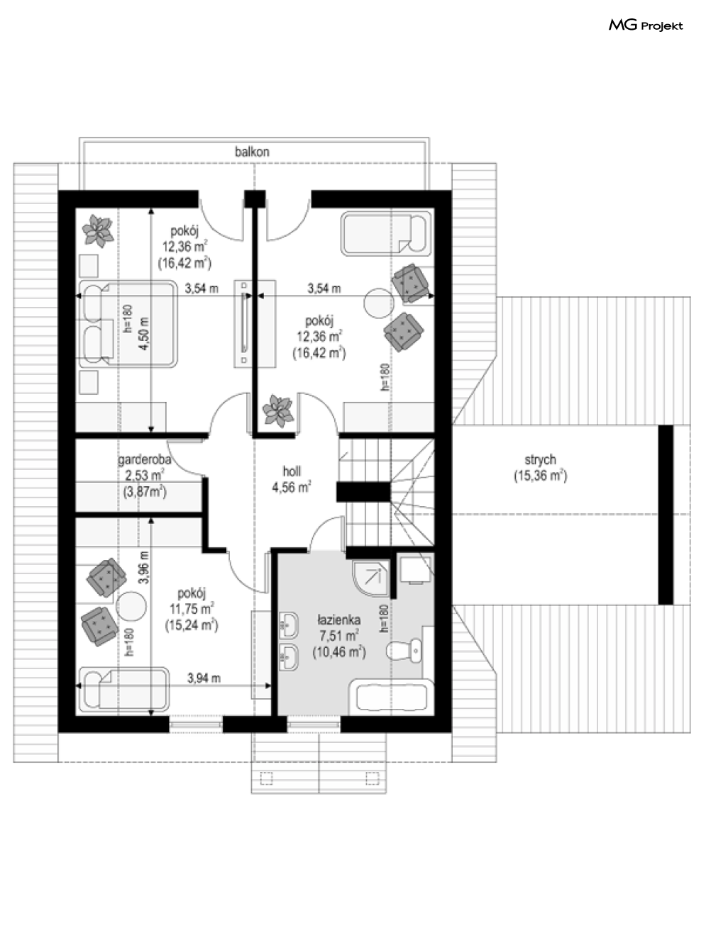
Projekt domu Sylwia to budynek parterowy z użytkowym poddaszem. Przekryty dwuspadowym dachem, z dobudowaną bryłą garażu. Domek jednorodzinny, wręcz idealny dla 4-6 osób. Budynek łączy w sobie bezpretensjonalność bryły i funkcjonalnie zaplanowane wnętrze. Na parterze domu Sylwia zaprojektowano jednoprzestrzenny salon połączony z aneksem jadalnym i kuchnią, na poddaszu umieszczono trzy sypialnie. Duży garaż dobudowany do głównej bryły można z łatwością powiększyć do dwustanowiskowego. Strych nad garażem to przestrzeń magazynowa domu. Taras i balkon otwierają wnętrze na ogród. Front budynku został ozdobiony gankiem wejściowym z zadaszeniem. Pracownia posiada projekt Sylwia w odbiciu lustrzanym.
-
Projekt szamba szczelnego0 zł399 zł
-
Charakterystyka energetyczna0 zł200 zł
-
Pakiet energooszczędny0 zł150 zł
-
Dziennik budowy0 zł60 zł
-
Tablica budowy0 zł120 zł
-
Wersja elektroniczna projektu550 zł
-
Pakiet kosztorys inwestorski550 zł
-
Pakiet ogrzewanie podłogowe470 zł
-
Powietrzna pompa ciepła470 zł
-
Pakiet wentylacja mechaniczna i kominek DGP470 zł
-
Dodatkowy egzemplarz projektu500 zł
-
Pakiet kotłownia na paliwo stałe470 zł
-
Pakiet instalacja fotowoltaiczna470 zł
-
Pakiet klimatyzacja w domu470 zł
-
Pakiet gruntowa pompa ciepła470 zł
-
Pakiet odkurzacz centralny470 zł
-
Pakiet płaszcz wodny470 zł
-
Pakiet kominek DGP399 zł
-
Projekty altan i grillów ogrodowych650 zł
-
Pakiet instalacja solarna470 zł

opieką konsultacyjną w trakcie budowy domu