Tytan







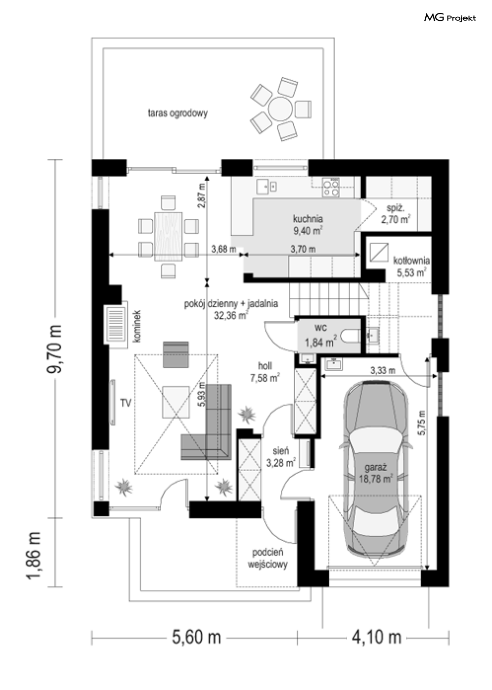
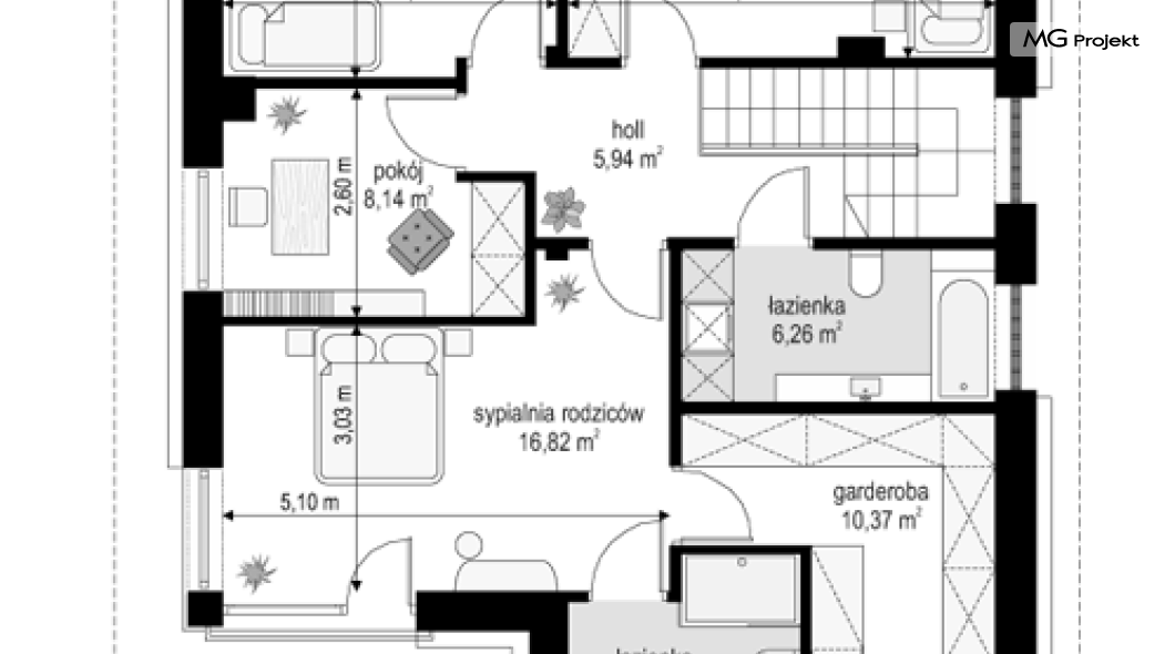
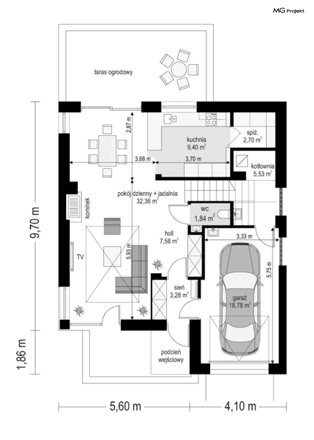
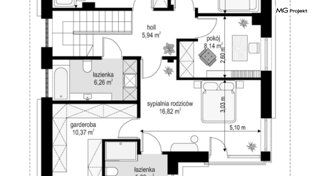
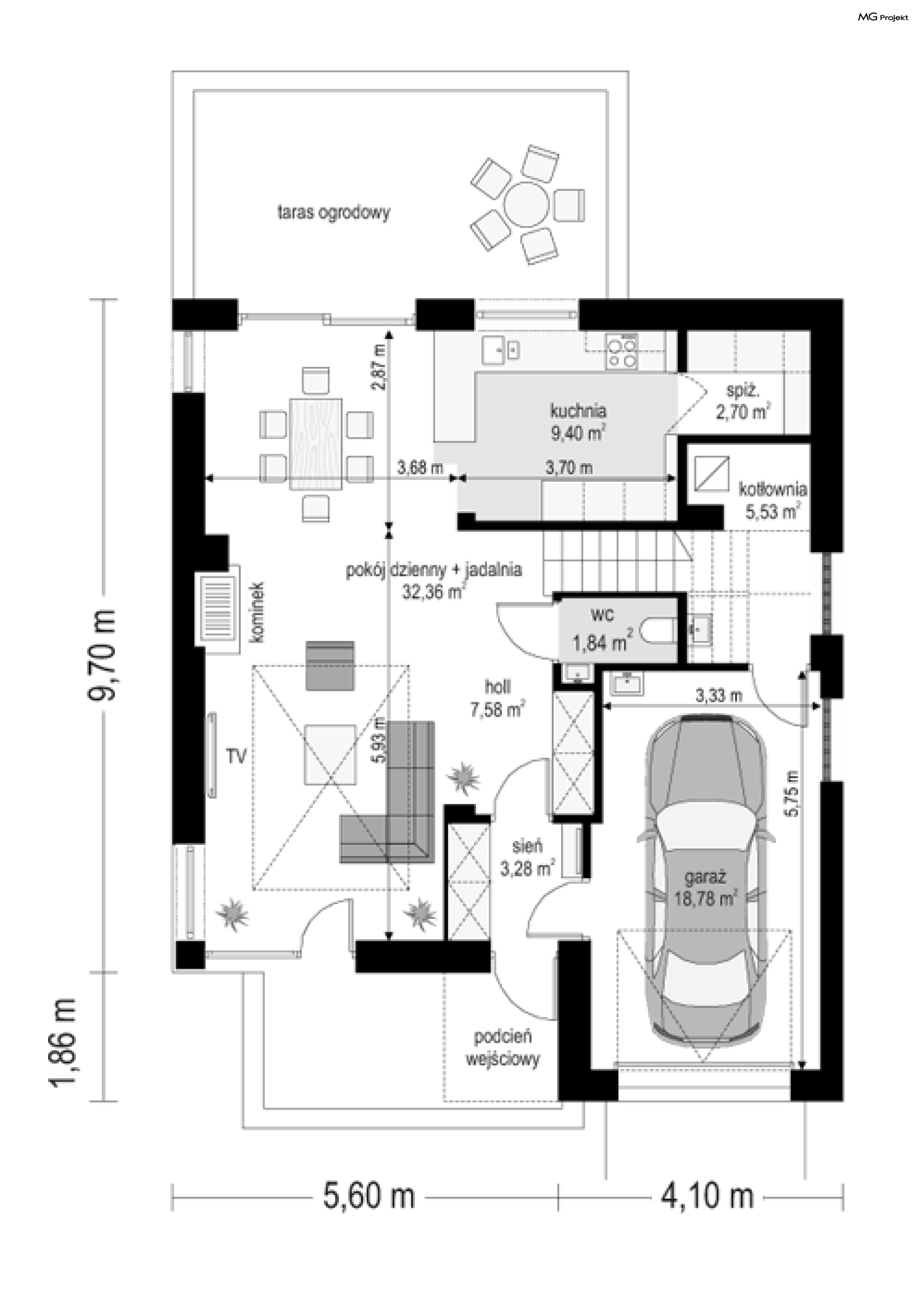
Projekt domu Tytan to projekt piętrowego domu, przeznaczonego dla 4-5cioosobowej rodziny. Projekt domu Tytan przeznaczony jest dla Inwestorów chcących mieszkać w domu „bez skosów”, którzy dysponują niewielką parcelą. Dom jest zaprojektowany w taki sposób, aby pasował na działkę z niekorzystnym nasłonecznieniem – na przykład z ulicą od południa. Prosta bryła, nowoczesny wyraz architektoniczny, połączony z funkcjonalnym wnętrzem, daje bardzo korzystne połączenie. Dom jest funkcjonalny choć niewielki – z ładnym salonem, garażem i czterema pokojami na piętrze ma powierzchnię użytkową poniżej 140 m2. Koszt budowy domu, dzięki prostej konstrukcji, nie jest wygórowany. Technologie, które zastosowano bardzo polepszają energooszczędność - doskonałe ocieplenia, wentylacja mechaniczna z rekuperacją. Wszystkie te elementy pomniejszają koszty przyszłej eksploatacji budynku. Architektura zewnętrzna łączy poziome pasy elewacji wykończonych różnymi materiałami z dużymi przeszkleniami - szczególnie narożnymi oknami salonu i sypialni powyżej. Połączenie tynku, okładziny drewnianej, czy płyt hpl, daje atrakcyjny wygląd domu. Wnętrza podzielono na część dzienną, dzielącą przestrzeń parteru z pomieszczeniami technicznymi, oraz sypialnie na piętrze. Salon połączony z aneksem jadalnym, kuchnią i holem tworzą razem atrakcyjne jednoprzestrzenne wnętrze. Dostępna z przedsionka część techniczna składa się z garażu i kotłowni. Gazowy kocioł może być łatwo zamieniony na kotłownię na paliwo stałe. Na piętrze wydzielono wygodny apartament rodziców, z własną łazienką i naprawdę dużą garderobą. Dodatkowo zaprojektowano dwie sypialnie dziecięce, dodatkowy pokój (gabinet lub sypialnia), oraz drugą łazienkę. Projekt domu Tytan, to solidny, niewielki, funkcjonalnie zaprojektowany dom, w sam raz dla kilkuosobowej rodziny pragnącej mieszkać z nowoczesnej architekturze. Prostota konstrukcji pozwoli utrzymać koszt budowy w granicach rozsądku, a energooszczędne rozwiązania pozwolą osiągnąć niskie koszty eksploatacji budynku. Tytan dostępny jest w odbiciu lustrzanym. Zapraszamy również do zapoznania się z pełną ofertą pracowni MG Projekt: projekt domu Tytan 2, projekt domu Tytan 2B, projekt domu Tytan 3, projekt domu Tytan 4.
-
Projekt szamba szczelnego0 zł399 zł
-
Charakterystyka energetyczna0 zł200 zł
-
Pakiet energooszczędny0 zł150 zł
-
Dziennik budowy0 zł60 zł
-
Tablica budowy0 zł120 zł
-
Wersja elektroniczna projektu550 zł
-
Pakiet kosztorys inwestorski550 zł
-
Pakiet ogrzewanie podłogowe470 zł
-
Powietrzna pompa ciepła470 zł
-
Pakiet wentylacja mechaniczna i kominek DGP470 zł
-
Dodatkowy egzemplarz projektu500 zł
-
Pakiet kotłownia na paliwo stałe470 zł
-
Pakiet instalacja fotowoltaiczna470 zł
-
Pakiet klimatyzacja w domu470 zł
-
Pakiet gruntowa pompa ciepła470 zł
-
Pakiet odkurzacz centralny470 zł
-
Pakiet płaszcz wodny470 zł
-
Pakiet kominek DGP399 zł
-
Projekty altan i grillów ogrodowych650 zł
-
Pakiet instalacja solarna470 zł

opieką konsultacyjną w trakcie budowy domu
