Tytan 4







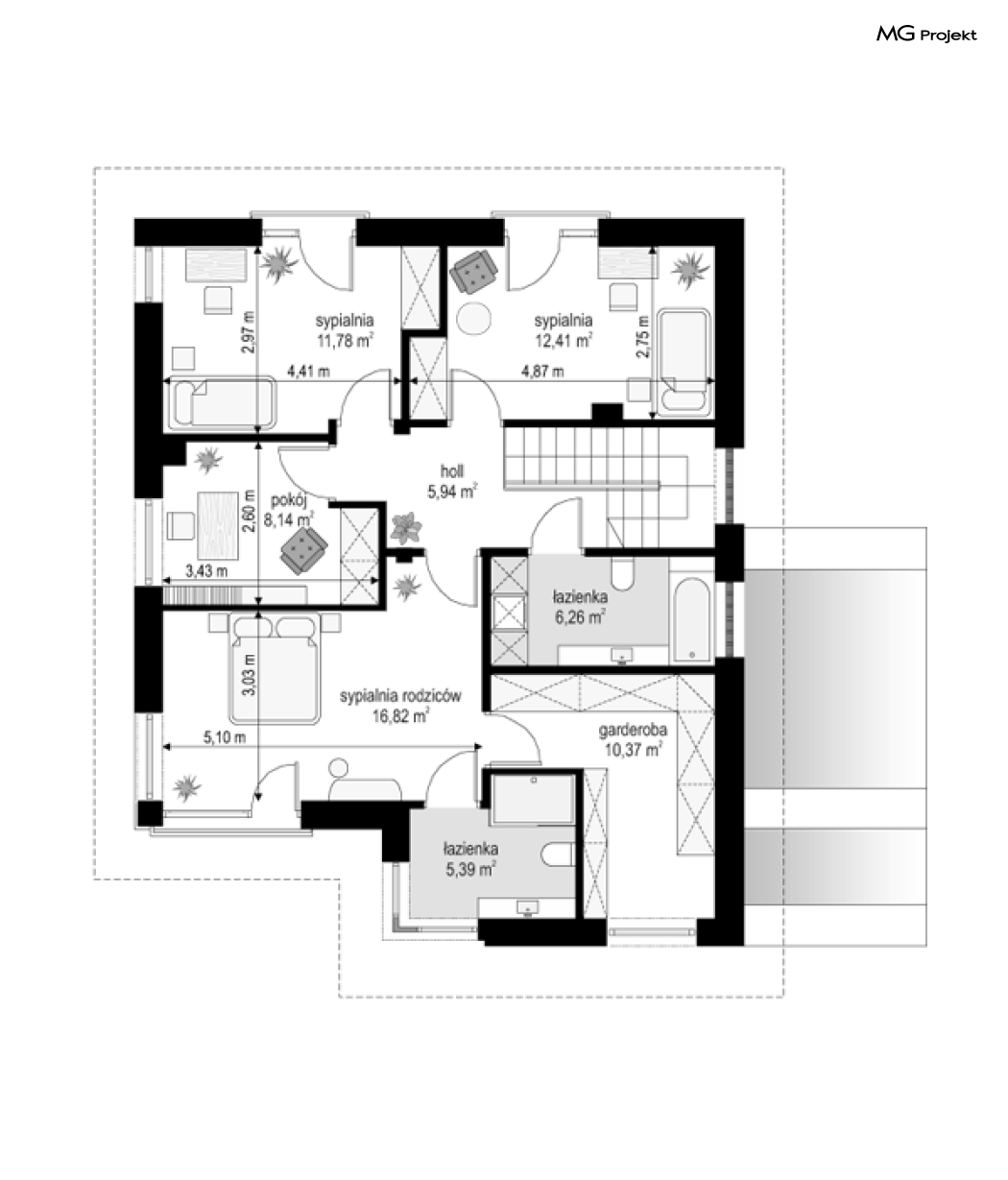
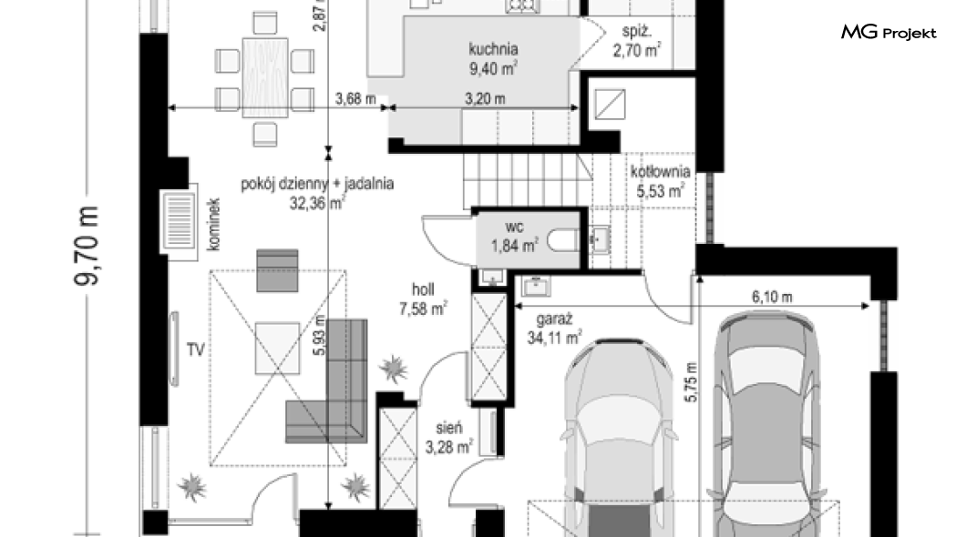
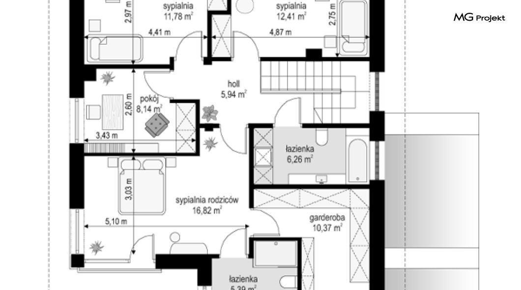
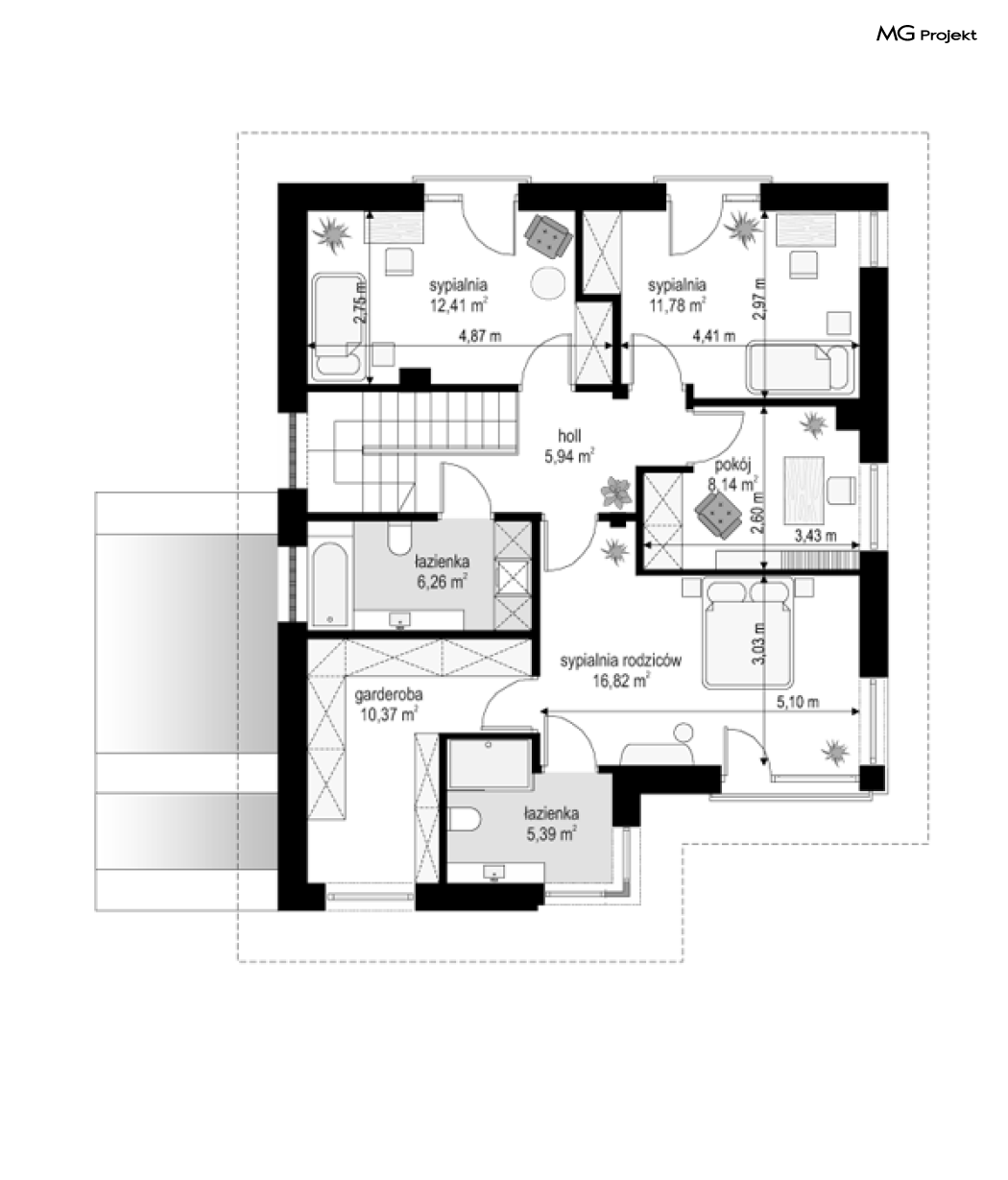
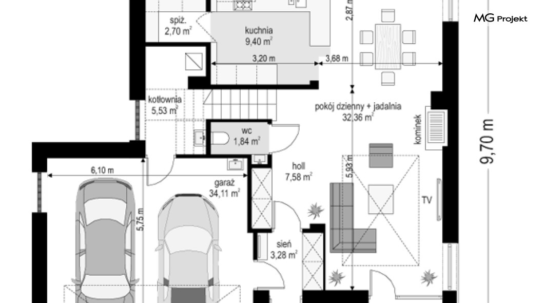
Projekt domu Tytan 4 jest nową wersją popularnego projektu Tytan. Piętrowy dom, przeznaczony dla 4-6cioosobowej rodziny, o zwartej bryle, zbudowany na planie prostokąta, z dobudowanym garażem dwustanowiskowym. Budynek doskonale nadaje się na działkę w niekorzystnym nasłonecznieniem (ze słońcem od strony wjazdu). Prosta bryła, nowoczesny wyraz architektoniczny, połączony z funkcjonalnym wnętrzem, daje bardzo korzystne połączenie. Projekt domu Tytan 4 mimo, że nie ma dużej powierzchni użytkowej, sprawia wrażenie przestronnego i komfortowego. Na parterze zaprojektowaną jedną otwartą przestrzeń dzienną z holem, salonem, aneksem jadalnym i kuchnią. Na piętrze zaprojektowano apartament rodziców, z dużą sypialnią, łazienką i garderobą, dwie sypialnie dzieci z łazienką, oraz dodatkowy pokój (gabinet, sypialnię gościnną). Na parterze mamy dodatkowo,duży dwustanowiskowy garaż, oraz kotłownię, a przy kuchni spiżarnię. Prosta konstrukcja domu, jego zwarta bryła zapewnią niedrogą i nieskomplikowaną budowę, oraz niewielkie późniejsze koszty utrzymania budynku. Zastosowane nowoczesne technologie, dobre izolacje polepszają energooszczędność budynku. Wygląd zewnętrzny domu : elewacje podzielono na poziome pasy wykończone różnymi materiałami (tynk, drewno, cegła klinkierowa). To daje wrażenie nowoczesności i właściwych proporcji. Detale wykończeń elewacji : gzymsy, parapety, okładziny ścian, czy duże przeszklenia - wszystkie one tworzą atrakcyjny styl domu. Projekt domu Tytan 4 to solidny, niewielki, funkcjonalnie zaprojektowany dom, w sam raz dla kilkuosobowej rodziny pragnącej mieszkać z nowoczesnej architekturze. Prostota konstrukcji pozwoli utrzymać koszt budowy w granicach rozsądku, a energooszczędne rozwiązania pozwolą osiągnąć niskie koszty utrzymania. Tytan 4 dostępny jest także odbiciu lustrzanym. Zapraszamy do zapoznania się z pełną ofertą pracowni MG Projekt: projekt domu Tytan, projekt domu Tytan 2, projekt domu Tytan 2B, projekt domu Tytan 3.
