Dom z widokiem 6







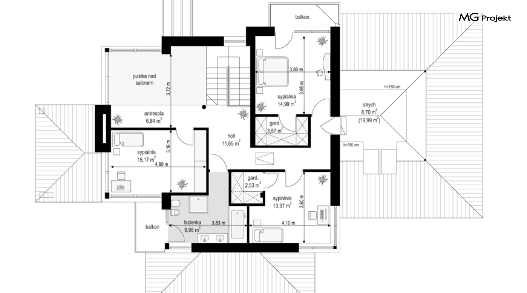
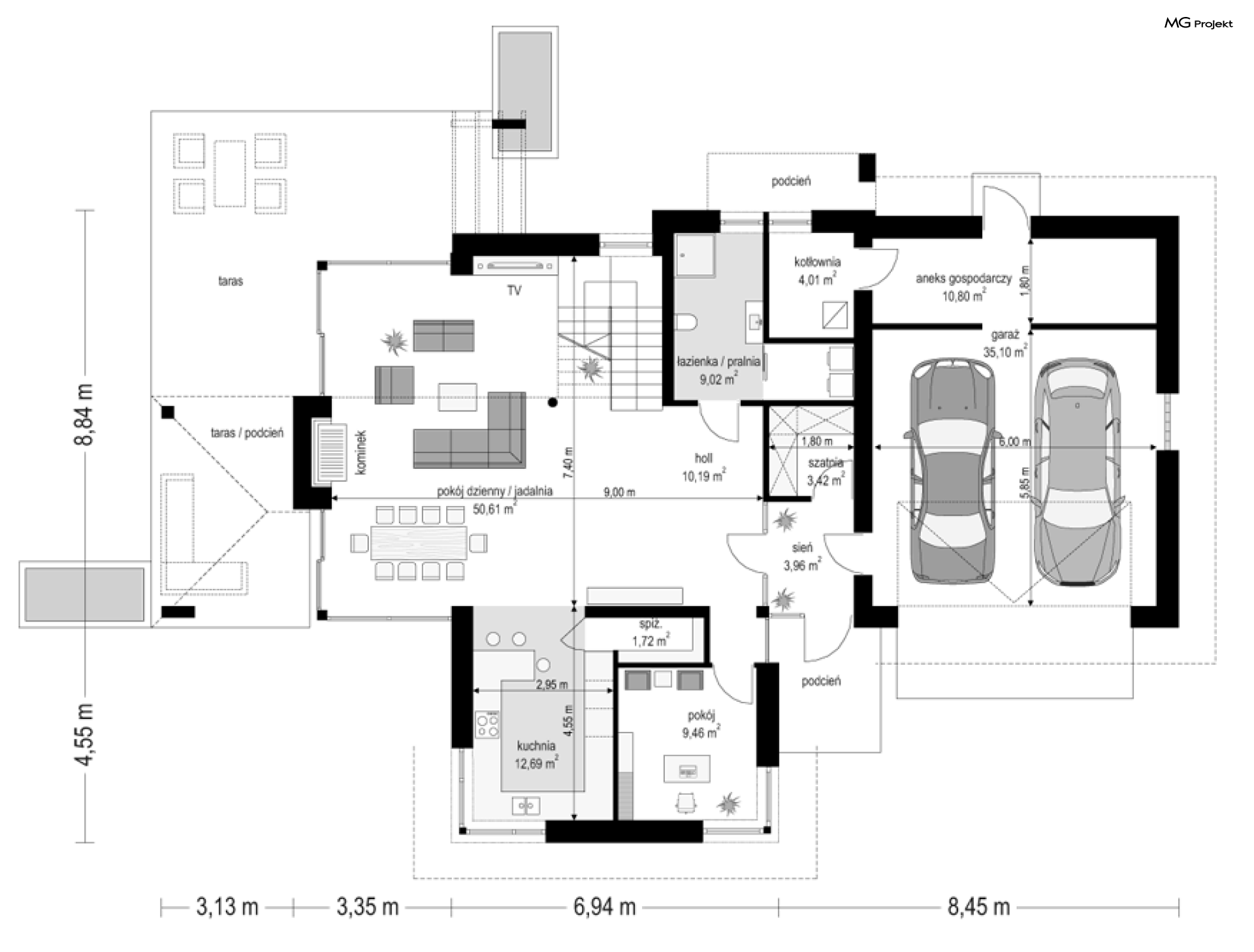
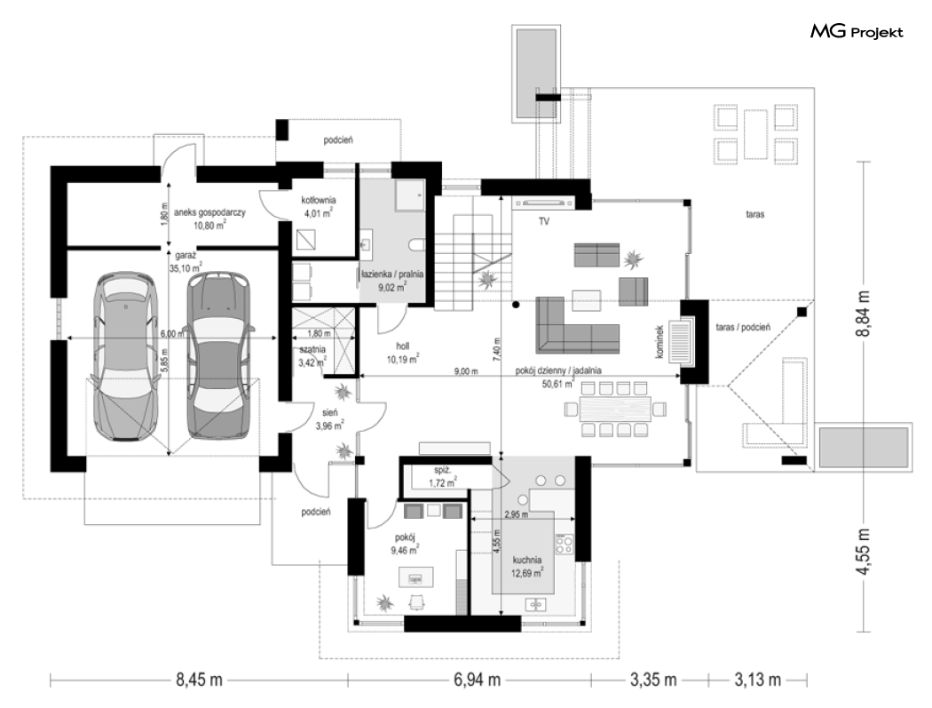
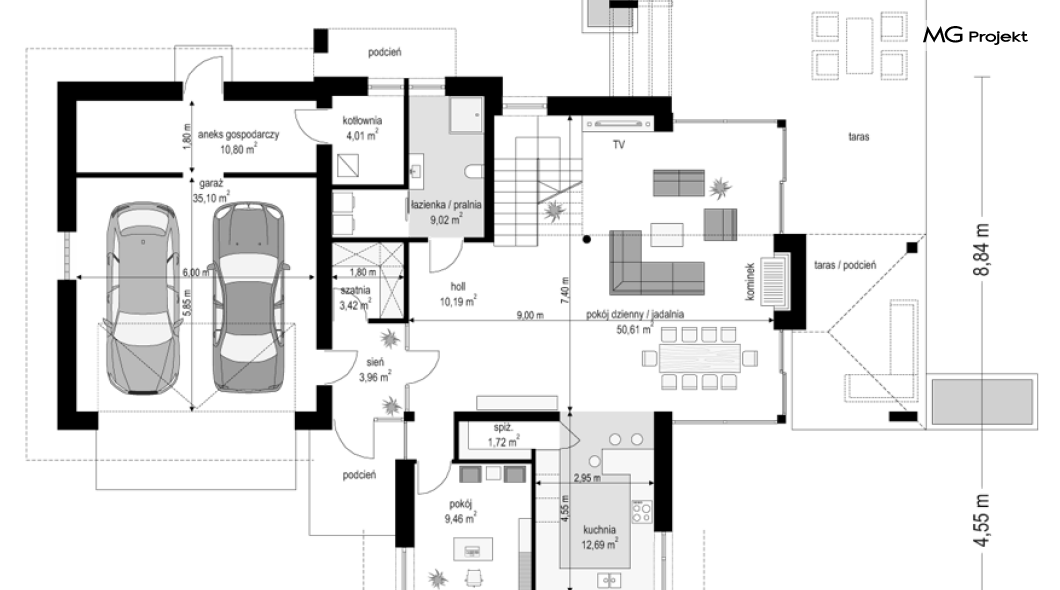
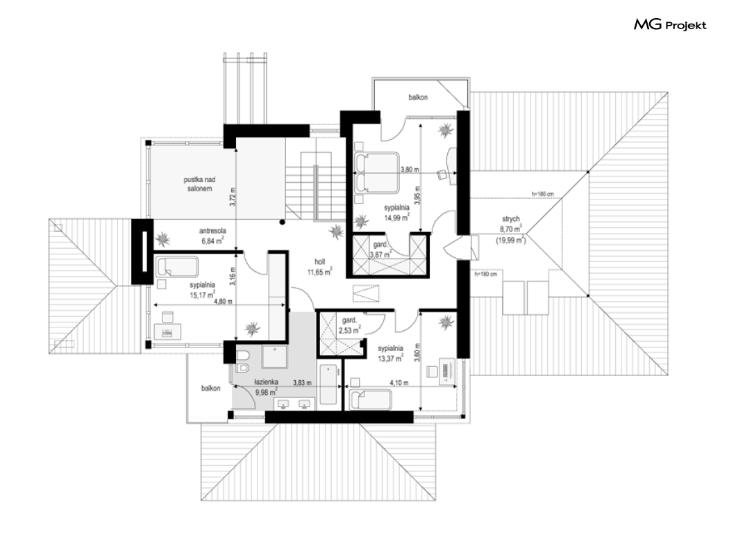
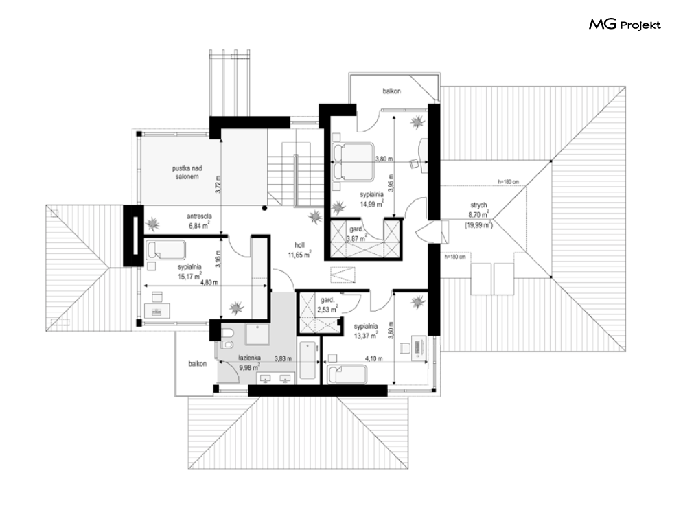
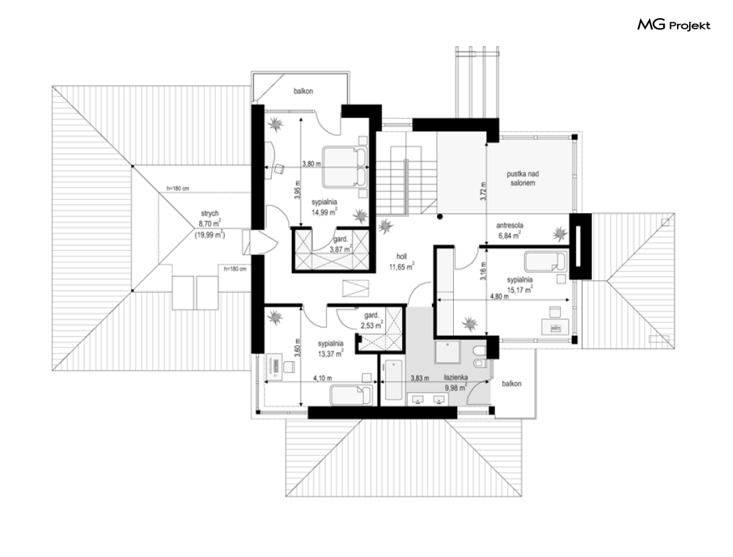
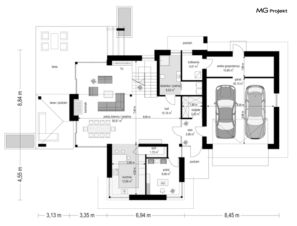
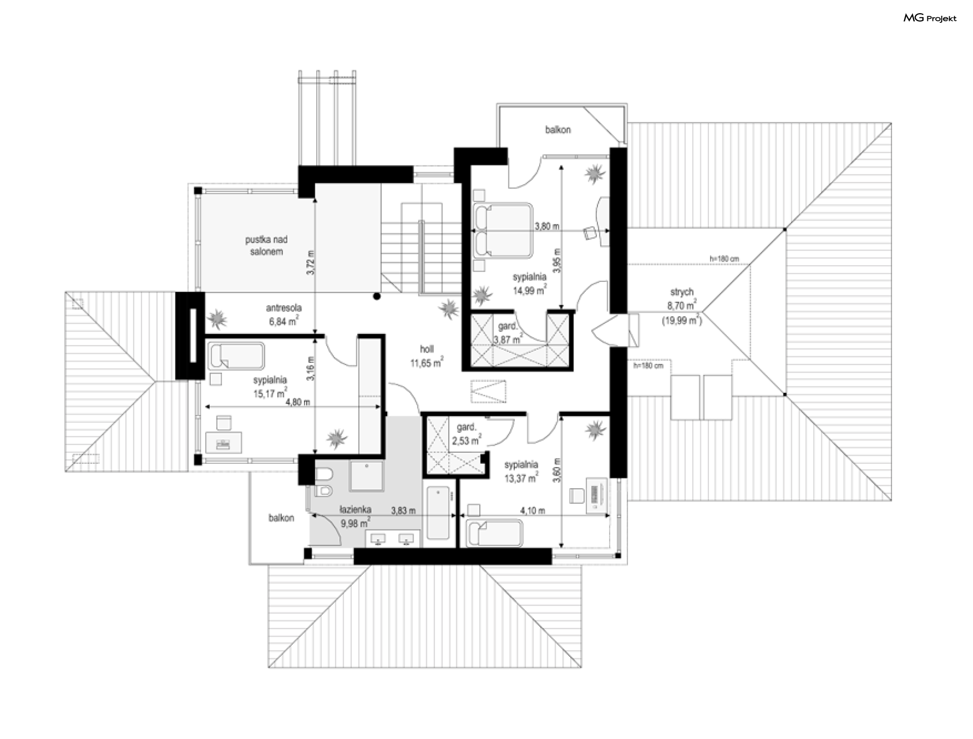
Projekt domu Dom z widokiem 6 jest kolejną wersją popularnego projektu Dom z widokiem. To wariant o zupełnie inaczej zaprojektowanym wnętrzu. Mianowicie część dzienna, salon i tarasy umieszczono tu w tylnej części domu. W związku z tym dom doskonale nadaje się na klasyczną działkę z ogrodem za domem i wejściem i wjazdem na działkę od nienasłonecznionej części działki. Projekt domu Dom z widokiem 6 to wyjątkowy projekt. Łączy w sobie wszystkie ciekawe elementy swoich poprzedników, ale ma też dodatkowe atrakcje, dające razem udaną propozycję pięknej nowoczesnej willi. Tak jak w pozostałych Domach z widokiem piętrowy rdzeń domu obudowany jest tutaj parterowymi mniejszymi bryłami. Cały budynek przykryty jest wielospadowymi łagodnymi dachami z szerokimi okapami. Motywem przewodnim są narożne duże okna - przeszklenia salonu, jadalni, kuchni. Szklany dwukondygnacyjny narożnik salonu z pustką ozdabia tym razem elewację tylną - ogrodową. Dom urozmaicony jest kamiennymi i drewnianymi okładzinami ścian, oraz daszkami, balkonami i pergolą nad tarasem. I choć w bryle domu nie brakuje „atrakcji”, to wszystkie elementy tworzą spójną i elegancką całość. Równie ciekawie prezentuje się wnętrze Domu z widokiem 6. Centralną część parteru stanowi piękny salon, z pustką nad jego fragmentem, oraz nad schodami będącymi ozdobą wnętrza. Z antresoli na piętrze możemy podziwiać pokój dzienny i widok na ogród. Do domu dostajemy się przeszklonym narożnym wejściem do przedsionka, a stąd do holu i pokoju dziennego. Przy wejściu mamy dodatkowy pokój – gabinet, a po przeciwległej stronie holu łazienkę z pralnią. Z przedsionka możemy przejść do garażu i pomieszczeń gospodarczych z kotłownią. Ładna kuchnia z dodatkową spiżarnią dostępna jest od strony holu i jadalni. Tarasy wokół przestrzeni dziennej układają się w literę L - część tarasu jest zadaszona. Piętro domu to trzy sypialnie i duża centralna łazienka. Sypialnia rodziców i jedna sypialni dziecięcych ma garderobę. Druga sypialnia dzieci - szafę wbudowaną. Część powierzchni piętra zajmuje malownicza antresola i otwarcie przestrzenne na parter. Nad garażem znajduje się stryszek gospodarczy dostępny z holu. Projekt domu Dom z widokiem 6 jest nieco mniejszy od swoich poprzedników, ale dzięki temu tańszy w realizacji. Jednocześnie dom nie traci na swojej atrakcyjności i na poczuciu przestronności jego wnętrza. Projekt domu Dom z widokiem 6 jest doskonałą propozycją dla inwestorów marzących o reprezentacyjnym, eleganckim, piętrowym domu, o nowoczesnej architekturze, oraz funkcjonalnym i oryginalnym wnętrzu. Zapraszamy do zapoznania się z pełną ofertą pracowni MG Projekt tej serii: Dom z widokiem, Dom z widokiem 2, Dom z widokiem 2C, Dom z widokiem 3, Dom z widokiem 3F, Dom z widokiem 4, Dom z widokiem 5, Dom z widokiem 6B, Dom z widokiem B, Dom z widokiem E.
