Orkan







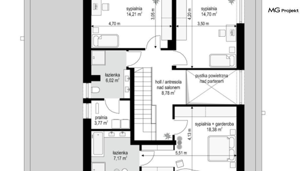
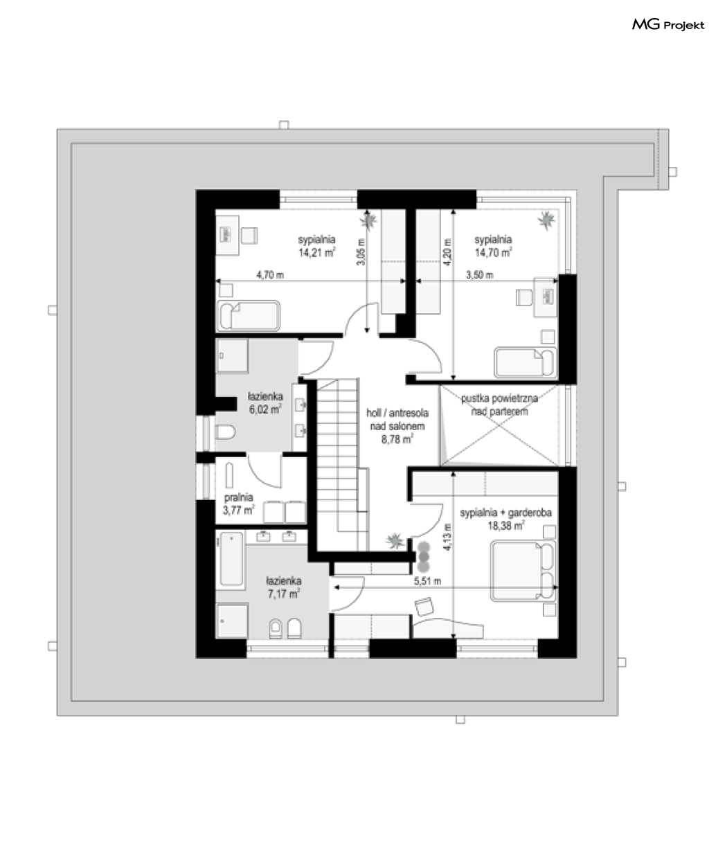
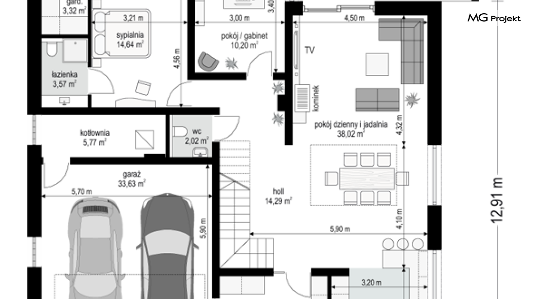
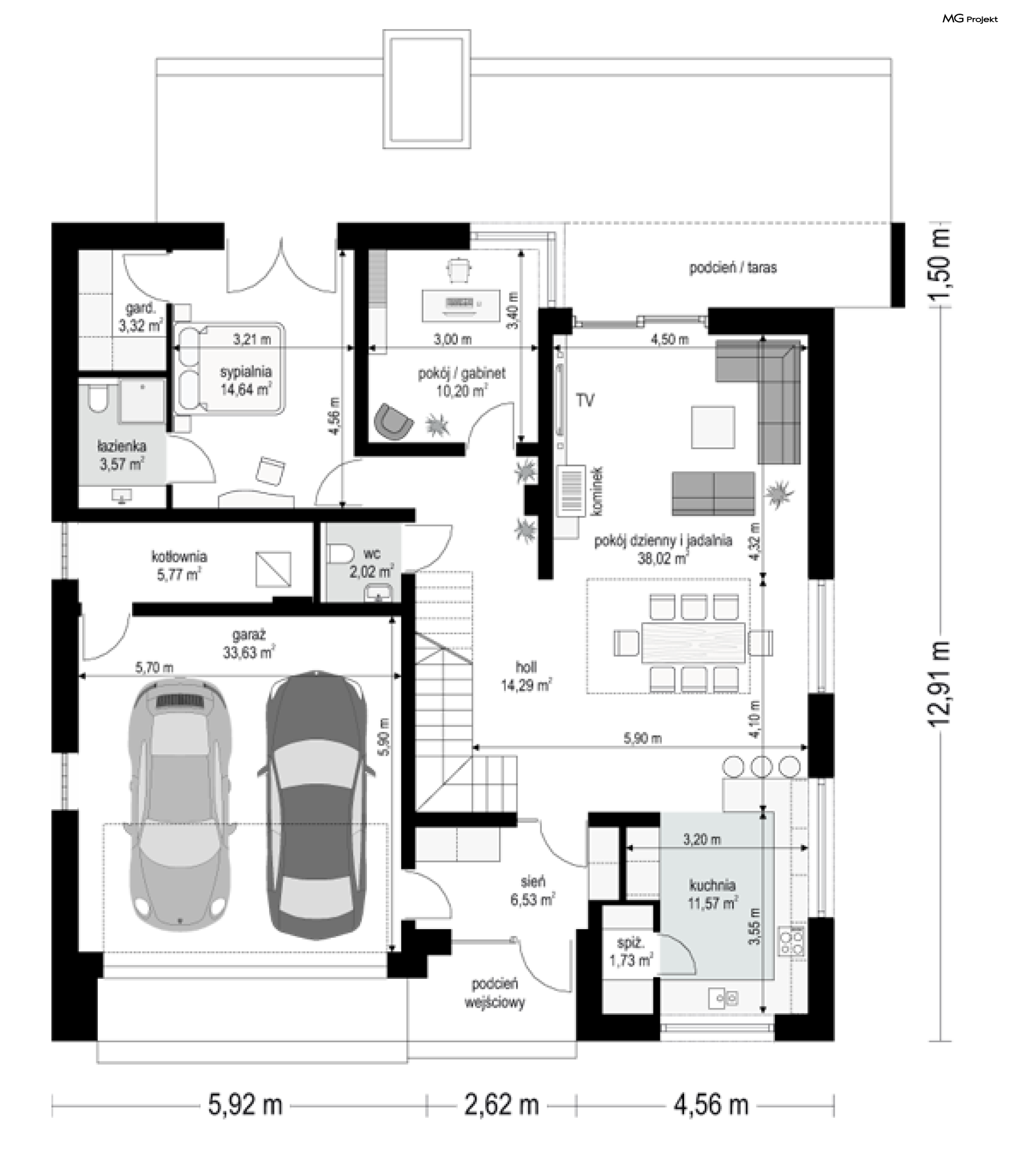
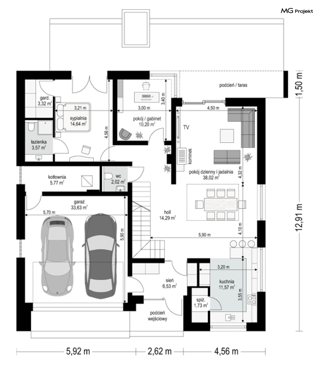
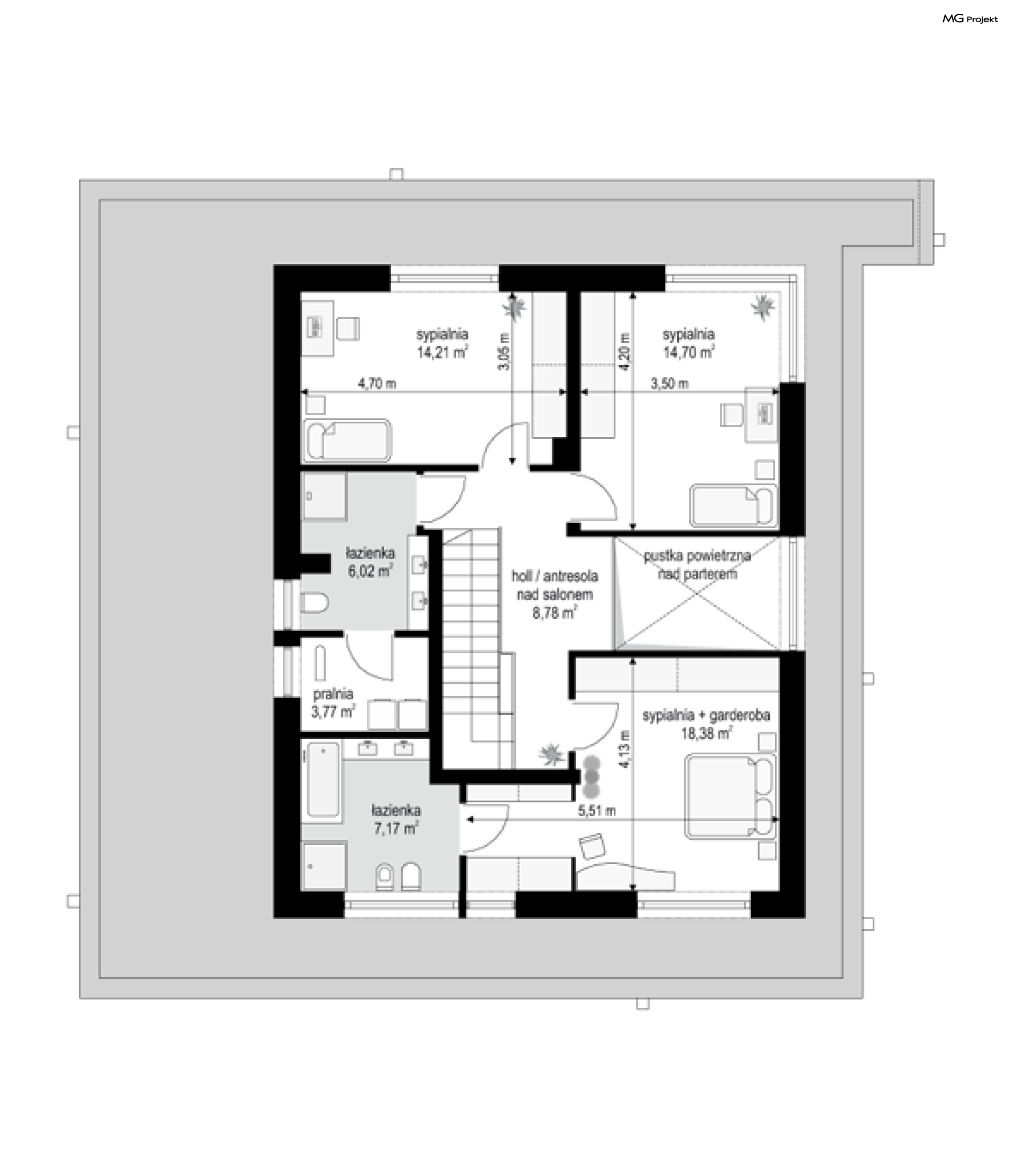
Projekt domu Orkan jest propozycją nowoczesnej, komfortowej willi miejskiej, będącej spełnieniem marzeń o wygodnym życiu w otoczeniu pięknych przedmiotów. Projekt domu Orkan ma oryginalną formę i stylistykę. Łączy w sobie cechy domu piętrowego z domem parterowym, z mocno przenikającym się wnętrzem z otaczającym ogrodem. Dzięki cofnięciu głównego piętrowego rdzenia budynku uzyskaliśmy bardziej rozczłonkowaną, bliższą ludzkiej skali bryłę domu. Taki zabieg wprowadził do architektury projektu właściwe proporcje i skalę. Dom jest jednocześnie duży i mały, wysoki i niski, rozległy i zwarty w sobie. Sylwetkę budynku zaprojektowano wprowadzając wzajemnie kontrastujące ze sobą fragmenty jasnych i ciemnych ścian. Duże przeszklenia okien i drzwi balkonowych dobrze doświetlają wnętrze i łączą pomieszczenia z ogrodem. Na parterze zaprojektowano otwartą część dzienną, z salonem, jadalnią, holem z pięknie wyeksponowanymi schodami, oraz kuchnią. Na dolnej kondygnacji mamy też - co jest rzadkością w niedużych domach piętrowych - dwa dodatkowe pokoje : apartament sypialny z łazienką i garderobą i pokój - gabinet. Dzięki temu mamy w projekcie pięć pokoi i salon. Na parterze mieści się podwójny garaż i kotłownia. Na piętrze znajdują się trzy sypialnie, dwie łazienki i pralnia. Kondygnacje połączone są ze sobą otworem schodowym z dwukondygnacyjną ścianą – galerią, oraz dodatkowo pustką nad jadalnią z antresolą na piętrze (pustkę można też zabudować dodając kolejny pokój na piętrze). Orkan ma dość prostą konstrukcję, zaprojektowano go z energooszczędnych nowoczesnych materiałów. Koszty utrzymania budynku nie będą wysokie. Projekt domu Orkan jest doskonałą propozycją dla osób zamierzających budować dom piętrowy, ale chcący czegoś bardziej oryginalnego niż zwykła piętrowa kostka, a jednocześnie pragnących domu o nowoczesnej architekturze. Zapraszamy !

