Willa Parterowa 4







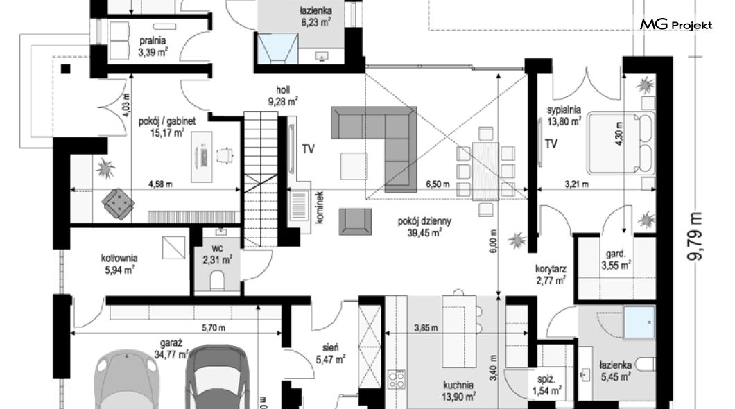
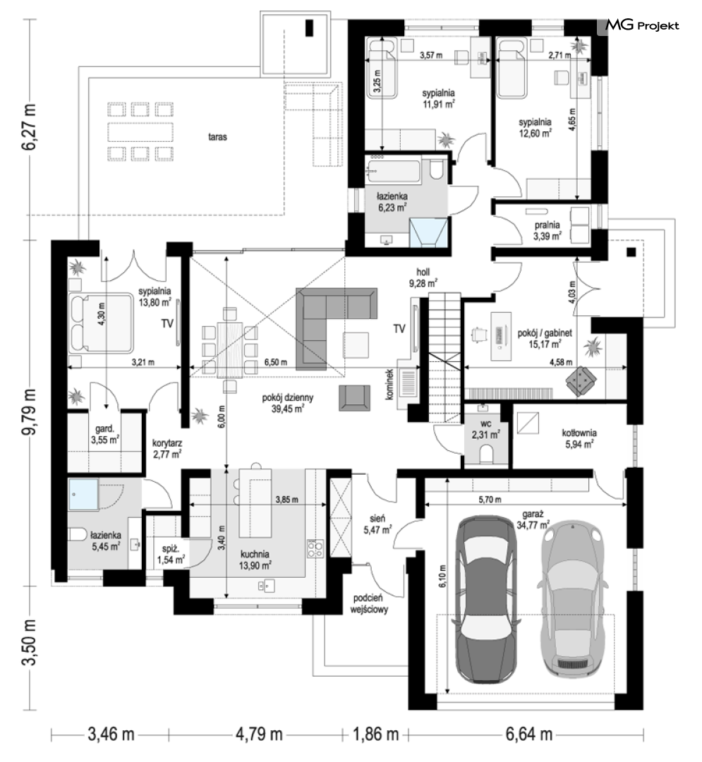
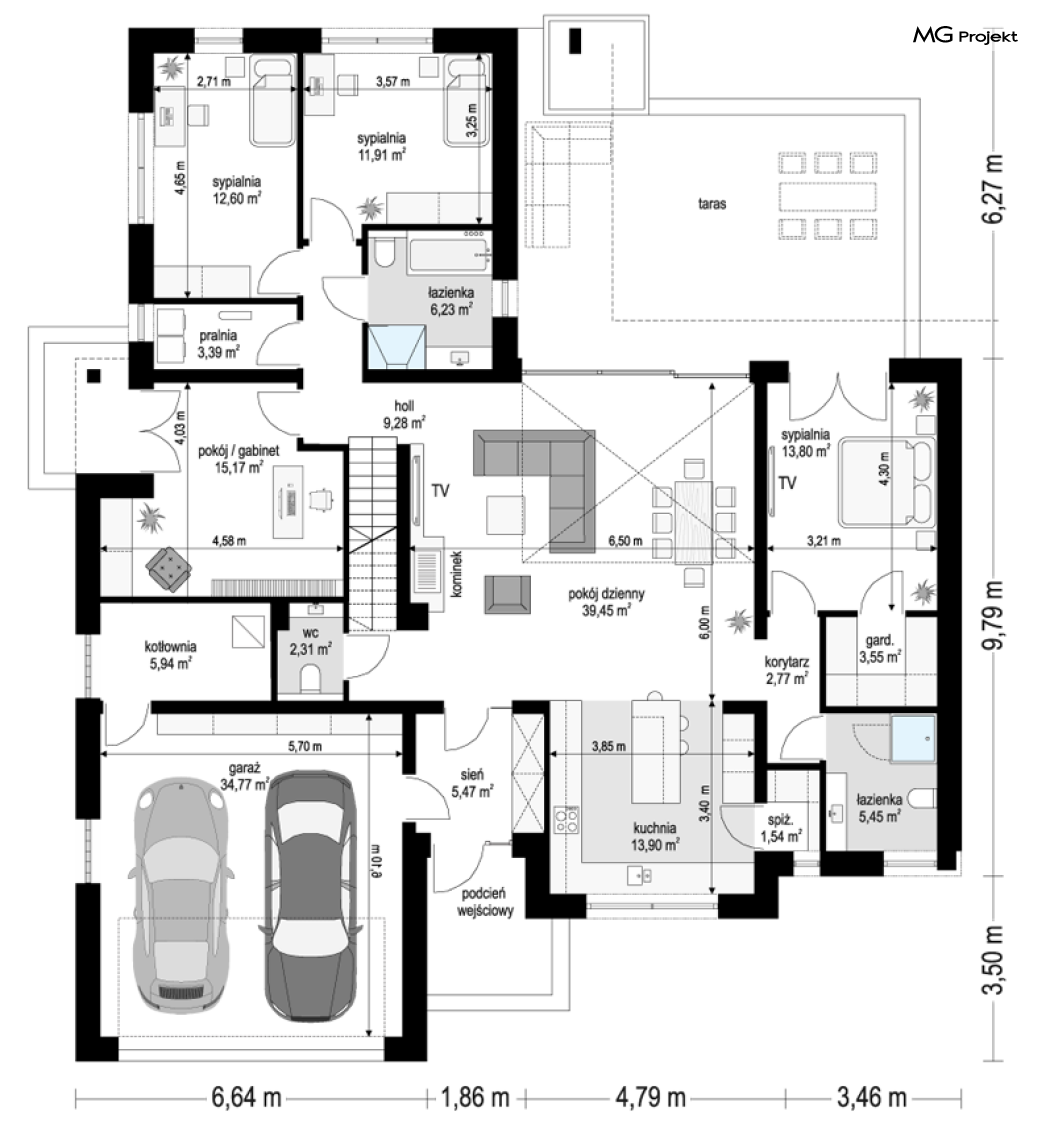
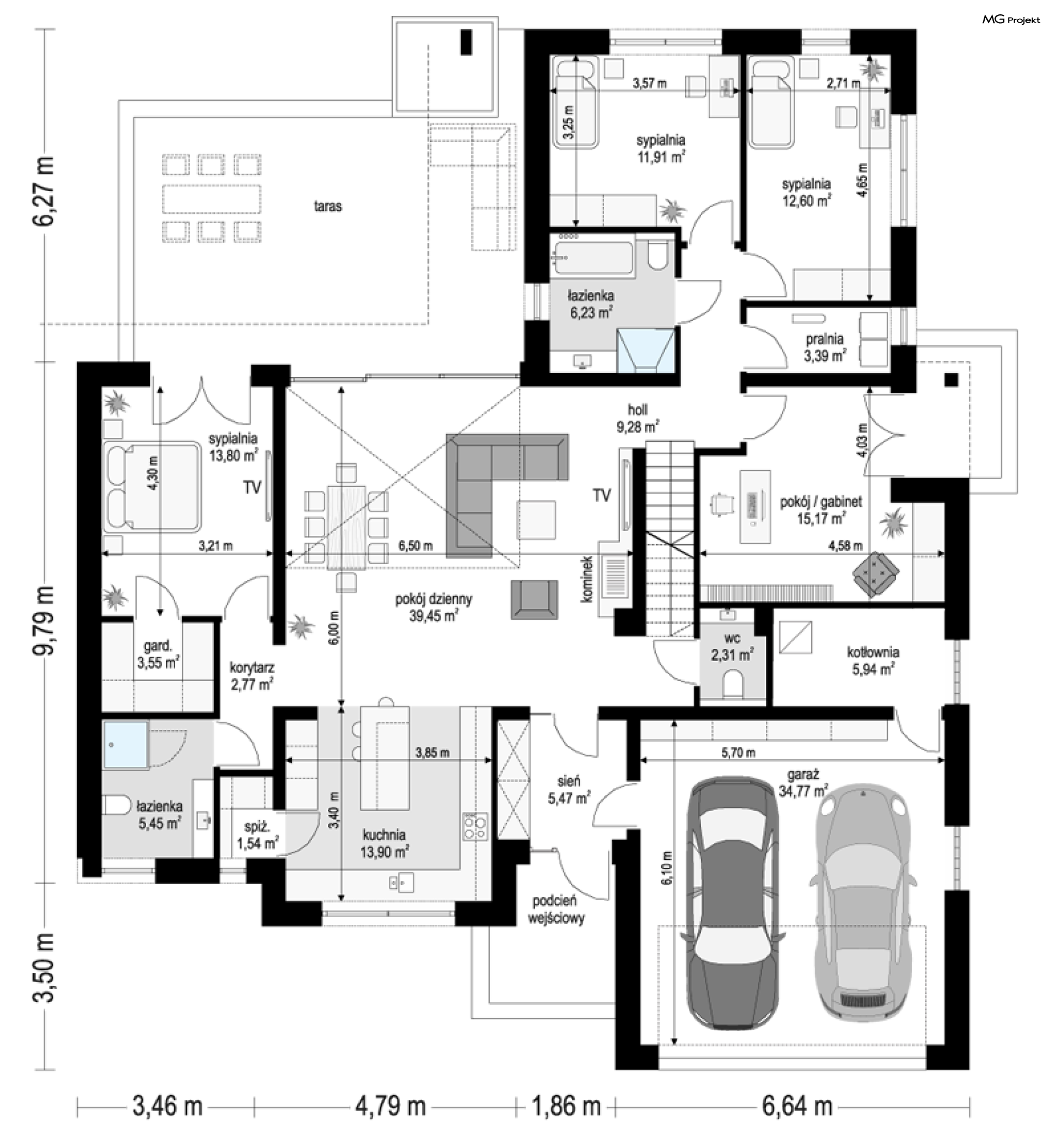
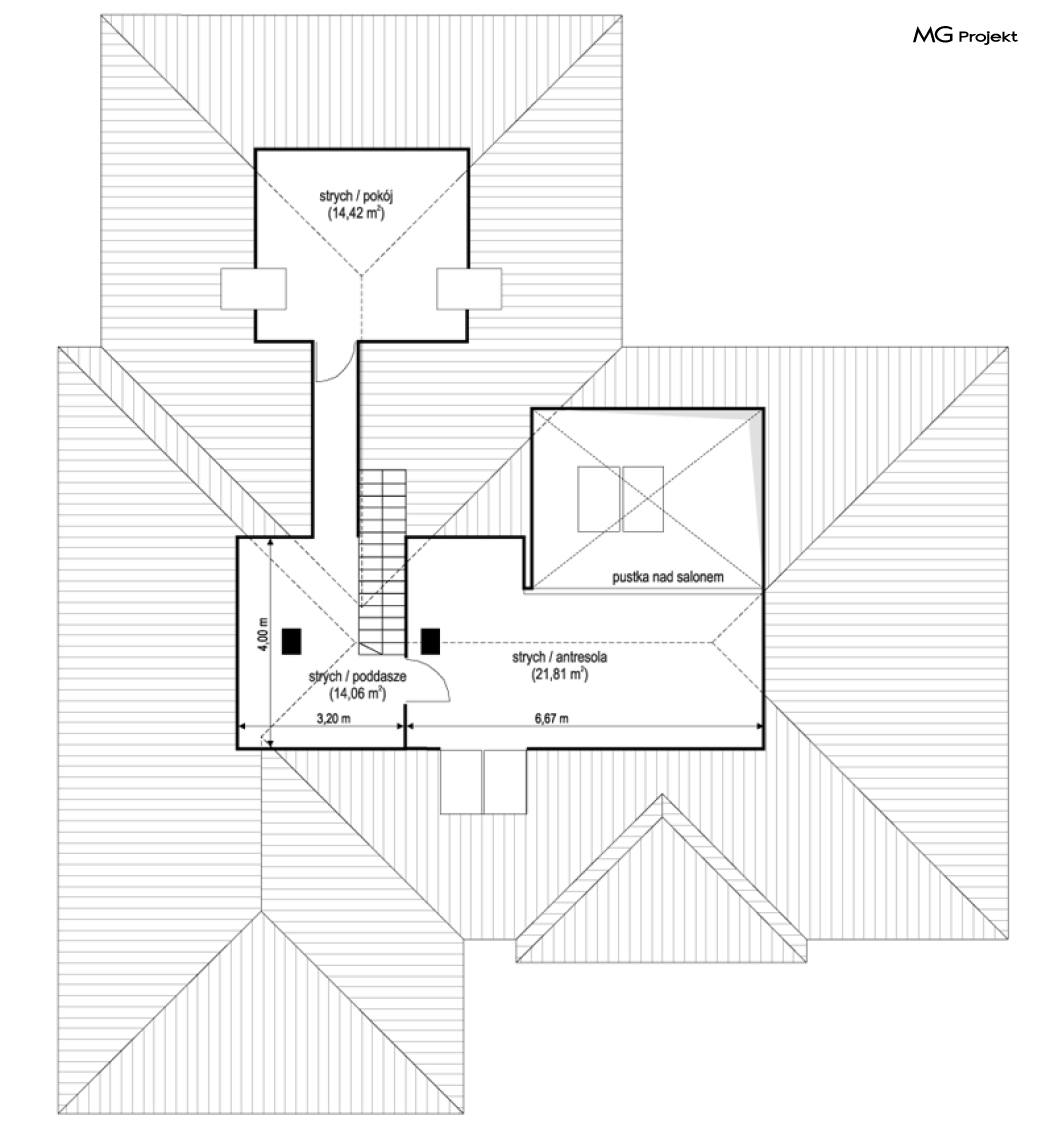
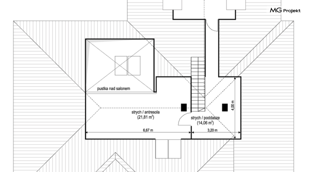
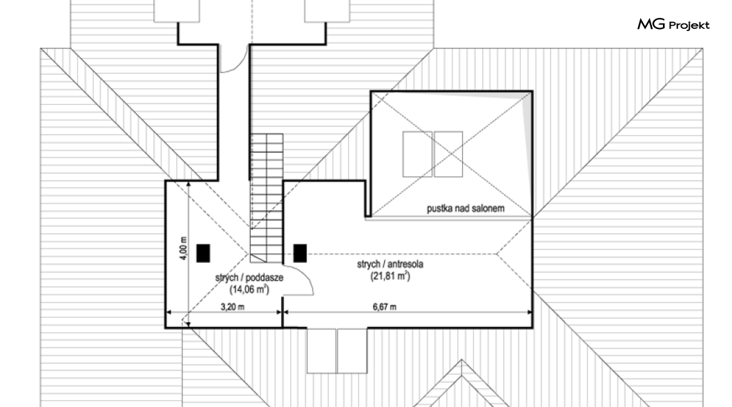
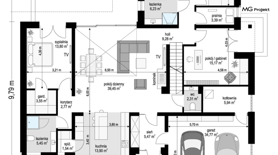
Projekt domu Willa parterowa 4 jest kolejną wersją wariantową domu z cieszącej się dużą popularnością serii projektów „ Willa parterowa”. Dom ma trochę większą powierzchnię użytkową, przy jednocześnie zwężonej bryle, dzięki czemu zmieści się na węższej działce. Bryła budynku jest parterowa z rzutem w kształcie litery „T”, przykryta wielospadowym dachem. W budynku może zamieszkać 5cioosobowa rodzina. Architektura domu jest nowoczesna. Wykorzystano tutaj modne materiały wykończeniowe i kolorystykę. Dach przykryty jest grafitową blachą na rąbek stojący, ramy dużych przeszkleń okiennych zakomponowano w jasnych odcieniach drewna, a ściany urozmaicono kontrastującymi fragmentami w kolorze betonu. Reprezentacyjny front budynku podkreślają piękne drzwi wejściowe z naświetlami, oraz szerokie okno kuchenne. Od strony ogrodowej prym wiodą szerokie przeszklenia z salonu na taras ogrodowy, oraz okładziny drewniane fragmentów ścian. Budynek ma sznyt i klasę, ma dobrze zachowane proporcje i ciekawe detale wykończeniowe. Nie jest przesadzony - niczego tu nie ma na pokaz, a jednak wygląda świetnie. Wnętrze domu podzielono na centralną cześć dzienną z salonem i kuchnią, dwie oddzielone od siebie części prywatne - jedną z apartamentem państwa domu i drugą z sypialniami dzieci, oraz część gospodarczo-garażową dostępną z przedsionka wejściowego. Do domy wchodzimy reprezentacyjnymi szerokimi drzwiami przez przedsionek do holu i salonu. W salonie przewidziano miejsce dla mebli wypoczynkowych, oraz wygodnego stołu jadalnego. Za ścianą kominkowo-telewizyjną ukryto schody na strych / poddasze, a nad połową salonu otwarto sufit aż do skosu dachu i zaprojektowano antresolę z balustradą łączącą pokój dzienny z dodatkowym pomieszczeniem u góry. Całość wnętrza dziennego domyka ładna kuchnia z wyspą i spiżarnią, z szerokim oknem otwierającym widok na front działki. Z salonu szerokimi przesuwnymi drzwiami balkonowymi wychodzimy na częściowo zadaszony taras osłonięty dyskretnie ścianami domu. Część rodziców ma sypialnię z wyjściem bezpośrednio na taras, oraz garderobę i łazienkę. W część nocnej dzieci znajdziemy trzy pokoje sypialne, łazienkę i pralnię. Całe wnętrze parteru dopełniają dwustanowiskowy garaż kotłownia. Nad parterem zaprojektowano przestrzeń strychową, którą z łatwością można zaadaptować na poddasze - wedle życzenia i inwencji właściciela. Budynek ma prostą konstrukcję, a brak żelbetowego stropu płytowego nad parterem zdecydowanie uprości, przyspieszy i obniży koszt budowy. W projekcie zastosowano bardzo dobre izolacje termiczne i nowoczesne instalacje, dzięki czemu dom będzie niedrogi w późniejszej eksploatacji. Willa Parterowa 4 jest doskonałą propozycją dla Inwestorów planujących budowę nowoczesnego, komfortowego parterowego domu, marzących o mieszkaniu na jednej kondygnacji, blisko otaczającego dom ogrodu. Zapraszamy do zapoznania się z pełną ofertą pracowni MG Projekt: https://www.mgprojekt.com.pl/willa-parterowa, https://www.mgprojekt.com.pl/willa-parterowa-2, https://www.mgprojekt.com.pl/willa-parterowa-2-wariant-b, https://www.mgprojekt.com.pl/willa-parterowa-2-wariant-c, https://www.mgprojekt.com.pl/willa-parterowa-2-wariant-d, https://www.mgprojekt.com.pl/willa-parterowa-3, https://www.mgprojekt.com.pl/willa-parterowa-3-wariant-b, https://www.mgprojekt.com.pl/willa-parterowa-4, https://www.mgprojekt.com.pl/willa-parterowa-4-wariant-b, https://www.mgprojekt.com.pl/willa-parterowa-wariant-b, https://www.mgprojekt.com.pl/willa-parterowa-wariant-c, https://www.mgprojekt.com.pl/willa-parterowa-wariant-d, https://www.mgprojekt.com.pl/willa-parterowa-wariant-e.
-
Projekt szamba szczelnego0 zł399 zł
-
Charakterystyka energetyczna0 zł200 zł
-
Pakiet energooszczędny0 zł150 zł
-
Dziennik budowy0 zł60 zł
-
Tablica budowy0 zł120 zł
-
Wersja elektroniczna projektu550 zł
-
Pakiet kosztorys inwestorski550 zł
-
Pakiet ogrzewanie podłogowe470 zł
-
Powietrzna pompa ciepła470 zł
-
Pakiet wentylacja mechaniczna i kominek DGP470 zł
-
Dodatkowy egzemplarz projektu500 zł
-
Pakiet kotłownia na paliwo stałe470 zł
-
Pakiet instalacja fotowoltaiczna470 zł
-
Pakiet klimatyzacja w domu470 zł
-
Pakiet gruntowa pompa ciepła470 zł
-
Pakiet odkurzacz centralny470 zł
-
Pakiet płaszcz wodny470 zł
-
Pakiet kominek DGP399 zł
-
Projekty altan i grillów ogrodowych650 zł
-
Pakiet instalacja solarna470 zł

opieką konsultacyjną w trakcie budowy domu
