Tytan 5







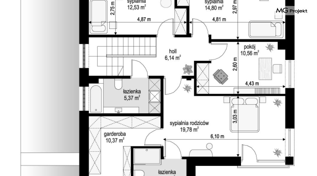
Projekt domu Tytan 5 jest kolejną wersję projektu z popularnej serii „Tytanów”. Jest to projekt domu jednorodzinnego dla rodziny 4-6 osobowej, piętrowego, o zwartej prostokątnej bryle, przykrytej czterospadowym dachem o kącie nachylenia 30 stopni. Architektura domu utrzymana jest w stylistyce łączącej nowoczesność z tradycją, połączonej z solidnymi materiałami i detalami wykończeniowymi. Duże przeszklenia okien, narożne okna, oraz podział elewacji na poziome pasy dodają sylwetce dynamiki. Drewniana stolarka i fragmenty ścian wykończone drewnem wprowadzają ciepło i wrażenie przytulności. Konsekwentna kompozycja dodatków i kontrastujących ze sobą okładzin dają domowi elegancję i reprezentacyjny wygląd. Budynek ma zwartą bryłę o niewielkiej szerokości i powierzchni zabudowy, dzięki czemu zmieści się na niedużej wąskiej parceli. Dodatkowo usytuowanie części dziennej salonu na całej długości boku parteru z doświetleniem zarówno od strony ogrodu, jak i od frontu, pozwala na usytuowanie budynku zarówno na działce z wjazdem od północy, jak i na działce o niekorzystnej orientacji względem słońca - na przykład z wjazdem od południa. Wnętrze zaprojektowano przeznaczając parter na przestrzeń dzienną i gospodarczo-techniczną, a piętro na sypialnie domowników. Do wnętrza wchodzimy przez przedsionek z szafą, do przestrzeni dziennej połączonych pomieszczeń holu, salonu i jadalni. Między narożnymi przeszkleniami pokoju dziennego mamy do dyspozycji długą ścianę telewizyjną z kominkiem. Od strony ogrodu zlokalizowano półotwartą kuchnie ze spiżarką. Głębiej za schodami znajduje się przejście do wc z prysznicem i do dodatkowego pokoju – na przykład gabinetu. Z przedsionka przedostajemy się do wygodnego dwustanowiskowego garażu i kotłowni. Na piętrze zaprojektowano trzy pokoje dziecięce i łazienkę, oraz oddzielny apartament rodziców z własną łazienką i bardzo dużą garderobą. Dom choć nie jest duży, ma bardzo funkcjonalne wnętrze, i aż 6 pokoi. Konstrukcja budynku jest prosta. Zastosowano w nim nowoczesna energooszczędne materiały, oraz wydajne instalacje, które pomogą utrzymać koszty eksploatacji budynku na niskim poziomie. Tytan 5 jest doskonałą propozycję dla Inwestorów poszukujących projektu średniej wielkości piętrowego domu, o zwartej bryle - ładnego i praktycznego W łatwy sposób można go przystosować do standardu NF40. Zapraszamy do zapoznania się z pełną ofertą pracowni MG Projekt: projekt domu Tytan, projekt domu Tytan 2, projekt domu Tytan 2B, projekt domu Tytan 3, projekt domu Tytan 4. Projekty są również dostępne w odbiciu lustrzanym.
