Optymalny







Projekt domu Optymalny jest to dom jednorodzinny, parterowy z poddaszem użytkowym, przeznaczony dla 4-5 osobowej rodziny.
Projekt domu Optymalny architektura
Optymalny jest domem o prostej konstrukcji, klarownej, czytelnej bryle. Prostokątny rzut parteru w domu Optymalny przekryty jest symetrycznym dwuspadowym dachem. Brak rozczłonkowania zwiększa energooszczędność, poza tym dzięki zwartemu planowi budynek Optymalny zmieści się nawet na niewielkiej działce o ograniczonej powierzchni zabudowy. Wygląd zewnętrzny domu Optymalny łączy w sobie nowoczesne detale z tradycyjną bryłą. Ciekawie rozmieszczone okna, nowoczesne okładziny ścian – wszystkie te elementy zwiększają atrakcyjność budynku.
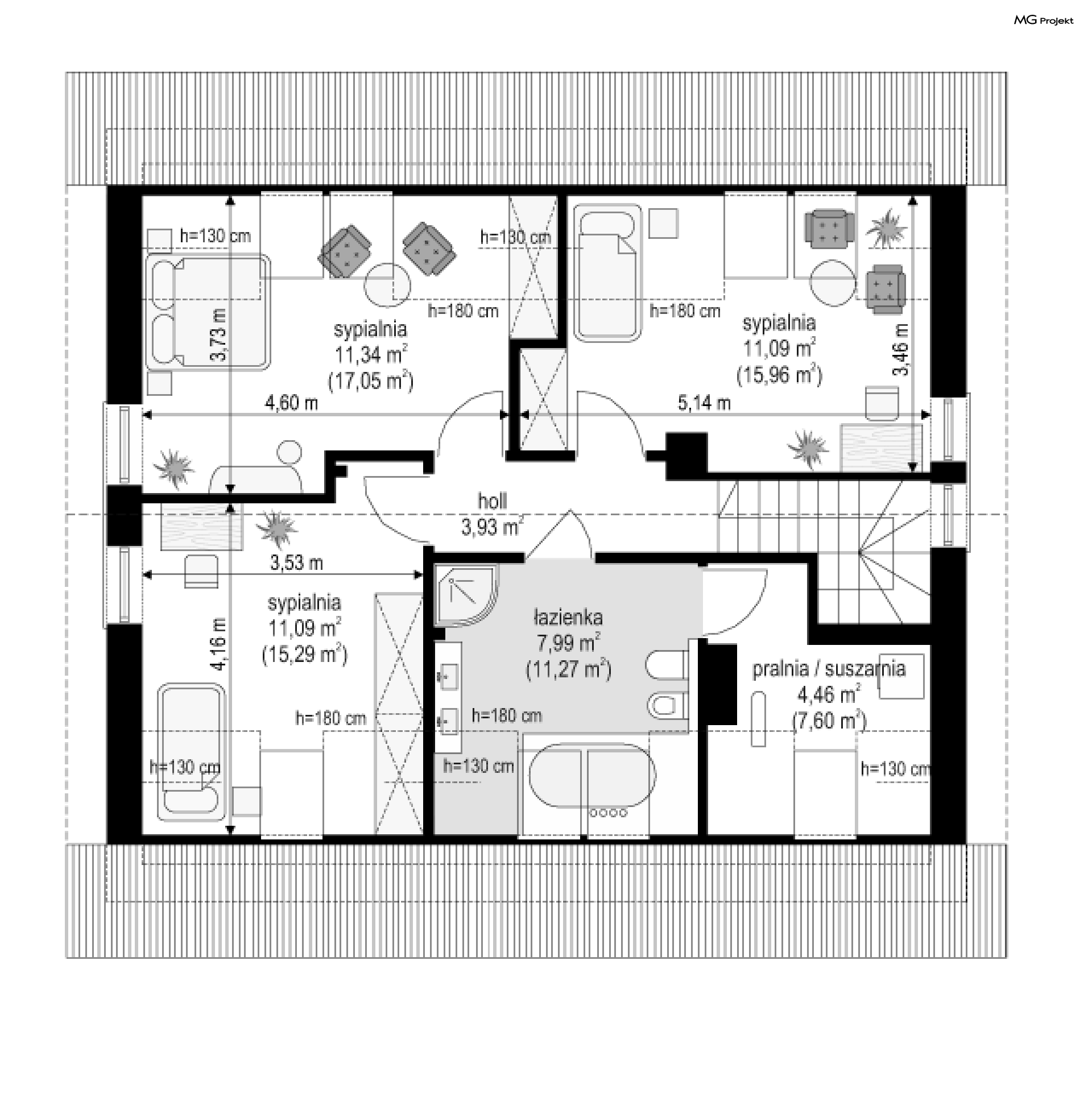
Wnętrze domu Optymalny
Wnętrze domu Optymalny podzielono na część dzienną na parterze, oraz sypialnie na poddaszu. Połączone pomieszczenia salonu, aneksu jadalnego, kuchni i holu projektu optymalny tworzą na parterze dużą otwartą przestrzeń dzienną. Z salonu projektu optymalny szerokimi przeszkleniami przechodzimy na częściowo zadaszony taras i do ogrodu. Ustawione nieco z boku schody ozdabiają wnętrze Optymalnego, a jednocześnie pozwalają zachować prywatność i swobodę osobom z salonie czy jadalni. W projekcie domku Optymalny na parterze przewidziano dodatkowy pokój (gabinet / sypialnię gościnną) z łazienką, oraz kotłownię dostępną z przedsionka. Na poddaszu projektu optymalny umieszczono trzy wygodne sypialnie, łazienkę i pomieszczenie gospodarcze (pralnię /suszarnię). Ścianki działowe na poddaszu można dowolnie modelować, zmieniać układ pomieszczeń. Projekt domu Optymalny ma prostą konstrukcję, jest łatwy w budowie, a dzięki bardzo dobrym ociepleniom i nowoczesnym energooszczędnym instalacjom będzie tani w utrzymaniu. Pracownia posiada projekt domu Optymalny w odbiciu lustrzanym, oraz wersję wariantową Optymalny B, czyli domek z parterem o wysokości 2.7 m oraz podniesioną ścianką kolankową do 1,2 m, ze zlikwidowanymi oknami połaciowymi oraz ze zlikwidowanym oknem i naświetlem bocznym drzwi wejściowych. Dostępna jest również wersja projektu domku z garażem Optymalny 2.

