Optymalny wariant B
Dodaj do porównania
Usuń z porównania
Dodaj do ulubionych
Usuń z ulubionych
Pow. użytkowa:
124.37m2
Pow. zabudowy:
95.02m2
Koszt budowy:
567000zł
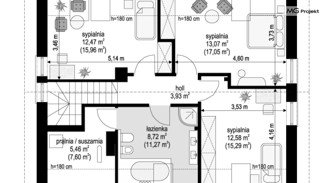
Rzuty

Lustrzane odbicie
Pobierz rysunki szczegółowe
Zapytaj, co możesz zmienić

Lustrzane odbicie
Pobierz rysunki szczegółowe
Zapytaj, co możesz zmienić
Zamów rysunki szczegółowe
Zapoznaj się ze szczegółowymi rysunkami rzutów kondygnacji w PDF dla tego projektu.
ZAMAWIAM

Elewacje

Frontowa

Ogrodowa

Lewa

Prawa
Specyfikacja techniczna
Główne parametry
Powierzchnia użytkowa
124,37 m2
Łączna powierzchnia tzw. pomieszczeń użytkowych. Przede wszystkim nie zalicza się do niej powierzchni garażu, nieużytkowego strychu, piwnicy, kotłowni.
Powierzchnia zabudowy
95,02 m2
Powierzchnia zajmowana przez budynek na działce. W praktyce tzw. powierzchnia rzutu budynku wyznaczana po obrysie ścian zewnętrznych.
Pełna specyfikacja
Maksymalna wysokość budynku
8,16 m
Wysokość wyznaczona od poziomu terenu do najwyżej położonej części dachu (np. kalenicy), zwykle bez uwzględnienia kominów.
Kąt nachylenia dachu
38,00°
Nachylenie połaci dachu podane w stopniach.
Minimalne wymiary działki (szerokość)
18,76 m
Szerokość działki wyznaczona przy założeniu, że minimalna odległość budynku od granic działki wynosi przynajmniej 3 m w przypadku ścian bez otworów okiennych lub drzwiowych, albo 4 m w przypadku ścian budynku z takimi otworami.
Minimalne wymiary działki (długość)
17,69 m
Długość działki wyznaczona przy założeniu, że minimalna odległość budynku od granic działki wynosi przynajmniej 3 m w przypadku ścian bez otworów okiennych lub drzwiowych, albo 4 m w przypadku ścian budynku z takimi otworami.
Z poddaszem użytkowym
Tak
Technologia budowy
Murowany
Typ dachu
Dwuspadowy
Kształt dachu – płaski, jednospadowy (jedna skośna połać), dwuspadowy (dwie połacie), wielospadowy (w praktyce o przynajmniej czterech połaciach).
Energooszczędność
Energooszczędny
Energooszczędny – dom o zapotrzebowaniu na tzw. nieodnawialna energię pierwotną (EP) niższym, niż wymagana przepisami maksymalna wartość.
Typ zabudowy
Jednorodzinny
Koszt: Instalacje
80 574 zł
Łączny koszt wykonania wszystkich niezbędnych instalacji wewnętrznych – grzewczej, wentylacyjnej, wodno-kanalizacyjnej, elektrycznej itd.
Koszt: Wykoczńenie
226 129 zł
Powierzchnia netto budynku
128,05 m2
Łączna powierzchnia wszystkich kondygnacjach obliczana z pominięciem elementów
konstrukcyjnych (ściany nośne, słupy itp.) ale wraz z powierzchnią zajmowaną przez ścianki działowe lub inne elementy, które można potencjalnie zdemontować.
Powierzchnia całkowita budynku
160,92 m2
Łączna powierzchnia wszystkich kondygnacjach obliczana po obrysie ścian zewnętrznych, wraz z powierzchnią zajmowaną przez ściany wewnętrzne.
Kubatura budynku
579,00 m3
Objętość budynku, zwykle wraz z elementami konstrukcyjnymi (ścianami, stropami itd.).
Szerokość budynku
10,76 m
Maksymalna szerokość budynku wraz z grubością izolacji cieplnej oraz okładzin ściennych.
Długość budynku
9,69 m
Maksymalna długość budynku wraz z grubością izolacji cieplnej oraz okładzin ściennych.
Liczba kondygnacji
Z poddaszem użytkowym
Za kondygnacje uznawane są również poddasza użytkowe oraz piwnice. Kondygnacją nie jest natomiast poddasze nieużytkowe ani antresola.
Koszty
Koszty budowy
567 000 zł
Koszt: Stan pod klucz
Obejmuje koszt wszystkich robót stanu surowego, wykonania instalacji wewnętrznych oraz robót wykończeniowych.
328 000 zł
Koszt: Stan surowy zamknięty
Koszt wzniesienia budynku wraz z pokryciem dachu i stolarką zewnętrzną (okna i drzwi). Bez instalacji, ocieplenia i robót wykończeniowych.
Opis
Wariant projektu z parterem o wysokości 2.7 m oraz podniesioną ścianką kolankową do 1,2 m, ze zlikwidowanymi oknami połaciowymi oraz ze zlikwidowanym oknem i naświetlem bocznym drzwi wejściowych.

Optymalny wariant B
BD52295
Powierzchnia użytkowa
Łączna powierzchnia tzw. pomieszczeń użytkowych. Przede wszystkim nie zalicza się do niej powierzchni garażu, nieużytkowego strychu, piwnicy, kotłowni.
124,37 m2
Powierzchnia zabudowy
Powierzchnia zajmowana przez budynek na działce. W praktyce tzw. powierzchnia rzutu budynku wyznaczana po obrysie ścian zewnętrznych.
95,02 m2
Inne wersje projektu
PODOBNE PROJEKTY
