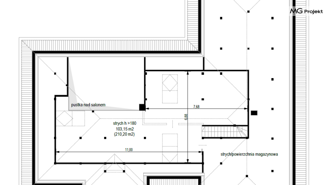
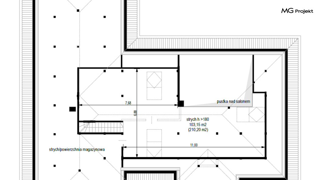
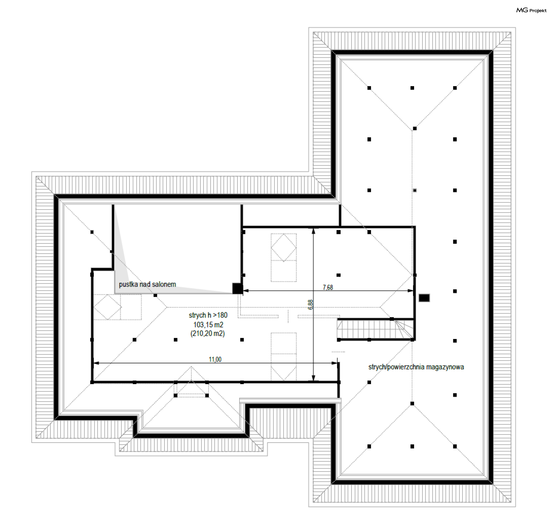
Willa Parterowa wariant B
 
 
 
     
 
 
 
Wariant projektu ze zmienionym kątem nachylenia dachu z 30 na 35 stopni + powiększenie pustki nad salonem. Zapraszamy do zapoznania się z pełną ofertą pracowni MG Projekt: https://www.mgprojekt.com.pl/willa-parterowa, https://www.mgprojekt.com.pl/willa-parterowa-2, https://www.mgprojekt.com.pl/willa-parterowa-2-wariant-b, https://www.mgprojekt.com.pl/willa-parterowa-2-wariant-c, https://www.mgprojekt.com.pl/willa-parterowa-2-wariant-d, https://www.mgprojekt.com.pl/willa-parterowa-3, https://www.mgprojekt.com.pl/willa-parterowa-3-wariant-b, https://www.mgprojekt.com.pl/willa-parterowa-4, https://www.mgprojekt.com.pl/willa-parterowa-4-wariant-b, https://www.mgprojekt.com.pl/willa-parterowa-wariant-b, https://www.mgprojekt.com.pl/willa-parterowa-wariant-c, https://www.mgprojekt.com.pl/willa-parterowa-wariant-d, https://www.mgprojekt.com.pl/willa-parterowa-wariant-e.
 
 
             
 
 
 
 
 
 
 
 
 
 
 
 
 
 
 
 
 
 
 
 
 
 
 
 
 
 
 
 
 
 
 
 
 
 
 
 
 
 
 
 
 
 
 
 
 
 
 
 
 
 
 
 
 
 
 
 
 
 
 
 
 
 
 
 
 
 
 
 
 
 
 
 
 
 
 
 
 
                                         
 
                                         
                         
                         
                     
                         
                        